• 手机版

    扫码体验手机版

  • 微信公众号

    扫码关注公众号

登录注册
游客您好
第三方账号登陆

牡丹园10-1-6#195 ㎡现代轻奢—— 释放大平层之美

[复制链接]
发表于 2023-1-9 15:41:02 | 显示全部楼层 |阅读模式
牡丹园10-1-6#195 ㎡现代轻奢—— 释放大平层之美

格堂装饰实景完工案例欣赏!

小区名称
牡丹园
房屋面积
195㎡
户型结构
套房
装修风格
现代轻奢
装修方式
半包
装修造价
查看请联系客服万元
设计师
苏工
项目经理
周工
装修公司
格堂装饰
装修过程
装修日记
设计说明
本案位于六楼,采光通透,结合这个先天优势,我们在风格、色调的选配上,都更凸显“窗明几净”,让整个房屋大气、通透。“造型无需繁复,简单自带高级。”设计师提出了这个概念,整屋造型配饰多大气耐看,色调以淡香槟金为主,简约但不乏华贵的沉淀质感。
更多信息
7E1A0207.jpg


回复

使用道具 举报

 楼主| 发表于 2023-1-9 15:41:45 | 显示全部楼层
原始构图▼▼▼

113549yxqrlr9kmh0ir9cs.jpg

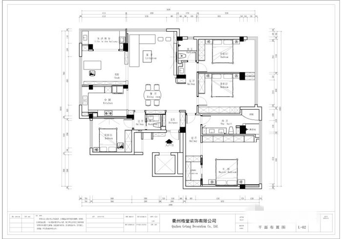
平面布置图▼▼▼

113629s493133zz2os19sg.jpg


回复 支持 反对

使用道具 举报

 楼主| 发表于 2023-1-9 15:42:31 | 显示全部楼层
客厅▼▼▼



7E1A0203.jpg


7E1A0205.jpg


7E1A0206.jpg


7E1A0207.jpg


7E1A0259.jpg


7E1A0261.jpg


回复 支持 反对

使用道具 举报

 楼主| 发表于 2023-1-9 15:43:25 | 显示全部楼层
餐厅▼▼▼



7E1A0208.jpg


7E1A0209.jpg


7E1A0210.jpg


7E1A0309.jpg




回复 支持 反对

使用道具 举报

 楼主| 发表于 2023-1-9 15:44:09 | 显示全部楼层
厨房▼▼▼



7E1A0248.jpg


7E1A0250.jpg


回复 支持 反对

使用道具 举报

 楼主| 发表于 2023-1-9 15:44:29 | 显示全部楼层
玄关▼▼▼



7E1A0223.jpg


7E1A0224.jpg


回复 支持 反对

使用道具 举报

 楼主| 发表于 2023-1-9 15:45:52 | 显示全部楼层
主卧▼▼▼



7E1A0235.jpg


7E1A2295.jpg


7E1A2297.jpg


7E1A0229.jpg


7E1A0233.jpg


7E1A0263.jpg




回复 支持 反对

使用道具 举报

 楼主| 发表于 2023-1-9 15:46:32 | 显示全部楼层
小孩房▼▼▼



7E1A0240.jpg


7E1A0244.jpg


回复 支持 反对

使用道具 举报

 楼主| 发表于 2023-1-9 15:47:11 | 显示全部楼层
主卫▼▼▼



7E1A0225.jpg


7E1A0226.jpg


7E1A0227.jpg




回复 支持 反对

使用道具 举报

 楼主| 发表于 2023-1-9 15:47:54 | 显示全部楼层
次卫干区▼▼▼



7E1A0269.jpg


7E1A0268.jpg


回复 支持 反对

使用道具 举报

您需要登录后才可以回帖 登录 | 立即注册

本版积分规则

全国统一客服电话
0570-8028505

24x7小时免费咨询

  • 官方在线客服

    QQ客服:小西

    点击交谈

    QQ客服:良子

    点击交谈

    QQ客服:闵月

    点击交谈
  • 衢州市柯城区财富中心3号楼2楼

  • 衢州格堂装饰有限公司

  • 扫一扫关注官方微信

    获取一手特惠信息

快速回复 返回顶部 返回列表