• 手机版

    扫码体验手机版

  • 微信公众号

    扫码关注公众号

登录注册
游客您好
第三方账号登陆

[衢州] 牡丹园10-1-6#195 ㎡现代轻奢—— 释放大平层之美

[复制链接]
发表于 2021-4-3 11:35:38 | 显示全部楼层 |阅读模式
释放大平层之美

格堂装饰为您全程记录装修全过程!

小区名称
牡丹园
房屋面积
195㎡
户型结构
套房
装修风格
现代轻奢
装修方式
半包
装修造价
查看请联系客服万元
设计师
苏工
项目经理
周工
装修公司
格堂装饰
完工实景
完工实景
水电全景
水电全景
VR全景
VR全景
设计说明
本案位于六楼,采光通透,结合这个先天优势,我们在风格、色调的选配上,都更凸显“窗明几净”,让整个房屋大气、通透。“造型无需繁复,简单自带高级。”设计师提出了这个概念,整屋造型配饰多大气耐看,色调以淡香槟金为主,简约但不乏华贵的沉淀质感。
更多信息
本帖最后由 格堂飞飞 于 2022-1-12 14:20 编辑

效果图
IMG_6430.JPG

IMG_6429.JPG

开工拆改
砌墙
水电放样
水电材料
水电阶段
水电验收
防水
泥木工
油漆阶段
安装阶段




回复

使用道具 举报

 楼主| 发表于 2021-4-3 11:36:14 | 显示全部楼层

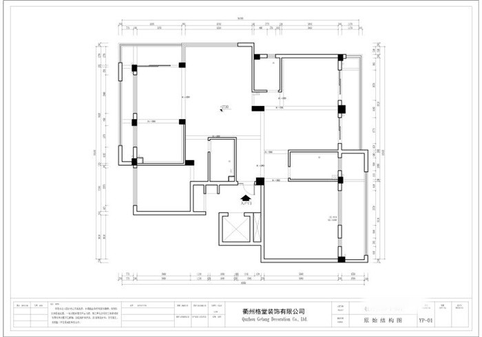
原始结构图
IMG_6432.JPG

回复 支持 反对

使用道具 举报

 楼主| 发表于 2021-4-3 11:36:39 | 显示全部楼层

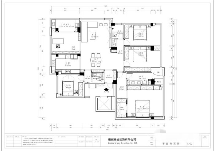
平面布置图
IMG_6431.JPG

回复 支持 反对

使用道具 举报

 楼主| 发表于 2021-4-3 11:39:43 | 显示全部楼层

师傅正在电梯间,墙面和地面保护,防止磕碰哦!
IMG_5328.JPG

IMG_5327.JPG
回复 支持 反对

使用道具 举报

 楼主| 发表于 2021-4-3 11:40:53 | 显示全部楼层

大门保护到位,防止磕碰哦!
IMG_5330.JPG

IMG_5338.JPG

IMG_5335.JPG

IMG_5339.JPG
回复 支持 反对

使用道具 举报

 楼主| 发表于 2021-4-3 11:45:28 | 显示全部楼层

设计师正在核对图纸。
IMG_5333.JPG

IMG_5336.JPG
回复 支持 反对

使用道具 举报

 楼主| 发表于 2021-4-3 11:47:06 | 显示全部楼层

临时马桶安装到位,方便师傅使用,要讲究卫生哦!
IMG_5329.JPG


回复 支持 反对

使用道具 举报

 楼主| 发表于 2021-4-3 11:47:56 | 显示全部楼层

煤气表也要保护起来,防止磕碰哦!
IMG_5358.JPG

IMG_5359.JPG
回复 支持 反对

使用道具 举报

 楼主| 发表于 2021-4-3 11:49:20 | 显示全部楼层

水管用格堂专用保护盖保护,防止砂石堵塞管道。

IMG_5370.JPG

IMG_5355.JPG
回复 支持 反对

使用道具 举报

 楼主| 发表于 2021-4-3 11:50:25 | 显示全部楼层

开工前准备工作,先要做好哦!
IMG_5350.JPG

IMG_5351.JPG

IMG_5331.JPG
回复 支持 反对

使用道具 举报

您需要登录后才可以回帖 登录 | 立即注册

本版积分规则

全国统一客服电话
0570-8028505

24x7小时免费咨询

  • 官方在线客服

    QQ客服:小西

    点击交谈

    QQ客服:良子

    点击交谈

    QQ客服:闵月

    点击交谈
  • 衢州市柯城区财富中心3号楼2楼

  • 衢州格堂装饰有限公司

  • 扫一扫关注官方微信

    获取一手特惠信息

快速回复 返回顶部 返回列表