• 手机版

    扫码体验手机版

  • 微信公众号

    扫码关注公众号

登录注册
游客您好
第三方账号登陆

开化裴源自建房308㎡新中式----墨染丹青,雅韵悠长

[复制链接]
发表于 2022-12-8 15:45:11 | 显示全部楼层 |阅读模式
开化裴源自建房308㎡新中式----墨染丹青,雅韵悠长

格堂装饰实景完工案例欣赏!

小区名称
开化裴源自建房
房屋面积
308㎡
户型结构
别墅
装修风格
新中式
装修方式
半包
装修造价
查看请联系客服万元
设计师
曹工
项目经理
毛工
装修公司
格堂装饰
装修过程
装修日记
设计说明
余秋雨说,就中国文化而言,院落是安顿生命、安顿家人和安顿精神的场所。一方庭院里,体现了“天人合一”的哲学观,也有骨子里与生俱来对于自然的热爱。以中式建筑与园林的精粹为引,一幅大隐于市的新中式人居美学画卷由此徐徐展开。
更多信息
本帖最后由 格堂设计 于 2025-3-18 09:55 编辑

7E1A9438.jpg


回复

使用道具 举报

 楼主| 发表于 2022-12-8 15:46:33 | 显示全部楼层
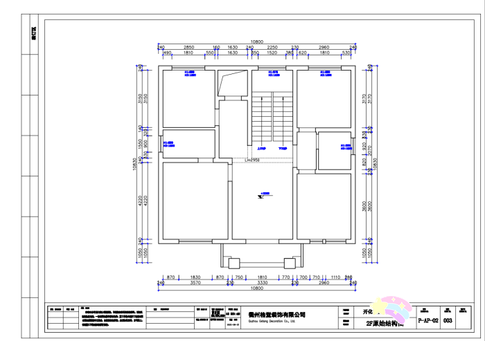
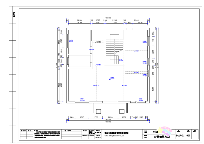
原始构图▼▼▼

095539it36v9i5nru95b6v.png

095539wuf49ut7fj39vuev.png

095539xdpcbmrt8yp6dvrf.png

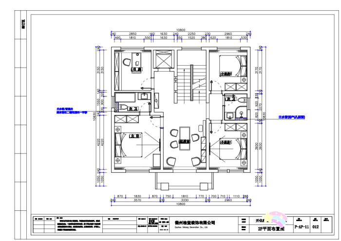
平面布置图▼▼▼

095634q4g2zjyanf5plknz.png

095634qc35lydssrkhddh8.png

095634reqs0zybqhymbmy8.png




回复 支持 反对

使用道具 举报

 楼主| 发表于 2022-12-8 15:47:10 | 显示全部楼层
外景▼▼▼



7E1A9497.jpg


7E1A9498.jpg




回复 支持 反对

使用道具 举报

 楼主| 发表于 2022-12-8 15:48:04 | 显示全部楼层
一楼客厅▼▼▼



7E1A9439.jpg


7E1A9440.jpg


7E1A9442.jpg


7E1A9443.jpg


7E1A9447.jpg


回复 支持 反对

使用道具 举报

 楼主| 发表于 2022-12-8 15:48:46 | 显示全部楼层
茶室▼▼▼



7E1A9387.jpg


7E1A9437.jpg


7E1A9438.jpg




回复 支持 反对

使用道具 举报

 楼主| 发表于 2022-12-8 15:51:02 | 显示全部楼层
玄关▼▼▼



7E1A9448.jpg




回复 支持 反对

使用道具 举报

 楼主| 发表于 2022-12-8 15:52:16 | 显示全部楼层
餐厅▼▼▼



7E1A9388.jpg


7E1A9389.jpg



回复 支持 反对

使用道具 举报

 楼主| 发表于 2022-12-8 15:53:03 | 显示全部楼层
厨房▼▼▼



7E1A9450.jpg



7E1A9449.jpg


回复 支持 反对

使用道具 举报

 楼主| 发表于 2022-12-8 15:53:46 | 显示全部楼层
本帖最后由 格堂设计 于 2025-3-18 10:00 编辑

楼梯间▼▼▼

7E1A9495.jpg

7E1A9496.jpg
回复 支持 反对

使用道具 举报

 楼主| 发表于 2022-12-8 15:54:32 | 显示全部楼层
三楼客厅▼▼▼



7E1A9455.jpg


7E1A9456.jpg


7E1A9457.jpg



回复 支持 反对

使用道具 举报

您需要登录后才可以回帖 登录 | 立即注册

本版积分规则

全国统一客服电话
0570-8028505

24x7小时免费咨询

  • 官方在线客服

    QQ客服:小西

    点击交谈

    QQ客服:良子

    点击交谈

    QQ客服:闵月

    点击交谈
  • 衢州市柯城区财富中心3号楼2楼

  • 衢州格堂装饰有限公司

  • 扫一扫关注官方微信

    获取一手特惠信息

快速回复 返回顶部 返回列表