• 手机版

    扫码体验手机版

  • 微信公众号

    扫码关注公众号

登录注册
游客您好
第三方账号登陆

[开化] 开化裴源自建房308㎡新中式----墨染丹青,雅韵悠长

[复制链接]
发表于 2021-10-14 09:53:08 | 显示全部楼层 |阅读模式
开化裴源自建房308㎡新中式----墨染丹青,雅韵悠长

格堂装饰为您全程记录装修全过程!

小区名称
裴源自建房
房屋面积
308㎡
户型结构
8房5厅1厨4卫1露台
装修风格
新中式
装修方式
半包
装修造价
查看请联系客服万元
设计师
曹工
项目经理
毛工
装修公司
格堂装饰
完工实景
完工实景
水电全景
水电全景
VR全景
VR全景
设计说明
余秋雨说,就中国文化而言,院落是安顿生命、安顿家人和安顿精神的场所。一方庭院里,体现了“天人合一”的哲学观,也有骨子里与生俱来对于自然的热爱。以中式建筑与园林的精粹为引,一幅大隐于市的新中式人居美学画卷由此徐徐展开。
更多信息
回复

使用道具 举报

 楼主| 发表于 2021-10-14 09:56:24 | 显示全部楼层

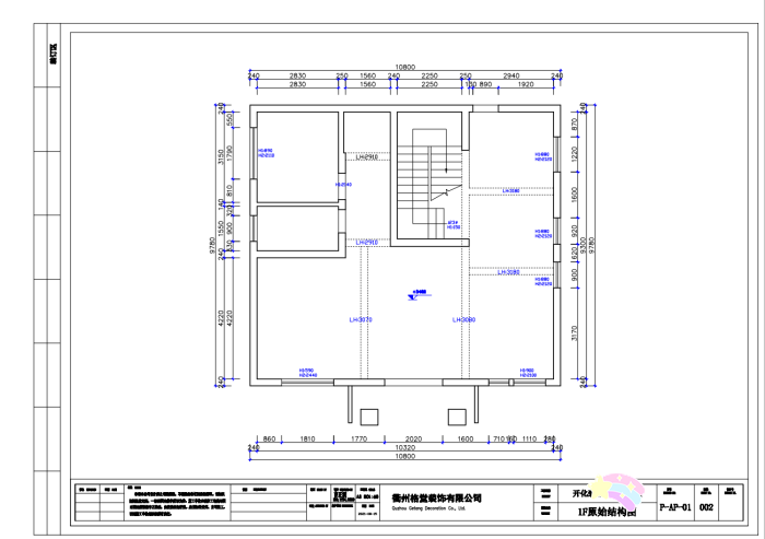
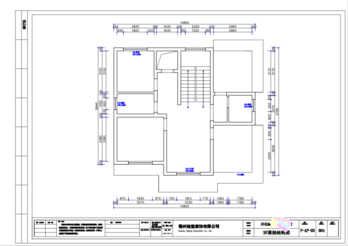
原始结构图
1楼原始结构.png

2楼原始结构.png

3楼原始结构.png
回复 支持 反对

使用道具 举报

 楼主| 发表于 2021-10-14 09:56:51 | 显示全部楼层

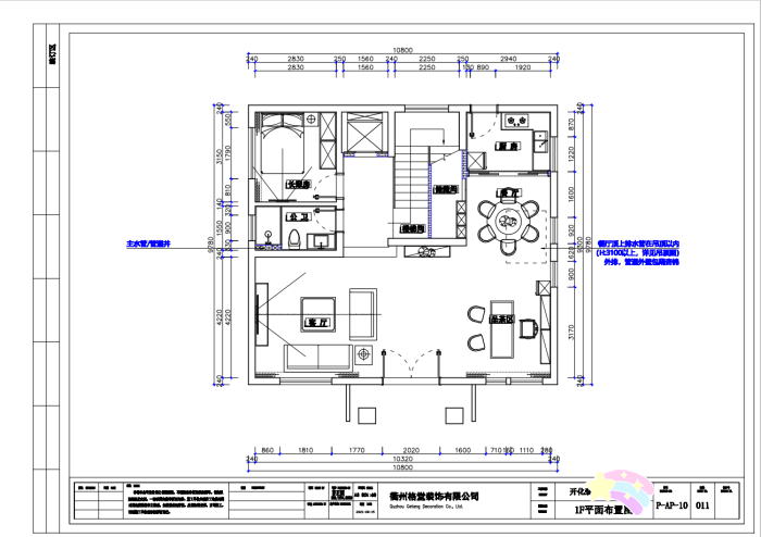
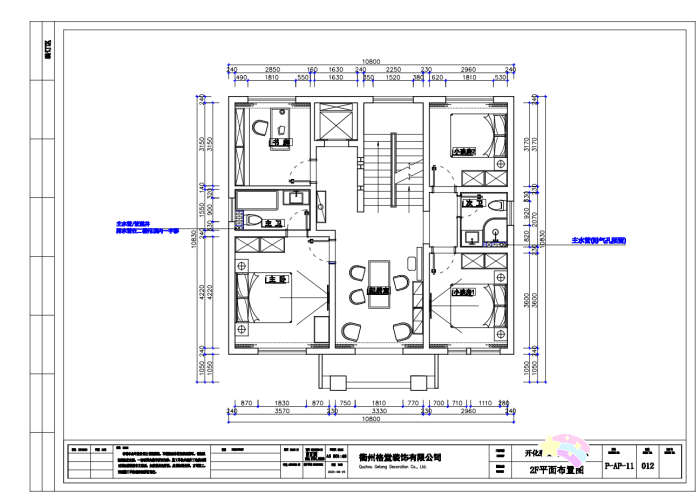
平面布置图
1楼平面布置.png

2楼平面布置.png

3楼平面布置.png
回复 支持 反对

使用道具 举报

 楼主| 发表于 2021-10-14 09:57:55 | 显示全部楼层

开工前准备
IMG_7715.JPG

IMG_7716.JPG

IMG_7717.JPG
回复 支持 反对

使用道具 举报

 楼主| 发表于 2021-10-14 09:58:38 | 显示全部楼层

吉时到,我们开工啦
IMG_7744.JPG
回复 支持 反对

使用道具 举报

 楼主| 发表于 2021-10-14 09:59:14 | 显示全部楼层

装修开工第一锤应该敲在要拆除的墙体的墙角(即拐角)上,象征一锤定音的意思,也是新房动土的一种表示方式。
IMG_7743.JPG
回复 支持 反对

使用道具 举报

 楼主| 发表于 2021-10-14 10:00:12 | 显示全部楼层

3楼书法室原始结构
IMG_7745.JPG

IMG_7746.JPG

IMG_7747.JPG

IMG_7748.JPG

IMG_7749.JPG
回复 支持 反对

使用道具 举报

 楼主| 发表于 2021-10-14 10:01:35 | 显示全部楼层

3楼书法室对角原始结构
IMG_7750.JPG

IMG_7751.JPG

IMG_7752.JPG

IMG_7753.JPG

IMG_7754.JPG
回复 支持 反对

使用道具 举报

 楼主| 发表于 2021-10-14 10:02:19 | 显示全部楼层

3楼书法室原始结构
IMG_7755.JPG

IMG_7756.JPG

IMG_7757.JPG

IMG_7758.JPG

IMG_7759.JPG
回复 支持 反对

使用道具 举报

 楼主| 发表于 2021-10-14 10:02:51 | 显示全部楼层

3楼起居室原始结构
IMG_7760.JPG

IMG_7761.JPG

IMG_7762.JPG

IMG_7763.JPG

IMG_7764.JPG
回复 支持 反对

使用道具 举报

您需要登录后才可以回帖 登录 | 立即注册

本版积分规则

全国统一客服电话
0570-8028505

24x7小时免费咨询

  • 官方在线客服

    QQ客服:小西

    点击交谈

    QQ客服:良子

    点击交谈

    QQ客服:闵月

    点击交谈
  • 衢州市柯城区财富中心3号楼2楼

  • 衢州格堂装饰有限公司

  • 扫一扫关注官方微信

    获取一手特惠信息

快速回复 返回顶部 返回列表