• 手机版

    扫码体验手机版

  • 微信公众号

    扫码关注公众号

登录注册
游客您好
第三方账号登陆

金誉府4-2-50#98㎡现代——间约风

[复制链接]
发表于 2022-12-8 11:25:58 | 显示全部楼层 |阅读模式
金誉府4-2-50#98㎡现代——间约风

格堂装饰实景完工案例欣赏!

小区名称
金誉府
房屋面积
98㎡
户型结构
套房
装修风格
现代
装修方式
半包
装修造价
查看请联系客服万元
设计师
吴工
项目经理
余工
装修公司
格堂装饰
装修过程
装修日记
设计说明
拾趣--空间以白作为自然情绪力量的表达
传递出它从中蕴含的多样性
无限性和包容性
因此
推开门后看到的玄关
是片刻之间的静谧美好
令人回味留恋
更多信息
7E1A1503.jpg


回复

使用道具 举报

 楼主| 发表于 2022-12-8 11:26:39 | 显示全部楼层
原始构图▼▼▼

153136cugqtqm9771guuvq.jpg

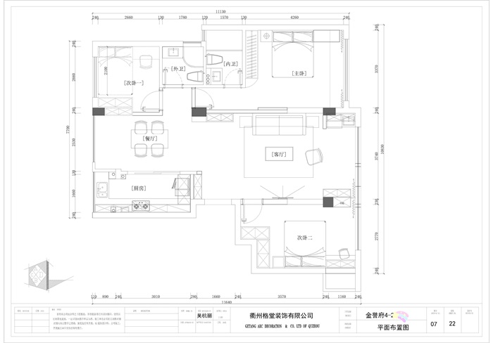
平面布置图▼▼▼




153254fc48tj33x58ntj9v.jpg


回复 支持 反对

使用道具 举报

 楼主| 发表于 2022-12-8 11:27:11 | 显示全部楼层
客厅▼▼▼


7E1A1496.jpg


7E1A1497.jpg


7E1A1499.jpg


7E1A1500.jpg


7E1A1502.jpg


7E1A1503.jpg


7E1A1504.jpg







回复 支持 反对

使用道具 举报

 楼主| 发表于 2022-12-8 11:27:42 | 显示全部楼层
餐厅▼▼▼



7E1A1524.jpg


7E1A1525.jpg


7E1A1526.jpg


7E1A1527.jpg


7E1A1528.jpg




回复 支持 反对

使用道具 举报

 楼主| 发表于 2022-12-8 11:28:05 | 显示全部楼层
玄关▼▼▼



7E1A1519.jpg


7E1A1520.jpg


7E1A1521.jpg




回复 支持 反对

使用道具 举报

 楼主| 发表于 2022-12-8 11:28:27 | 显示全部楼层
厨房▼▼▼



7E1A1531.jpg


7E1A1532.jpg


7E1A1533.jpg



回复 支持 反对

使用道具 举报

 楼主| 发表于 2022-12-8 11:28:54 | 显示全部楼层
主卧▼▼▼



7E1A1511.jpg


7E1A1512.jpg


7E1A1513.jpg


7E1A1515.jpg




回复 支持 反对

使用道具 举报

 楼主| 发表于 2022-12-8 11:30:18 | 显示全部楼层
次卧▼▼▼



7E1A1542.jpg


7E1A1541.jpg


7E1A1540.jpg


7E1A1539.jpg




回复 支持 反对

使用道具 举报

 楼主| 发表于 2022-12-8 11:30:36 | 显示全部楼层
小孩房▼▼▼



7E1A1537.jpg


7E1A1535.jpg


7E1A1536.jpg




回复 支持 反对

使用道具 举报

 楼主| 发表于 2022-12-8 11:31:00 | 显示全部楼层
主卫▼▼▼



7E1A1534.jpg


回复 支持 反对

使用道具 举报

您需要登录后才可以回帖 登录 | 立即注册

本版积分规则

全国统一客服电话
0570-8028505

24x7小时免费咨询

  • 官方在线客服

    QQ客服:小西

    点击交谈

    QQ客服:良子

    点击交谈

    QQ客服:闵月

    点击交谈
  • 衢州市柯城区财富中心3号楼2楼

  • 衢州格堂装饰有限公司

  • 扫一扫关注官方微信

    获取一手特惠信息

快速回复 返回顶部 返回列表