• 手机版

    扫码体验手机版

  • 微信公众号

    扫码关注公众号

登录注册
游客您好
第三方账号登陆

[衢州] 金誉府4-2-50#98㎡现代——间约风

[复制链接]
发表于 2022-6-9 15:28:03 | 显示全部楼层 |阅读模式
金誉府4-2-50#98㎡现代——间约风

格堂装饰为您全程记录装修全过程!

小区名称
金誉府
房屋面积
98㎡
户型结构
套房
装修风格
现代
装修方式
半包
装修造价
查看请联系客服万元
设计师
吴工
项目经理
余工
装修公司
格堂装饰
完工实景
完工实景
水电全景
水电全景
VR全景
VR全景
设计说明
拾趣--空间以白作为自然情绪力量的表达
传递出它从中蕴含的多样性
无限性和包容性
因此
推开门后看到的玄关
是片刻之间的静谧美好
令人回味留恋
更多信息
本帖最后由 格堂陈辰 于 2022-6-9 15:30 编辑

效果图
回复

使用道具 举报

 楼主| 发表于 2022-6-9 15:31:45 | 显示全部楼层
原始结构图

148c9ebda85a24ea5636ecdcf732f43.jpg

回复 支持 反对

使用道具 举报

 楼主| 发表于 2022-6-9 15:32:59 | 显示全部楼层
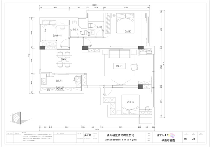
平面布置图

256c0908d675816a8ee05d03d21e9b4.jpg

回复 支持 反对

使用道具 举报

 楼主| 发表于 2022-6-9 15:33:29 | 显示全部楼层
回复 支持 反对

使用道具 举报

 楼主| 发表于 2022-6-9 15:36:24 | 显示全部楼层
本帖最后由 格堂陈辰 于 2022-8-2 15:01 编辑

电梯口保护
IMG_20220802_082752.jpg

IMG_20220802_082754.jpg

IMG_20220802_082802.jpg

IMG_20220802_082757.jpg

IMG_20220802_082800.jpg
回复 支持 反对

使用道具 举报

 楼主| 发表于 2022-6-9 15:36:37 | 显示全部楼层
本帖最后由 格堂陈辰 于 2022-8-2 15:02 编辑

电梯口对角
IMG_20220802_082809.jpg

IMG_20220802_082811.jpg

IMG_20220802_082820.jpg

IMG_20220802_082814.jpg

IMG_20220802_082818.jpg
回复 支持 反对

使用道具 举报

 楼主| 发表于 2022-6-9 15:37:08 | 显示全部楼层

大门保护
IMG_20220527_090723.jpg
回复 支持 反对

使用道具 举报

 楼主| 发表于 2022-6-9 15:37:36 | 显示全部楼层

门槛保护
IMG_20220527_084641.jpg
回复 支持 反对

使用道具 举报

 楼主| 发表于 2022-6-9 15:38:23 | 显示全部楼层
临时马桶:每一个施工现场都会配备临时小便斗,并且时刻保持干净卫生、保证工地环境干净、整洁

IMG_20220608_085237.jpg
回复 支持 反对

使用道具 举报

 楼主| 发表于 2022-6-9 15:38:55 | 显示全部楼层
开工前下水管用格堂专用保护盖保护,防止砂石堵塞管道。

IMG_20220608_085239.jpg

IMG_20220608_085246.jpg

IMG_20220608_085254.jpg
回复 支持 反对

使用道具 举报

您需要登录后才可以回帖 登录 | 立即注册

本版积分规则

全国统一客服电话
0570-8028505

24x7小时免费咨询

  • 官方在线客服

    QQ客服:小西

    点击交谈

    QQ客服:良子

    点击交谈

    QQ客服:闵月

    点击交谈
  • 衢州市柯城区财富中心3号楼2楼

  • 衢州格堂装饰有限公司

  • 扫一扫关注官方微信

    获取一手特惠信息

快速回复 返回顶部 返回列表