• 手机版

    扫码体验手机版

  • 微信公众号

    扫码关注公众号

登录注册
游客您好
第三方账号登陆

国金.滨江一号16-2-80#119㎡现代—偶得幽闲境,遂忘尘俗心

[复制链接]
发表于 2022-12-8 10:46:43 | 显示全部楼层 |阅读模式
国金.滨江一号16-2-80#119㎡现代—偶得幽闲境,遂忘尘俗心

格堂装饰实景完工案例欣赏!

小区名称
滨江一号
房屋面积
119㎡
户型结构
套房
装修风格
现代
装修方式
半包
装修造价
查看请联系客服万元
设计师
吴工
项目经理
徐工
装修公司
格堂装饰
装修过程
装修日记
设计说明
新居所的诞生,代表着迎来了长途跋涉之后的疗愈之旅。生活在这里,会向他们展示出更具力量的温柔,并在共同建立的美好平淡中,丢弃掉日复一日之下会带来的疲倦与乏力。
更多信息
更多信息
7E1A9830.jpg


回复

使用道具 举报

 楼主| 发表于 2022-12-8 10:47:33 | 显示全部楼层
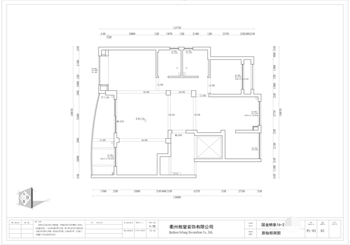
原始构图▼▼▼


084607amru0771r2ruez1r.png

平面布置图▼▼▼

084657miu368tznvvv6631.png


回复 支持 反对

使用道具 举报

 楼主| 发表于 2022-12-8 10:47:52 | 显示全部楼层
客厅▼▼▼



7E1A9824.jpg


7E1A9826.jpg


7E1A9827.jpg


7E1A9828.jpg


7E1A9829.jpg


7E1A9830.jpg




回复 支持 反对

使用道具 举报

 楼主| 发表于 2022-12-8 10:48:07 | 显示全部楼层
玄关▼▼▼



7E1A9831.jpg


回复 支持 反对

使用道具 举报

 楼主| 发表于 2022-12-8 10:48:27 | 显示全部楼层
餐厅▼▼▼



7E1A9833.jpg


7E1A9834.jpg



回复 支持 反对

使用道具 举报

 楼主| 发表于 2022-12-8 10:48:44 | 显示全部楼层
厨房▼▼▼



7E1A9835.jpg


7E1A9839.jpg



回复 支持 反对

使用道具 举报

 楼主| 发表于 2022-12-8 10:49:04 | 显示全部楼层
主卧▼▼▼



7E1A9844.jpg


7E1A9845.jpg



回复 支持 反对

使用道具 举报

 楼主| 发表于 2022-12-8 10:49:30 | 显示全部楼层
女儿房▼▼▼



7E1A9842.jpg


回复 支持 反对

使用道具 举报

 楼主| 发表于 2022-12-8 10:49:48 | 显示全部楼层
次卧▼▼▼

7E1A9850.jpg


7E1A9849.jpg



回复 支持 反对

使用道具 举报

 楼主| 发表于 2022-12-8 10:50:04 | 显示全部楼层
主卫▼▼▼



7E1A9846.jpg


回复 支持 反对

使用道具 举报

您需要登录后才可以回帖 登录 | 立即注册

本版积分规则

全国统一客服电话
0570-8028505

24x7小时免费咨询

  • 官方在线客服

    QQ客服:小西

    点击交谈

    QQ客服:良子

    点击交谈

    QQ客服:闵月

    点击交谈
  • 衢州市柯城区财富中心3号楼2楼

  • 衢州格堂装饰有限公司

  • 扫一扫关注官方微信

    获取一手特惠信息

快速回复 返回顶部 返回列表