• 手机版

    扫码体验手机版

  • 微信公众号

    扫码关注公众号

登录注册
游客您好
第三方账号登陆

[衢州] 国金.滨江一号16-2-80#119㎡现代—偶得幽闲境,遂忘尘俗心

[复制链接]
发表于 2022-3-28 09:30:38 | 显示全部楼层 |阅读模式
国金.滨江一号16-2-80#119㎡现代—偶得幽闲境,遂忘尘俗心

格堂装饰为您全程记录装修全过程!

小区名称
国金.滨江一号
房屋面积
119㎡
户型结构
套房
装修风格
现代
装修方式
半包
装修造价
查看请联系客服万元
设计师
吴工
项目经理
徐工
装修公司
格堂装饰
完工实景
完工实景
水电全景
水电全景
VR全景
VR全景
设计说明
新居所的诞生,代表着迎来了长途跋涉之后的疗愈之旅。生活在这里,会向他们展示出更具力量的温柔,并在共同建立的美好平淡中,丢弃掉日复一日之下会带来的疲倦与乏力。
更多信息
本帖最后由 格堂陈辰 于 2022-3-30 17:29 编辑

效果图
图片3.png

图片4.png
回复

使用道具 举报

 楼主| 发表于 2022-3-28 09:31:26 | 显示全部楼层
本帖最后由 格堂陈辰 于 2022-3-31 08:46 编辑

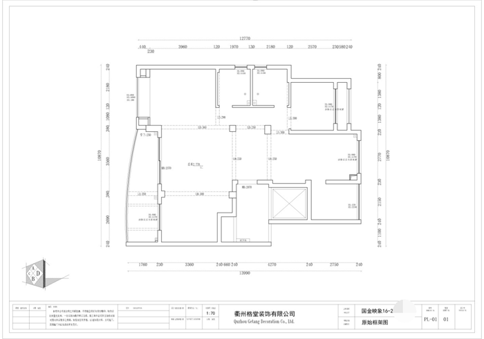
原始结构图
图片1.png


回复 支持 反对

使用道具 举报

 楼主| 发表于 2022-3-28 09:32:08 | 显示全部楼层
本帖最后由 格堂陈辰 于 2022-3-31 08:47 编辑

平面布置图
图片2.png
回复 支持 反对

使用道具 举报

 楼主| 发表于 2022-3-28 09:33:11 | 显示全部楼层
回复 支持 反对

使用道具 举报

 楼主| 发表于 2022-3-28 09:41:13 | 显示全部楼层
大门电梯口保护
IMG_20220313_105935.jpg

IMG_20220313_105938.jpg

IMG_20220313_105940.jpg

IMG_20220313_105941.jpg

IMG_20220313_105943.jpg
回复 支持 反对

使用道具 举报

 楼主| 发表于 2022-3-28 09:41:40 | 显示全部楼层
本帖最后由 格堂陈辰 于 2022-3-28 16:49 编辑

大门电梯口对角保护
IMG_20220313_105949.jpg

IMG_20220313_105951.jpg

IMG_20220313_105954.jpg

IMG_20220313_105955.jpg

IMG_20220313_105957.jpg

回复 支持 反对

使用道具 举报

 楼主| 发表于 2022-3-28 09:44:11 | 显示全部楼层
本帖最后由 格堂陈辰 于 2022-3-28 16:36 编辑

大门保护到位
e3c6a7712b068ba35ca0a1f8d01aa4b.jpg

888000acebad95edf5ad795272a0b6d.jpg
回复 支持 反对

使用道具 举报

 楼主| 发表于 2022-3-28 09:44:57 | 显示全部楼层
本帖最后由 格堂陈辰 于 2022-3-31 08:48 编辑

门槛保护
IMG_20220330_093612.jpg

回复 支持 反对

使用道具 举报

 楼主| 发表于 2022-3-28 09:46:21 | 显示全部楼层

排水管道用格堂专用保护盖保护,防止后期施工中砂石 堵塞管道
IMG_20220313_112018.jpg

IMG_20220313_112053.jpg

IMG_20220313_112058.jpg
回复 支持 反对

使用道具 举报

 楼主| 发表于 2022-3-28 09:46:58 | 显示全部楼层
本帖最后由 格堂陈辰 于 2022-3-28 16:52 编辑

煤气表 保护 到位
IMG_20220313_112045.jpg
回复 支持 反对

使用道具 举报

您需要登录后才可以回帖 登录 | 立即注册

本版积分规则

全国统一客服电话
0570-8028505

24x7小时免费咨询

  • 官方在线客服

    QQ客服:小西

    点击交谈

    QQ客服:良子

    点击交谈

    QQ客服:闵月

    点击交谈
  • 衢州市柯城区财富中心3号楼2楼

  • 衢州格堂装饰有限公司

  • 扫一扫关注官方微信

    获取一手特惠信息

快速回复 返回顶部 返回列表