• 手机版

    扫码体验手机版

  • 微信公众号

    扫码关注公众号

登录注册
游客您好
第三方账号登陆

江南里6#12#91 ㎡现代——悦己

[复制链接]
发表于 2022-12-8 10:12:40 | 显示全部楼层 |阅读模式
江南里6#12#91 ㎡现代——悦己

格堂装饰实景完工案例欣赏!

小区名称
江南里
房屋面积
91㎡
户型结构
套房
装修风格
现代
装修方式
半包
装修造价
查看请联系客服万元
设计师
吴工
项目经理
沈工
装修公司
格堂装饰
装修过程
装修日记
设计说明
设计的意义就是创造幸福。本案的业主作为一对即将结婚的夫妇,结合他们的需求,我们将原有空间进行了一些局部调整,将空间的开阔感和舒适感做到最大化,使浪漫气息与生活实用性并存。为幸福的佳偶营造出了一个温暖的新家,也愿他们未来能在这一起创造出更美好的未来。
更多信息
7E1A9279.jpg


回复

使用道具 举报

 楼主| 发表于 2022-12-8 10:13:57 | 显示全部楼层
原始构图▼▼▼

095625wrcfjegcopf7icni.jpg

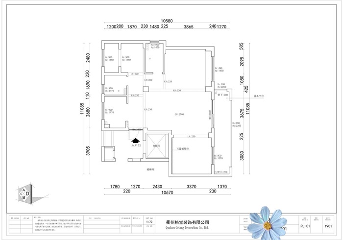
平面布置图▼▼▼

095625mffe2rg1z9xrfgmf.jpg






回复 支持 反对

使用道具 举报

 楼主| 发表于 2022-12-8 10:14:15 | 显示全部楼层
客厅▼▼▼



7E1A9278.jpg


7E1A9279.jpg


7E1A9280.jpg


7E1A9281.jpg


7E1A9282.jpg


7E1A9283.jpg




回复 支持 反对

使用道具 举报

 楼主| 发表于 2022-12-8 10:14:36 | 显示全部楼层
餐厅▼▼▼



7E1A9284.jpg


7E1A9285.jpg


7E1A9286.jpg



回复 支持 反对

使用道具 举报

 楼主| 发表于 2022-12-8 10:15:00 | 显示全部楼层
玄关▼▼▼



7E1A9289.jpg


回复 支持 反对

使用道具 举报

 楼主| 发表于 2022-12-8 10:15:15 | 显示全部楼层
厨房▼▼▼



7E1A9287.jpg


7E1A9288.jpg



回复 支持 反对

使用道具 举报

 楼主| 发表于 2022-12-8 10:15:38 | 显示全部楼层
主卧▼▼▼



7E1A9298.jpg


7E1A9299.jpg


7E1A9296.jpg


7E1A9300.jpg




回复 支持 反对

使用道具 举报

 楼主| 发表于 2022-12-8 10:16:08 | 显示全部楼层
次卧▼▼▼



7E1A9292.jpg


回复 支持 反对

使用道具 举报

 楼主| 发表于 2022-12-8 10:16:34 | 显示全部楼层
主卫▼▼▼



7E1A9295.jpg


回复 支持 反对

使用道具 举报

 楼主| 发表于 2022-12-8 10:17:04 | 显示全部楼层
次卫干区▼▼▼



7E1A9293.jpg


7E1A9294.jpg






回复 支持 反对

使用道具 举报

您需要登录后才可以回帖 登录 | 立即注册

本版积分规则

全国统一客服电话
0570-8028505

24x7小时免费咨询

  • 官方在线客服

    QQ客服:小西

    点击交谈

    QQ客服:良子

    点击交谈

    QQ客服:闵月

    点击交谈
  • 衢州市柯城区财富中心3号楼2楼

  • 衢州格堂装饰有限公司

  • 扫一扫关注官方微信

    获取一手特惠信息

快速回复 返回顶部 返回列表