• 手机版

    扫码体验手机版

  • 微信公众号

    扫码关注公众号

登录注册
游客您好
第三方账号登陆

[龙游] 江南里6-1-12#91 ㎡现代——悦己

[复制链接]
发表于 2022-4-21 09:15:19 | 显示全部楼层 |阅读模式
悦己

格堂装饰为您全程记录装修全过程!

小区名称
江南里
房屋面积
91㎡
户型结构
套房
装修风格
现代
装修方式
半包
装修造价
查看请联系客服万元
设计师
吴工
项目经理
沈工
装修公司
格堂装饰
完工实景
完工实景
水电全景
水电全景
VR全景
VR全景
设计说明
设计的意义就是创造幸福。本案的业主作为一对即将结婚的夫妇,结合他们的需求,我们将原有空间进行了一些局部调整,将空间的开阔感和舒适感做到最大化,使浪漫气息与生活实用性并存。为幸福的佳偶营造出了一个温暖的新家,也愿他们未来能在这一起创造出更美好的未来。
更多信息
本帖最后由 格堂艳子 于 2022-12-9 14:01 编辑

客厅效果图
IMG_9444(20220421-091056).JPG
主卧效果图
IMG_9445(20220421-091100).JPG

目      录


回复

使用道具 举报

 楼主| 发表于 2022-4-21 09:17:07 | 显示全部楼层
本帖最后由 格堂艳子 于 2022-4-21 09:56 编辑

原始结果图
QQ图片20220421095306.jpg
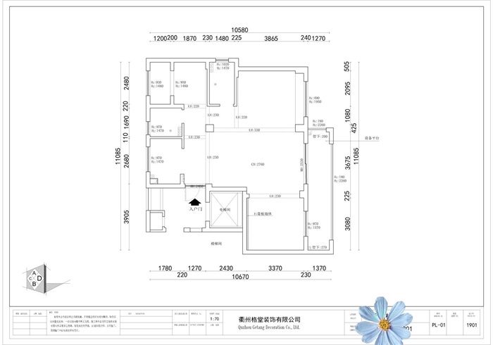
平面布置图
IMG_9443(20220421-090259).JPG
回复 支持 反对

使用道具 举报

 楼主| 发表于 2022-4-21 10:04:27 | 显示全部楼层
本帖最后由 格堂艳子 于 2022-4-21 10:33 编辑

开工前大门已保护到位,防止磕碰
IMG_9263.JPG 玻璃保护膜到位,防止后期玻璃磕碰破损。
IMG_9275.JPG

IMG_9276.JPG

IMG_9277.JPG

IMG_9274.JPG




回复 支持 反对

使用道具 举报

 楼主| 发表于 2022-4-21 10:05:54 | 显示全部楼层
电梯口墙面和地面都贴好了格堂专用的保护垫。
IMG_9258.JPG

IMG_9259.JPG

IMG_9260.JPG

IMG_9261.JPG

IMG_9262.JPG

回复 支持 反对

使用道具 举报

 楼主| 发表于 2022-4-21 10:06:46 | 显示全部楼层
电梯口对角
IMG_9253.JPG

IMG_9254.JPG

IMG_9255.JPG

IMG_9256.JPG

IMG_9257.JPG
回复 支持 反对

使用道具 举报

 楼主| 发表于 2022-4-21 10:08:28 | 显示全部楼层
临时马桶:每一个施工现场都会配备临时小便斗,并且时刻保持干净卫生、保证工地环境干净、整洁。 IMG_9267.JPG



回复 支持 反对

使用道具 举报

 楼主| 发表于 2022-4-21 10:09:21 | 显示全部楼层
排水管道用格堂装饰专用保护盖保护,防止后期施工砂石堵塞管道
IMG_9271.JPG

IMG_9272.JPG

IMG_9266.JPG

IMG_9270.JPG
回复 支持 反对

使用道具 举报

 楼主| 发表于 2022-4-21 10:11:01 | 显示全部楼层
礼炮已准备好
IMG_9289.JPG

IMG_9288.JPG





回复 支持 反对

使用道具 举报

 楼主| 发表于 2022-4-21 10:12:05 | 显示全部楼层
开工锤已准备好
IMG_9291.JPG
回复 支持 反对

使用道具 举报

 楼主| 发表于 2022-4-21 10:12:42 | 显示全部楼层
一切准备就绪,等待开工吉时
IMG_9290.JPG
回复 支持 反对

使用道具 举报

您需要登录后才可以回帖 登录 | 立即注册

本版积分规则

全国统一客服电话
0570-8028505

24x7小时免费咨询

  • 官方在线客服

    QQ客服:小西

    点击交谈

    QQ客服:良子

    点击交谈

    QQ客服:闵月

    点击交谈
  • 衢州市柯城区财富中心3号楼2楼

  • 衢州格堂装饰有限公司

  • 扫一扫关注官方微信

    获取一手特惠信息

快速回复 返回顶部 返回列表