• 手机版

    扫码体验手机版

  • 微信公众号

    扫码关注公众号

登录注册
游客您好
第三方账号登陆

[衢州] 香缇公馆19-2-4#85㎡奶油风——协奏

[复制链接]
发表于 2022-11-3 17:20:51 | 显示全部楼层 |阅读模式
协奏

格堂装饰为您全程记录装修全过程!

小区名称
香缇公馆
房屋面积
85㎡
户型结构
套房
装修风格
奶油风
装修方式
半包
装修造价
查看请联系客服万元
设计师
石工
项目经理
徐工
装修公司
格堂装饰
完工实景
完工实景
水电全景
水电全景
VR全景
VR全景
设计说明
本案业主希望空间简单且温馨,设计上通过温暖的灯光和奶油色系为主色调,搭配一些圆弧及温润的木色,让空间跟贴切女业主的喜好,在有限的投入中创造美好的生活品质。
更多信息

效果图
IMG_3527.JPG

IMG_3529.JPG

IMG_3530.JPG

IMG_3531.JPG

IMG_3533.JPG
回复

使用道具 举报

 楼主| 发表于 2022-11-3 17:21:43 | 显示全部楼层
回复 支持 反对

使用道具 举报

 楼主| 发表于 2022-11-3 17:22:05 | 显示全部楼层

原始结构图
IMG_3522.PNG
回复 支持 反对

使用道具 举报

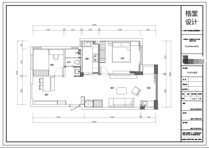
 楼主| 发表于 2022-11-3 17:22:26 | 显示全部楼层

平面布置图
IMG_3523.PNG
回复 支持 反对

使用道具 举报

 楼主| 发表于 2022-11-5 17:18:06 | 显示全部楼层

项目经理正在做,开工前的准备工作。
IMG_2588.JPG

IMG_2589.JPG

IMG_2591.JPG

IMG_2592.JPG

IMG_2593.JPG
回复 支持 反对

使用道具 举报

 楼主| 发表于 2022-11-5 17:19:35 | 显示全部楼层

开工前配电箱面板,先要拆除,防止磕碰哦!
IMG_2594.JPG
回复 支持 反对

使用道具 举报

 楼主| 发表于 2022-11-5 17:22:45 | 显示全部楼层

煤气表也要保护起来,防止磕碰哦!
IMG_2596.JPG

IMG_2597.JPG
回复 支持 反对

使用道具 举报

 楼主| 发表于 2022-11-5 17:23:56 | 显示全部楼层
本帖最后由 格堂飞飞 于 2022-11-6 09:54 编辑

一切准备就绪,等待开工吉时啦!
IMG_2606.JPG

IMG_2600.JPG
回复 支持 反对

使用道具 举报

 楼主| 发表于 2022-11-6 09:54:50 | 显示全部楼层

吉时已到,恭祝业主大人,开工大吉!
IMG_2632.JPG
回复 支持 反对

使用道具 举报

 楼主| 发表于 2022-11-6 09:56:24 | 显示全部楼层

开工第一锤,由业主大人,亲自来哦!
IMG_2629.JPG

IMG_2630.JPG
回复 支持 反对

使用道具 举报

您需要登录后才可以回帖 登录 | 立即注册

本版积分规则

全国统一客服电话
0570-8028505

24x7小时免费咨询

  • 官方在线客服

    QQ客服:小西

    点击交谈

    QQ客服:良子

    点击交谈

    QQ客服:闵月

    点击交谈
  • 衢州市柯城区财富中心3号楼2楼

  • 衢州格堂装饰有限公司

  • 扫一扫关注官方微信

    获取一手特惠信息

快速回复 返回顶部 返回列表