• 手机版

    扫码体验手机版

  • 微信公众号

    扫码关注公众号

登录注册
游客您好
第三方账号登陆

衢州公馆11-3-20#135 ㎡现代——木白

[复制链接]
发表于 2022-10-29 16:22:14 | 显示全部楼层 |阅读模式
衢州公馆11-3-20#135 ㎡现代——木白

格堂装饰实景完工案例欣赏!

小区名称
衢州公馆
房屋面积
135㎡
户型结构
套房
装修风格
现代
装修方式
半包
装修造价
查看请联系客服万元
设计师
毛工
项目经理
施工
装修公司
格堂装饰
装修过程
装修日记
设计说明
"在光阴的剪影中盈盈浅笑,任寒风吹过依旧向阳。"
世人喜爱繁华的表象,可繁华终有落幕,繁华已逝,留下的又是什么?繁华虽好,却敌不过简简单单四字
更多信息
7E1A9090.jpg


回复

使用道具 举报

 楼主| 发表于 2022-10-29 16:23:05 | 显示全部楼层
原始构图▼▼▼

112302q2uwuck2wma2mmeu.jpg

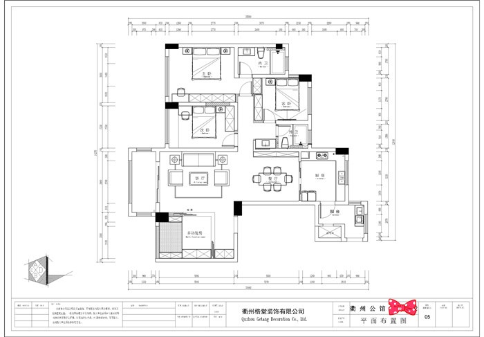
平面布置图▼▼▼

112317x2qbht20jr23s2sf.jpg


回复 支持 反对

使用道具 举报

 楼主| 发表于 2022-10-29 16:28:04 | 显示全部楼层
玄关▼▼▼



7E1A8994.jpg


回复 支持 反对

使用道具 举报

 楼主| 发表于 2022-10-29 16:28:50 | 显示全部楼层
客厅▼▼▼



7E1A8999.jpg


7E1A9003.jpg


7E1A9088.jpg


7E1A9089.jpg


7E1A8991.jpg


回复 支持 反对

使用道具 举报

 楼主| 发表于 2022-10-29 16:29:23 | 显示全部楼层
餐厅▼▼▼



7E1A9018.jpg


7E1A9019.jpg


7E1A9020.jpg


7E1A9013.jpg


7E1A9021.jpg


回复 支持 反对

使用道具 举报

 楼主| 发表于 2022-10-29 16:29:56 | 显示全部楼层
厨房▼▼▼



7E1A9028.jpg



7E1A9023.jpg


7E1A9024.jpg


7E1A9026.jpg


回复 支持 反对

使用道具 举报

 楼主| 发表于 2022-10-29 16:31:40 | 显示全部楼层
榻榻米房▼▼▼



7E1A9005.jpg


7E1A9006.jpg


7E1A9009.jpg


7E1A9010.jpg


7E1A9090.jpg


7E1A9111.jpg


回复 支持 反对

使用道具 举报

 楼主| 发表于 2022-10-29 16:32:06 | 显示全部楼层
主卧▼▼▼



7E1A9030.jpg


7E1A9031.jpg


7E1A9032.jpg


7E1A9034.jpg


7E1A9035.jpg


回复 支持 反对

使用道具 举报

 楼主| 发表于 2022-10-29 16:32:51 | 显示全部楼层
小孩房▼▼▼



7E1A9042.jpg


7E1A9043.jpg


7E1A9049.jpg


7E1A9044.jpg



回复 支持 反对

使用道具 举报

 楼主| 发表于 2022-10-29 16:33:46 | 显示全部楼层
主卫▼▼▼



7E1A9038.jpg


7E1A9039.jpg


回复 支持 反对

使用道具 举报

您需要登录后才可以回帖 登录 | 立即注册

本版积分规则

全国统一客服电话
0570-8028505

24x7小时免费咨询

  • 官方在线客服

    QQ客服:小西

    点击交谈

    QQ客服:良子

    点击交谈

    QQ客服:闵月

    点击交谈
  • 衢州市柯城区财富中心3号楼2楼

  • 衢州格堂装饰有限公司

  • 扫一扫关注官方微信

    获取一手特惠信息

快速回复 返回顶部 返回列表