• 手机版

    扫码体验手机版

  • 微信公众号

    扫码关注公众号

登录注册
游客您好
第三方账号登陆

[衢州] 衢州公馆11-3-20#135 ㎡现代——木白

[复制链接]
发表于 2020-10-11 11:22:50 | 显示全部楼层 |阅读模式
木白

格堂装饰为您全程记录装修全过程!

小区名称
衢州公馆
房屋面积
135㎡
户型结构
套房
装修风格
现代
装修方式
半包
装修造价
查看请联系客服万元
设计师
毛工
项目经理
施工
装修公司
格堂装饰
完工实景
完工实景
水电全景
水电全景
VR全景
VR全景
设计说明
"在光阴的剪影中盈盈浅笑,任寒风吹过依旧向阳。"
世人喜爱繁华的表象,可繁华终有落幕,繁华已逝,留下的又是什么?繁华虽好,却敌不过简简单单四字
更多信息

效果图
d40162b2c31ecb5f35b819c6a8d48c0.jpg

fed16845ba9798d687117c06c3dcf85.jpg
回复

使用道具 举报

 楼主| 发表于 2020-10-11 11:23:10 | 显示全部楼层

原始结构图
521ce24958bd5bc892c42891d70193e.jpg
回复 支持 反对

使用道具 举报

 楼主| 发表于 2020-10-11 11:23:25 | 显示全部楼层

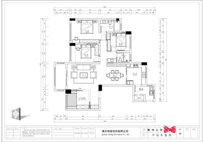
平面布置图
def4f3003ca30b41cf44f0422ef0af6.jpg
回复 支持 反对

使用道具 举报

 楼主| 发表于 2020-10-11 11:24:26 | 显示全部楼层

开工前大门已经保护到位。
IMG_20201001_082101.jpg

IMG_20201001_082143.jpg

IMG_20201001_082150.jpg
回复 支持 反对

使用道具 举报

 楼主| 发表于 2020-10-11 11:25:15 | 显示全部楼层

临时马桶:每一个施工现场都会配备临时小便斗,并且时刻保持干净卫生、保证工地环境干净、整洁。
IMG_20201001_081522.jpg
回复 支持 反对

使用道具 举报

 楼主| 发表于 2020-10-11 11:25:44 | 显示全部楼层

煤气表已经保护到位
IMG_20201001_081545.jpg
回复 支持 反对

使用道具 举报

 楼主| 发表于 2020-10-11 11:26:16 | 显示全部楼层

礼炮已经准备好了。
IMG_20201001_081512.jpg
回复 支持 反对

使用道具 举报

 楼主| 发表于 2020-10-11 11:26:50 | 显示全部楼层

开工锤已经准备好了。
IMG_20201001_081501.jpg
回复 支持 反对

使用道具 举报

 楼主| 发表于 2020-10-11 11:27:40 | 显示全部楼层

下水管用格堂专用保护盖保护,防止砂石堵塞管道。
IMG_20201001_081518.jpg

IMG_20201001_081542.jpg

IMG_20201001_081531.jpg
回复 支持 反对

使用道具 举报

 楼主| 发表于 2020-10-11 11:28:44 | 显示全部楼层

给业主大人送上美丽的鲜花。
IMG_20201001_081458.jpg
回复 支持 反对

使用道具 举报

您需要登录后才可以回帖 登录 | 立即注册

本版积分规则

全国统一客服电话
0570-8028505

24x7小时免费咨询

  • 官方在线客服

    QQ客服:小西

    点击交谈

    QQ客服:良子

    点击交谈

    QQ客服:闵月

    点击交谈
  • 衢州市柯城区财富中心3号楼2楼

  • 衢州格堂装饰有限公司

  • 扫一扫关注官方微信

    获取一手特惠信息

快速回复 返回顶部 返回列表