• 手机版

    扫码体验手机版

  • 微信公众号

    扫码关注公众号

登录注册
游客您好
第三方账号登陆

姜家山.振兴家园三区3-2-14#110㎡现代简约——【暖意】

[复制链接]
发表于 2022-10-25 10:32:12 | 显示全部楼层 |阅读模式
姜家山.振兴家园三区3-2-14#110㎡现代简约——【暖意】

格堂装饰实景完工案例欣赏!

小区名称
振兴家园
房屋面积
110㎡
户型结构
套房
装修风格
现代
装修方式
半包
装修造价
查看请联系客服万元
设计师
徐工
项目经理
胡工
装修公司
格堂装饰
装修过程
装修日记
设计说明
本案采用简约明朗的线条,将空间进行了合理的分割。面对嘈杂的都市生活,一处能让心灵沉淀的生活空间,也是设计师为本案所体现的主要思想
更多信息
7E1A8577.jpg


回复

使用道具 举报

 楼主| 发表于 2022-10-25 10:33:11 | 显示全部楼层
原始构图▼▼▼

173025yxxnnnx1oxbyg1im.jpg

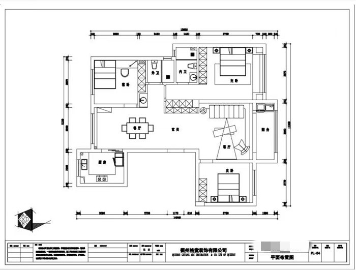
平面布置图▼▼▼




173047olopavof8dzoasg1.jpg


回复 支持 反对

使用道具 举报

 楼主| 发表于 2022-10-25 10:34:21 | 显示全部楼层
客厅▼▼▼



7E1A8575.jpg


7E1A8576.jpg


7E1A8577.jpg


7E1A8579.jpg


7E1A8580.jpg


7E1A8581.jpg





回复 支持 反对

使用道具 举报

 楼主| 发表于 2022-10-25 10:34:42 | 显示全部楼层
玄关▼▼▼



7E1A8582.jpg


7E1A8583.jpg


7E1A8584.jpg



回复 支持 反对

使用道具 举报

 楼主| 发表于 2022-10-25 10:35:04 | 显示全部楼层
餐厅▼▼▼



7E1A8586.jpg


7E1A8587.jpg


7E1A8588.jpg



回复 支持 反对

使用道具 举报

 楼主| 发表于 2022-10-25 10:35:27 | 显示全部楼层
厨房▼▼▼



7E1A8614.jpg


7E1A8613.jpg




回复 支持 反对

使用道具 举报

 楼主| 发表于 2022-10-25 10:36:00 | 显示全部楼层
主卧▼▼▼



7E1A8593.jpg


7E1A8595.jpg



7E1A8594.jpg


7E1A8592.jpg


7E1A8596.jpg




回复 支持 反对

使用道具 举报

 楼主| 发表于 2022-10-25 10:36:37 | 显示全部楼层
儿子房▼▼▼



7E1A8600.jpg


7E1A8601.jpg




回复 支持 反对

使用道具 举报

 楼主| 发表于 2022-10-25 10:37:09 | 显示全部楼层
女儿房▼▼▼



7E1A8602.jpg


7E1A8603.jpg


7E1A8604.jpg




回复 支持 反对

使用道具 举报

 楼主| 发表于 2022-10-25 10:37:30 | 显示全部楼层
干区▼▼▼



7E1A8589.jpg


7E1A8590.jpg


7E1A8591.jpg



回复 支持 反对

使用道具 举报

您需要登录后才可以回帖 登录 | 立即注册

本版积分规则

全国统一客服电话
0570-8028505

24x7小时免费咨询

  • 官方在线客服

    QQ客服:小西

    点击交谈

    QQ客服:良子

    点击交谈

    QQ客服:闵月

    点击交谈
  • 衢州市柯城区财富中心3号楼2楼

  • 衢州格堂装饰有限公司

  • 扫一扫关注官方微信

    获取一手特惠信息

快速回复 返回顶部 返回列表