• 手机版

    扫码体验手机版

  • 微信公众号

    扫码关注公众号

登录注册
游客您好
第三方账号登陆

[衢州] 姜家山.振兴家园三区3-2-14#110㎡现代简约——【暖意】

[复制链接]
发表于 2022-2-26 17:30:09 | 显示全部楼层 |阅读模式
【暖意】

格堂装饰为您全程记录装修全过程!

小区名称
姜家山.振兴家园三区
房屋面积
110㎡
户型结构
套房
装修风格
现代
装修方式
半包
装修造价
查看请联系客服万元
设计师
徐工
项目经理
胡工
装修公司
格堂装饰
完工实景
完工实景
水电全景
水电全景
VR全景
VR全景
设计说明
本案采用简约明朗的线条,将空间进行了合理的分割。面对嘈杂的都市生活,一处能让心灵沉淀的生活空间,也是设计师为本案所体现的主要思想。
更多信息

效果图
1e04e5bf5f20d8b8c9b3e9f72f9ac40.jpg

bce3763bbe0a8fedd3027650f2b38d2.jpg
回复

使用道具 举报

 楼主| 发表于 2022-2-26 17:30:19 | 显示全部楼层
回复 支持 反对

使用道具 举报

 楼主| 发表于 2022-2-26 17:30:39 | 显示全部楼层

原始结构图
ea7a2609badaad223781179d202b4d2.jpg
回复 支持 反对

使用道具 举报

 楼主| 发表于 2022-2-26 17:30:55 | 显示全部楼层

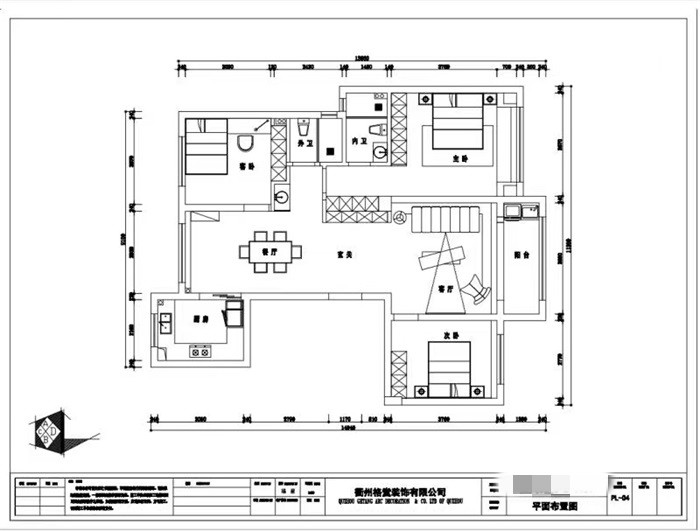
平面布置图
6fa71df35297a5ed9e8a2442d1e2858.jpg
回复 支持 反对

使用道具 举报

 楼主| 发表于 2022-2-27 14:58:33 | 显示全部楼层

开工前准备工作,先要做好哦!
IMG_9242.JPG

IMG_9243.JPG

IMG_9244.JPG

IMG_9246.JPG

IMG_9247.JPG
回复 支持 反对

使用道具 举报

 楼主| 发表于 2022-2-27 15:01:09 | 显示全部楼层

电梯间墙面和地面,保护到位,防止磕碰哦!
IMG_9232.JPG

IMG_9235.JPG

IMG_9236.JPG

IMG_9230.JPG
回复 支持 反对

使用道具 举报

 楼主| 发表于 2022-2-27 15:02:43 | 显示全部楼层

电梯间
IMG_9233.JPG

IMG_9238.JPG

IMG_9231.JPG

IMG_9239.JPG
回复 支持 反对

使用道具 举报

 楼主| 发表于 2022-2-27 15:07:37 | 显示全部楼层

今天是个好日子,一切准备就绪,就等开工吉时啦!
IMG_9241.JPG
回复 支持 反对

使用道具 举报

 楼主| 发表于 2022-2-27 15:16:50 | 显示全部楼层

吉时已到,恭祝业主大人,开工大吉!
IMG_9257.JPG
回复 支持 反对

使用道具 举报

 楼主| 发表于 2022-2-27 15:17:47 | 显示全部楼层

开工第一锤,由业主大人,亲自来哦!
IMG_9253.JPG

IMG_9252.JPG
回复 支持 反对

使用道具 举报

您需要登录后才可以回帖 登录 | 立即注册

本版积分规则

全国统一客服电话
0570-8028505

24x7小时免费咨询

  • 官方在线客服

    QQ客服:小西

    点击交谈

    QQ客服:良子

    点击交谈

    QQ客服:闵月

    点击交谈
  • 衢州市柯城区财富中心3号楼2楼

  • 衢州格堂装饰有限公司

  • 扫一扫关注官方微信

    获取一手特惠信息

快速回复 返回顶部 返回列表