• 手机版

    扫码体验手机版

  • 微信公众号

    扫码关注公众号

登录注册
游客您好
第三方账号登陆

观棠府5-2-16#120㎡ 现代——极简主义的另一种高级演绎

[复制链接]
发表于 2022-10-25 10:01:25 | 显示全部楼层 |阅读模式
观棠府5-2-16#120㎡ 现代——极简主义的另一种高级演绎

格堂装饰实景完工案例欣赏!

小区名称
观棠府
房屋面积
120㎡
户型结构
套房
装修风格
现代
装修方式
半包
装修造价
查看请联系客服万元
设计师
吴工
项目经理
施工
装修公司
格堂装饰
装修过程
装修日记
设计说明
设计说明:极简是创造和谐
而不是简单化
---深泽直人
极简不是简单的断离舍
而是以功能为设计的中心和目的
最大程度释放空间的体量
简而不减
把有温度的细节
系数藏到极简的空间里创造和谐
同时体现质感和生活感
满足居住者对家的所有期待
更多信息
7E1A8830.jpg


回复

使用道具 举报

 楼主| 发表于 2022-10-25 10:03:02 | 显示全部楼层
原始构图▼▼▼

171740tree9ttssxa6exrs.jpg

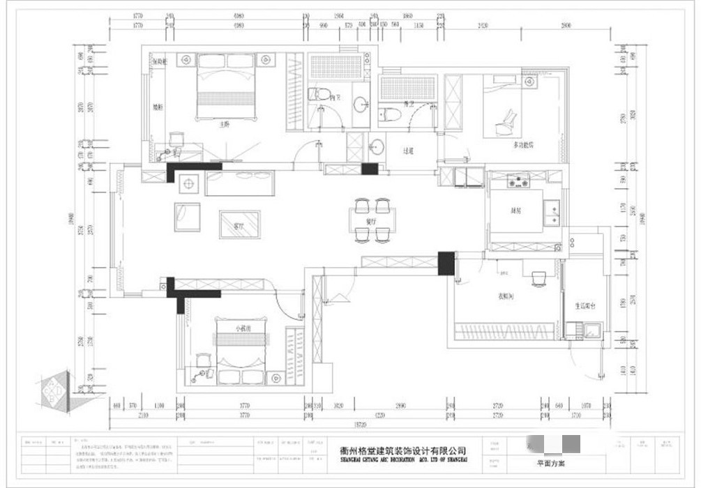
平面布置图▼▼▼

171800otxdfts8s1xyqsuy.jpg




回复 支持 反对

使用道具 举报

 楼主| 发表于 2022-10-25 10:03:39 | 显示全部楼层
客厅▼▼▼



7E1A8829.jpg


7E1A8830.jpg


7E1A8831.jpg


7E1A8832.jpg


7E1A8847.jpg


7E1A8855.jpg


7E1A8856.jpg


7E1A8857.jpg












回复 支持 反对

使用道具 举报

 楼主| 发表于 2022-10-25 10:04:02 | 显示全部楼层
餐厅▼▼▼





7E1A8834.jpg

7E1A8835.jpg

7E1A8836.jpg

7E1A8837.jpg

7E1A8839.jpg

回复 支持 反对

使用道具 举报

 楼主| 发表于 2022-10-25 10:04:30 | 显示全部楼层
厨房▼▼▼



7E1A8843.jpg


7E1A8844.jpg






回复 支持 反对

使用道具 举报

 楼主| 发表于 2022-10-25 10:05:04 | 显示全部楼层
主卧▼▼▼



7E1A8862.jpg


7E1A8865.jpg


7E1A8863.jpg


7E1A8859.jpg


7E1A8861.jpg










回复 支持 反对

使用道具 举报

 楼主| 发表于 2022-10-25 10:05:30 | 显示全部楼层
玄关▼▼▼





7E1A8877.jpg

回复 支持 反对

使用道具 举报

 楼主| 发表于 2022-10-25 10:06:03 | 显示全部楼层
小孩房▼▼▼



7E1A8850.jpg

7E1A8851.jpg

7E1A8849.jpg



回复 支持 反对

使用道具 举报

 楼主| 发表于 2022-10-25 10:06:41 | 显示全部楼层
卫生间▼▼▼





7E1A8878.jpg

回复 支持 反对

使用道具 举报

 楼主| 发表于 2022-10-25 10:07:15 | 显示全部楼层
小景▼▼▼



7E1A8876.jpg


7E1A8875.jpg


7E1A8874.jpg


7E1A8866.jpg


7E1A8860.jpg






回复 支持 反对

使用道具 举报

您需要登录后才可以回帖 登录 | 立即注册

本版积分规则

全国统一客服电话
0570-8028505

24x7小时免费咨询

  • 官方在线客服

    QQ客服:小西

    点击交谈

    QQ客服:良子

    点击交谈

    QQ客服:闵月

    点击交谈
  • 衢州市柯城区财富中心3号楼2楼

  • 衢州格堂装饰有限公司

  • 扫一扫关注官方微信

    获取一手特惠信息

快速回复 返回顶部 返回列表