• 手机版

    扫码体验手机版

  • 微信公众号

    扫码关注公众号

登录注册
游客您好
第三方账号登陆

[衢州] 观棠府5-2-16#120㎡ 现代——极简主义的另一种高级演绎

[复制链接]
发表于 2021-4-13 17:15:29 | 显示全部楼层 |阅读模式
极简主义的另一种高级演绎

格堂装饰为您全程记录装修全过程!

小区名称
观棠府
房屋面积
120㎡
户型结构
套房
装修风格
现代
装修方式
半包
装修造价
查看请联系客服万元
设计师
吴工
项目经理
施工
装修公司
格堂装饰
完工实景
完工实景
水电全景
水电全景
VR全景
VR全景
设计说明
设计说明:极简是创造和谐
而不是简单化
---深泽直人
极简不是简单的断离舍
而是以功能为设计的中心和目的
最大程度释放空间的体量
简而不减
把有温度的细节
系数藏到极简的空间里创造和谐
同时体现质感和生活感
满足居住者对家的所有期待
更多信息

效果图
IMG_9682.JPG

IMG_9683.JPG
回复

使用道具 举报

 楼主| 发表于 2021-4-13 17:17:51 | 显示全部楼层

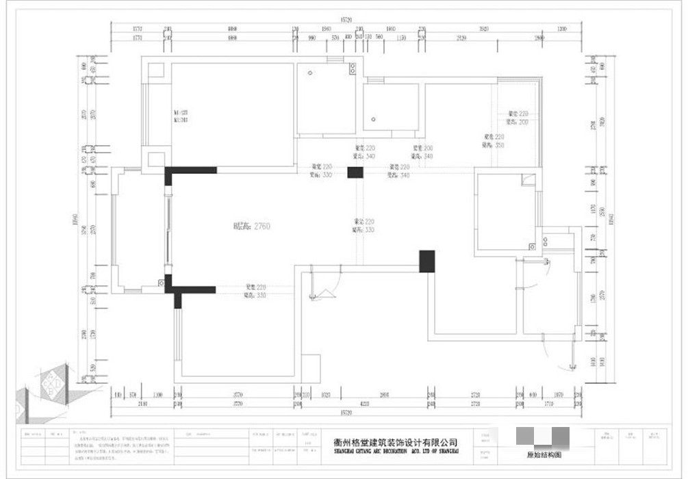
原始结构图
IMG_9684.JPG
回复 支持 反对

使用道具 举报

 楼主| 发表于 2021-4-13 17:18:10 | 显示全部楼层

平面布置图
IMG_9685.JPG
回复 支持 反对

使用道具 举报

 楼主| 发表于 2021-4-14 16:53:00 | 显示全部楼层

开工前准备工作,先要做好哦!
IMG_8792.JPG
电梯间墙面和地面保护到位,防止磕碰哦!
IMG_8790.JPG

IMG_8791.JPG

IMG_8787.JPG
回复 支持 反对

使用道具 举报

 楼主| 发表于 2021-4-14 16:53:46 | 显示全部楼层

电梯间
IMG_8788.JPG

IMG_8793.JPG

IMG_8789.JPG

IMG_8794.JPG
回复 支持 反对

使用道具 举报

 楼主| 发表于 2021-4-14 16:54:23 | 显示全部楼层

大门保护到位,防止磕碰哦!
IMG_8795.JPG

IMG_8798.JPG
回复 支持 反对

使用道具 举报

 楼主| 发表于 2021-4-14 16:55:13 | 显示全部楼层

门槛也保护到位,防止磕碰哦!
IMG_8796.JPG
回复 支持 反对

使用道具 举报

 楼主| 发表于 2021-4-14 16:55:55 | 显示全部楼层

临时马桶安装到位,要讲究卫生。
IMG_8809.JPG
回复 支持 反对

使用道具 举报

 楼主| 发表于 2021-4-14 16:56:50 | 显示全部楼层

水管用格堂专用保护盖保护,防止砂石堵塞管道。

IMG_8811.JPG

IMG_8810.JPG
回复 支持 反对

使用道具 举报

 楼主| 发表于 2021-4-14 16:57:27 | 显示全部楼层

煤气表也要保护起来哦!
IMG_8817.JPG
回复 支持 反对

使用道具 举报

您需要登录后才可以回帖 登录 | 立即注册

本版积分规则

全国统一客服电话
0570-8028505

24x7小时免费咨询

  • 官方在线客服

    QQ客服:小西

    点击交谈

    QQ客服:良子

    点击交谈

    QQ客服:闵月

    点击交谈
  • 衢州市柯城区财富中心3号楼2楼

  • 衢州格堂装饰有限公司

  • 扫一扫关注官方微信

    获取一手特惠信息

快速回复 返回顶部 返回列表