• 手机版

    扫码体验手机版

  • 微信公众号

    扫码关注公众号

登录注册
游客您好
第三方账号登陆

中央公园2-1-8#74㎡现代——未染

[复制链接]
发表于 2022-10-25 09:27:51 | 显示全部楼层 |阅读模式
中央公园2-1-8#74㎡现代——未染

格堂装饰实景完工案例欣赏!

小区名称
中央公园
房屋面积
74㎡
户型结构
套房
装修风格
现代
装修方式
半包
装修造价
查看请联系客服万元
设计师
徐工
项目经理
周工
装修公司
格堂装饰
装修过程
装修日记
设计说明
简单是一种微妙的艺术,
历经时间冥思,沉淀出繁复细节中的本质。
外在轮廓的雅致线条,手工纺织的柔软质感。
第二眼后依然惊喜,与之久处不厌,
即使深培生活的艺术,
意想不到的愉悦触感,还是会令你沉醉其中。
更多信息
7E1A8429.jpg


回复

使用道具 举报

 楼主| 发表于 2022-10-25 09:29:00 | 显示全部楼层
原始构图▼▼▼

104656smhj0mea8zhe080z.jpg

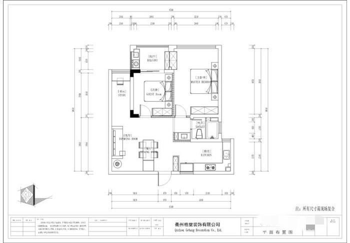
平面布置图▼▼▼

104757efutglunn94t3w9i.jpg




回复 支持 反对

使用道具 举报

 楼主| 发表于 2022-10-25 09:48:46 | 显示全部楼层
客餐厅▼▼▼



7E1A8425.jpg


7E1A8426.jpg


7E1A8428.jpg


7E1A8429.jpg


7E1A8431.jpg


7E1A8433.jpg


7E1A8435.jpg




回复 支持 反对

使用道具 举报

 楼主| 发表于 2022-10-25 09:49:30 | 显示全部楼层
厨房▼▼▼



7E1A8439.jpg


7E1A8440.jpg


7E1A8441.jpg



回复 支持 反对

使用道具 举报

 楼主| 发表于 2022-10-25 09:51:45 | 显示全部楼层
主卧▼▼▼



7E1A8361.jpg


7E1A8362.jpg


7E1A8364.jpg


7E1A8365.jpg


7E1A8368.jpg



回复 支持 反对

使用道具 举报

 楼主| 发表于 2022-10-25 09:54:03 | 显示全部楼层
次卧▼▼▼



7E1A8379.jpg


7E1A8381.jpg


7E1A8394.jpg



回复 支持 反对

使用道具 举报

 楼主| 发表于 2022-10-25 09:54:56 | 显示全部楼层
次卫干区▼▼▼



7E1A8374.jpg


7E1A8375.jpg


7E1A8376.jpg


7E1A8438.jpg


回复 支持 反对

使用道具 举报

 楼主| 发表于 2022-10-25 09:55:28 | 显示全部楼层
书房▼▼▼



7E1A8423.jpg


7E1A8443.jpg


7E1A8444.jpg


回复 支持 反对

使用道具 举报

 楼主| 发表于 2022-10-25 09:56:21 | 显示全部楼层
小景▼▼▼



7E1A8396.jpg


7E1A8401.jpg


7E1A8412.jpg


7E1A8418.jpg


7E1A8422.jpg


回复 支持 反对

使用道具 举报

您需要登录后才可以回帖 登录 | 立即注册

本版积分规则

全国统一客服电话
0570-8028505

24x7小时免费咨询

  • 官方在线客服

    QQ客服:小西

    点击交谈

    QQ客服:良子

    点击交谈

    QQ客服:闵月

    点击交谈
  • 衢州市柯城区财富中心3号楼2楼

  • 衢州格堂装饰有限公司

  • 扫一扫关注官方微信

    获取一手特惠信息

快速回复 返回顶部 返回列表