• 手机版

    扫码体验手机版

  • 微信公众号

    扫码关注公众号

登录注册
游客您好
第三方账号登陆

[衢州] 中央公园2-1-8#74㎡现代——未染

[复制链接]
发表于 2021-11-2 10:46:28 | 显示全部楼层 |阅读模式
未染

格堂装饰为您全程记录装修全过程!

小区名称
中央公园
房屋面积
74㎡
户型结构
套房
装修风格
现代
装修方式
半包
装修造价
查看请联系客服万元
设计师
徐工
项目经理
周工
装修公司
格堂装饰
完工实景
完工实景
水电全景
水电全景
VR全景
VR全景
设计说明
简单是一种微妙的艺术,
历经时间冥思,沉淀出繁复细节中的本质。
外在轮廓的雅致线条,手工纺织的柔软质感。
第二眼后依然惊喜,与之久处不厌,
即使深培生活的艺术,
意想不到的愉悦触感,还是会令你沉醉其中。
更多信息
本帖最后由 格堂飞飞 于 2021-11-16 13:52 编辑

效果图
IMG_3366.JPG

IMG_3367.JPG
回复

使用道具 举报

 楼主| 发表于 2021-11-2 10:46:36 | 显示全部楼层
回复 支持 反对

使用道具 举报

 楼主| 发表于 2021-11-2 10:47:12 | 显示全部楼层
原始结构图
IMG_3370.JPG
回复 支持 反对

使用道具 举报

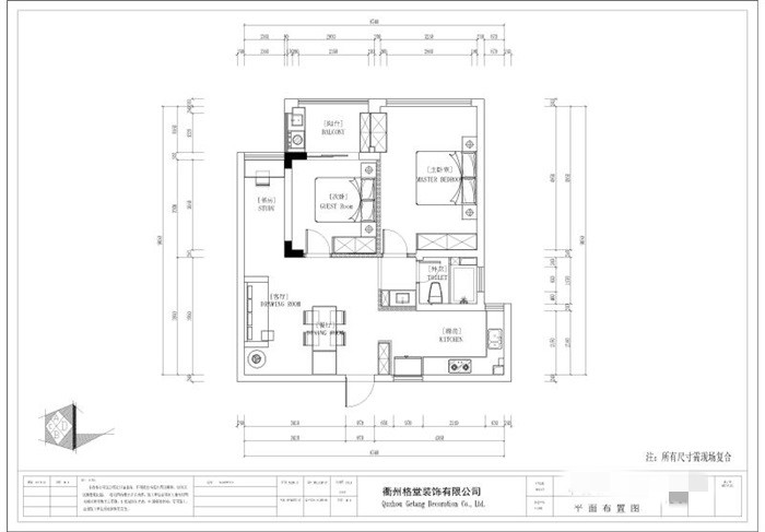
 楼主| 发表于 2021-11-2 10:48:11 | 显示全部楼层
本帖最后由 格堂飞飞 于 2021-12-11 15:58 编辑

平面布置图
IMG_3368.JPG
回复 支持 反对

使用道具 举报

 楼主| 发表于 2021-11-2 10:51:08 | 显示全部楼层
本帖最后由 格堂飞飞 于 2021-11-2 11:32 编辑

开工前大门,先要保护起来,防止磕碰哦!
IMG_0773.JPG

IMG_0770.JPG
回复 支持 反对

使用道具 举报

 楼主| 发表于 2021-11-2 10:51:48 | 显示全部楼层

门槛也保护到位,防止磕碰哦!
IMG_0771.JPG
回复 支持 反对

使用道具 举报

 楼主| 发表于 2021-11-2 10:52:34 | 显示全部楼层
本帖最后由 格堂飞飞 于 2021-11-2 10:55 编辑

电梯间墙面和地面保护到位,防止磕碰!
IMG_0776.JPG

IMG_0777.JPG

IMG_0774.JPG

IMG_0773.JPG

回复 支持 反对

使用道具 举报

 楼主| 发表于 2021-11-2 10:56:10 | 显示全部楼层
电梯间
IMG_0775.JPG



回复 支持 反对

使用道具 举报

 楼主| 发表于 2021-11-2 10:57:47 | 显示全部楼层

项目经理正在做,开工前的准备工作哦!
IMG_0772.JPG

IMG_0779.JPG

IMG_0781.JPG

IMG_0782.JPG
回复 支持 反对

使用道具 举报

 楼主| 发表于 2021-11-2 10:58:44 | 显示全部楼层
煤气表也要保护起来,防止磕碰哦!
IMG_0783.JPG


回复 支持 反对

使用道具 举报

您需要登录后才可以回帖 登录 | 立即注册

本版积分规则

全国统一客服电话
0570-8028505

24x7小时免费咨询

  • 官方在线客服

    QQ客服:小西

    点击交谈

    QQ客服:良子

    点击交谈

    QQ客服:闵月

    点击交谈
  • 衢州市柯城区财富中心3号楼2楼

  • 衢州格堂装饰有限公司

  • 扫一扫关注官方微信

    获取一手特惠信息

快速回复 返回顶部 返回列表