[衢州] 云澜府21-3-3#106㎡极简奶油——悠享极简 |
|
悠享极简
格堂装饰为您全程记录装修全过程! 设计说明
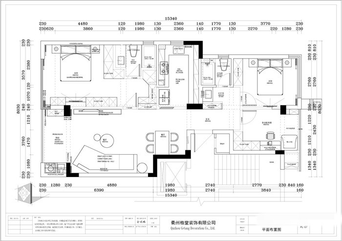
本案在设计上着眼于让户型改后整体空间尺寸利用最大化的原则,充分利用储物空间,并尽量避开风水忌点。风格上定位现代极简,整个地面选用米灰色系的仿大理石瓷砖来凸显极简的高端质感,客厅吊顶采用了无主灯+弧形造型设计,贴近极简需要,同时为了让顶面不单调,添加了黑色磁吸轨道,柜子房门颜色接近墙白色,更显极简质感,悠享极简生活
更多信息
| |
|
|
| |


在线客服
微信客服
关注有礼