• 手机版

    扫码体验手机版

  • 微信公众号

    扫码关注公众号

登录注册
游客您好
第三方账号登陆

姜家山大唐家园二区8-1-23#78㎡现代——寅·夏

[复制链接]
发表于 2022-9-23 12:51:27 | 显示全部楼层 |阅读模式
姜家山大唐家园二区8-1-23#78㎡现代——寅·夏

格堂装饰实景完工案例欣赏!

小区名称
大唐家园
房屋面积
78㎡
户型结构
套房
装修风格
现代
装修方式
半包
装修造价
查看请联系客服万元
设计师
杨工
项目经理
周工
装修公司
格堂装饰
装修过程
装修日记
设计说明
把别人的理想,过成自己的日常。
更多信息
7E1A7854.jpg


回复

使用道具 举报

 楼主| 发表于 2022-9-23 12:52:58 | 显示全部楼层
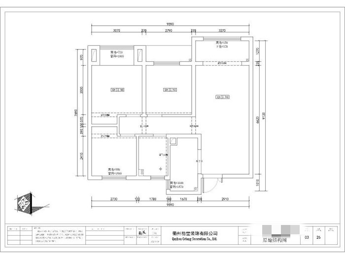
原始构图▼▼▼

142240jlvezj4cuejj7ei5.jpg

平面布置图▼▼▼

142303ad6mon1mze0140zc.jpg




回复 支持 反对

使用道具 举报

 楼主| 发表于 2022-9-23 12:53:16 | 显示全部楼层
客厅▼▼▼



7E1A7833.jpg


7E1A7834.jpg


7E1A7836.jpg


7E1A7847.jpg


7E1A7848.jpg


回复 支持 反对

使用道具 举报

 楼主| 发表于 2022-9-23 12:53:50 | 显示全部楼层
餐厅▼▼▼



7E1A7838.jpg


7E1A7839.jpg


7E1A7841.jpg


7E1A7852.jpg




回复 支持 反对

使用道具 举报

 楼主| 发表于 2022-9-23 12:54:19 | 显示全部楼层
厨房▼▼▼



7E1A7892.jpg



7E1A7893.jpg


回复 支持 反对

使用道具 举报

 楼主| 发表于 2022-9-23 12:55:05 | 显示全部楼层
主卧▼▼▼



7E1A7885.jpg


7E1A7887.jpg




回复 支持 反对

使用道具 举报

 楼主| 发表于 2022-9-23 12:55:28 | 显示全部楼层
衣帽间▼▼▼



7E1A7883.jpg



回复 支持 反对

使用道具 举报

 楼主| 发表于 2022-9-23 12:55:58 | 显示全部楼层
主卫▼▼▼



7E1A7899.jpg


7E1A7900.jpg




回复 支持 反对

使用道具 举报

 楼主| 发表于 2022-9-23 12:57:00 | 显示全部楼层
小景▼▼▼



7E1A7842.jpg


7E1A7850.jpg


7E1A7859.jpg


7E1A7862.jpg


7E1A7876.jpg


7E1A7878.jpg


7E1A7880.jpg




回复 支持 反对

使用道具 举报

您需要登录后才可以回帖 登录 | 立即注册

本版积分规则

全国统一客服电话
0570-8028505

24x7小时免费咨询

  • 官方在线客服

    QQ客服:小西

    点击交谈

    QQ客服:良子

    点击交谈

    QQ客服:闵月

    点击交谈
  • 衢州市柯城区财富中心3号楼2楼

  • 衢州格堂装饰有限公司

  • 扫一扫关注官方微信

    获取一手特惠信息

快速回复 返回顶部 返回列表