• 手机版

    扫码体验手机版

  • 微信公众号

    扫码关注公众号

登录注册
游客您好
第三方账号登陆

[衢州] 姜家山大唐家园二区8-1-23#78㎡现代——寅·夏

[复制链接]
发表于 2022-1-15 14:22:06 | 显示全部楼层 |阅读模式
寅·夏

格堂装饰为您全程记录装修全过程!

小区名称
姜家山大唐家园二区8
房屋面积
78㎡
户型结构
套房
装修风格
现代
装修方式
半包
装修造价
查看请联系客服万元
设计师
杨工
项目经理
周工
装修公司
格堂装饰
完工实景
完工实景
水电全景
水电全景
VR全景
VR全景
设计说明
把别人的理想,过成自己的日常。
更多信息
本帖最后由 格堂飞飞 于 2022-3-25 16:42 编辑

效果图
IMG_4558.JPG

IMG_4559.JPG


回复

使用道具 举报

 楼主| 发表于 2022-1-15 14:22:26 | 显示全部楼层
回复 支持 反对

使用道具 举报

 楼主| 发表于 2022-1-15 14:22:53 | 显示全部楼层

原始结构图
IMG_4556.JPG
回复 支持 反对

使用道具 举报

 楼主| 发表于 2022-1-15 14:23:12 | 显示全部楼层

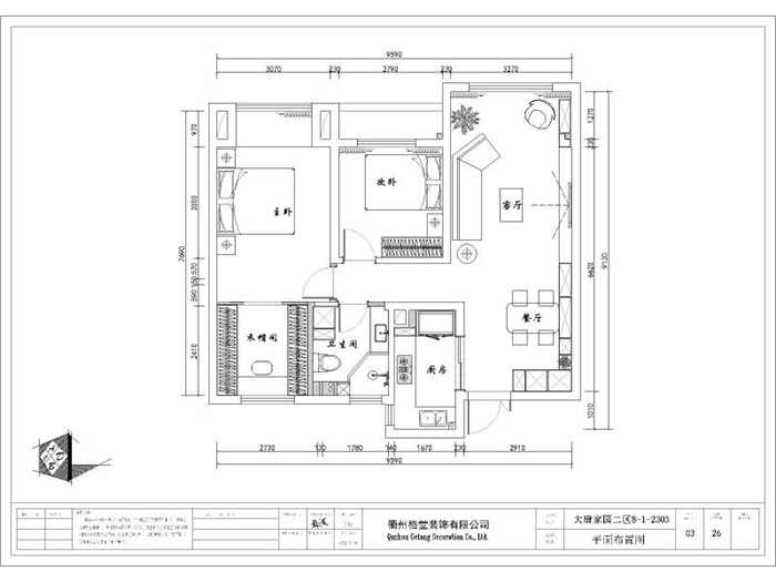
平面布置图
IMG_4557.JPG
回复 支持 反对

使用道具 举报

 楼主| 发表于 2022-1-15 14:24:29 | 显示全部楼层
本帖最后由 格堂飞飞 于 2022-1-15 14:26 编辑

开工前大门先要,保护起来,防止磕碰哦!
IMG_3119.JPG

IMG_3129.JPG
回复 支持 反对

使用道具 举报

 楼主| 发表于 2022-1-15 14:27:40 | 显示全部楼层

电梯间墙面和地面保护到位,防止磕碰哦!
IMG_3121.JPG

IMG_3127.JPG

IMG_3128.JPG

IMG_3124.JPG
回复 支持 反对

使用道具 举报

 楼主| 发表于 2022-1-15 14:28:09 | 显示全部楼层
电梯间
IMG_3125.JPG

IMG_3122.JPG

IMG_3126.JPG

IMG_3123.JPG

回复 支持 反对

使用道具 举报

 楼主| 发表于 2022-1-15 14:29:32 | 显示全部楼层

临时马桶安装好了,方便师傅使用,要讲究卫生哦!
IMG_3114.JPG
回复 支持 反对

使用道具 举报

 楼主| 发表于 2022-1-15 14:30:09 | 显示全部楼层

下水管用格堂专用保护盖保护,防止砂石堵塞管道。

IMG_3115.JPG

IMG_3116.JPG
回复 支持 反对

使用道具 举报

 楼主| 发表于 2022-1-15 14:30:58 | 显示全部楼层

煤气表也要,保护起来,防止磕碰哦!
IMG_3117.JPG
回复 支持 反对

使用道具 举报

您需要登录后才可以回帖 登录 | 立即注册

本版积分规则

全国统一客服电话
0570-8028505

24x7小时免费咨询

  • 官方在线客服

    QQ客服:小西

    点击交谈

    QQ客服:良子

    点击交谈

    QQ客服:闵月

    点击交谈
  • 衢州市柯城区财富中心3号楼2楼

  • 衢州格堂装饰有限公司

  • 扫一扫关注官方微信

    获取一手特惠信息

快速回复 返回顶部 返回列表