• 手机版

    扫码体验手机版

  • 微信公众号

    扫码关注公众号

登录注册
游客您好
第三方账号登陆

常山百悦城20-2-13#102㎡现代——让烟火掩于诗意

[复制链接]
发表于 2022-9-23 12:42:29 | 显示全部楼层 |阅读模式
常山百悦城20-2-13#102㎡现代——让烟火掩于诗意

格堂装饰实景完工案例欣赏!

小区名称
百悦城
房屋面积
102㎡
户型结构
套房
装修风格
现代
装修方式
半包
装修造价
查看请联系客服万元
设计师
江工
项目经理
施工
装修公司
格堂装饰
装修过程
装修日记
设计说明
生活就是一半诗意,一半烟火,
手执烟火以谋生,心怀诗意以谋爱。
曾经一直觉得远方才是诗,
经历了人间烟火,才发现,油盐酱醋茶,亦可成诗
更多信息
7E1A7705.jpg


回复

使用道具 举报

 楼主| 发表于 2022-9-23 12:43:43 | 显示全部楼层
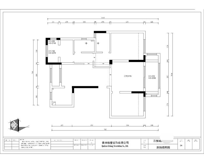
原始构图▼▼▼

151518utbibh5ht5m6oou5.jpg

平面布置图▼▼▼
151539tiu0yj6h74z4jy0j.jpg




回复 支持 反对

使用道具 举报

 楼主| 发表于 2022-9-23 12:44:13 | 显示全部楼层
客厅▼▼▼



7E1A7690.jpg


7E1A7691.jpg


7E1A7692.jpg


7E1A7693.jpg


7E1A7695.jpg

回复 支持 反对

使用道具 举报

 楼主| 发表于 2022-9-23 12:45:18 | 显示全部楼层
餐厅▼▼▼



7E1A7705.jpg


7E1A7704.jpg


7E1A7703.jpg


7E1A7702.jpg


7E1A7701.jpg




回复 支持 反对

使用道具 举报

 楼主| 发表于 2022-9-23 12:46:22 | 显示全部楼层
主卧▼▼▼



7E1A7678.jpg


7E1A7679.jpg


7E1A7680.jpg


7E1A7681.jpg


回复 支持 反对

使用道具 举报

 楼主| 发表于 2022-9-23 12:46:52 | 显示全部楼层
厨房▼▼▼



7E1A7709.jpg


7E1A7710.jpg




回复 支持 反对

使用道具 举报

 楼主| 发表于 2022-9-23 12:47:08 | 显示全部楼层
次卧▼▼▼



7E1A7706.jpg


7E1A7708.jpg




回复 支持 反对

使用道具 举报

 楼主| 发表于 2022-9-23 12:47:28 | 显示全部楼层
主卫▼▼▼



7E1A7684.jpg


7E1A7685.jpg




回复 支持 反对

使用道具 举报

 楼主| 发表于 2022-9-23 12:47:54 | 显示全部楼层
玄关▼▼▼



7E1A7719.jpg


回复 支持 反对

使用道具 举报

 楼主| 发表于 2022-9-23 12:48:14 | 显示全部楼层
阳台▼▼▼



7E1A7696.jpg


7E1A7697.jpg




回复 支持 反对

使用道具 举报

您需要登录后才可以回帖 登录 | 立即注册

本版积分规则

全国统一客服电话
0570-8028505

24x7小时免费咨询

  • 官方在线客服

    QQ客服:小西

    点击交谈

    QQ客服:良子

    点击交谈

    QQ客服:闵月

    点击交谈
  • 衢州市柯城区财富中心3号楼2楼

  • 衢州格堂装饰有限公司

  • 扫一扫关注官方微信

    获取一手特惠信息

快速回复 返回顶部 返回列表