• 手机版

    扫码体验手机版

  • 微信公众号

    扫码关注公众号

登录注册
游客您好
第三方账号登陆

[常山] 常山百悦城20-2-13#102㎡现代——让烟火掩于诗意

[复制链接]
发表于 2021-10-18 15:14:49 | 显示全部楼层 |阅读模式
常山百悦城20-2-13#102㎡现代——让烟火掩于诗意

格堂装饰为您全程记录装修全过程!

小区名称
百悦城
房屋面积
102㎡
户型结构
套房
装修风格
现代
装修方式
半包
装修造价
查看请联系客服万元
设计师
江工
项目经理
施工
装修公司
格堂装饰
完工实景
完工实景
水电全景
水电全景
VR全景
VR全景
设计说明
生活就是一半诗意,一半烟火,
手执烟火以谋生,心怀诗意以谋爱。
曾经一直觉得远方才是诗,
经历了人间烟火,才发现,油盐酱醋茶,亦可成诗
更多信息
本帖最后由 格堂小丽 于 2021-10-31 14:59 编辑

效果图
6351307900895d3daf83f41462dcb5c.png

30c98e1270cca39abbc74e864af4c34.png

a09408a49dbe69342443a5b0e092bf7.png
回复

使用道具 举报

 楼主| 发表于 2021-10-18 15:15:06 | 显示全部楼层
回复 支持 反对

使用道具 举报

 楼主| 发表于 2021-10-18 15:15:28 | 显示全部楼层
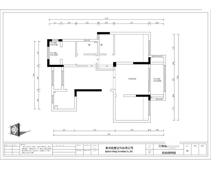
原始结构图
a4f3dc220b7720864d1c17557fd51ae.jpg
回复 支持 反对

使用道具 举报

 楼主| 发表于 2021-10-18 15:15:45 | 显示全部楼层
平面布置图
e03dae32f15e6f5dafedb318be9b4a8.jpg
回复 支持 反对

使用道具 举报

 楼主| 发表于 2021-10-18 15:19:25 | 显示全部楼层
开工仪式准备好!静等吉时! 46381a604f6b25c7914cb8afad40f85.jpg
回复 支持 反对

使用道具 举报

 楼主| 发表于 2021-10-18 15:20:37 | 显示全部楼层
鲜花礼炮也要一起准备好
633843f1f7bc8deac25582a06843b35.jpg

dec647ffa2c402fb69d0e7130323108.jpg
回复 支持 反对

使用道具 举报

 楼主| 发表于 2021-10-18 15:21:04 | 显示全部楼层
门槛做好保护
b9b19956c00fc759ab59ce1ade4a1f0.jpg
回复 支持 反对

使用道具 举报

 楼主| 发表于 2021-10-18 15:21:36 | 显示全部楼层
大门做好保护,防止后期磕碰! f6f97d33f095dbad2048520498e0fd4.jpg

a652eab79cae4eb1d85548d3e811eeb.jpg
回复 支持 反对

使用道具 举报

 楼主| 发表于 2021-10-18 15:23:10 | 显示全部楼层
排水管道用格堂专用保护盖保护,防止后期施工中砂石 堵塞管道
3e2b9471678a3d7937ff70ca267be7f.jpg

3faed012a28d602b7c6cb0b5ff28a3b.jpg

5de3301dcf4f72eedf5ba7d5dc33903.jpg

e62514efa0b717923059aa9493a0ba6.jpg
回复 支持 反对

使用道具 举报

 楼主| 发表于 2021-10-18 15:24:57 | 显示全部楼层
卫生间简易马桶安装到位,防止后期施工中沙石堵塞进入,既美观又干净!
08c53eeb4734573b7d572d6a53580e8.jpg

141340i83133vp3z98zv53.jpg
回复 支持 反对

使用道具 举报

您需要登录后才可以回帖 登录 | 立即注册

本版积分规则

全国统一客服电话
0570-8028505

24x7小时免费咨询

  • 官方在线客服

    QQ客服:小西

    点击交谈

    QQ客服:良子

    点击交谈

    QQ客服:闵月

    点击交谈
  • 衢州市柯城区财富中心3号楼2楼

  • 衢州格堂装饰有限公司

  • 扫一扫关注官方微信

    获取一手特惠信息

快速回复 返回顶部 返回列表