• 手机版

    扫码体验手机版

  • 微信公众号

    扫码关注公众号

登录注册
游客您好
第三方账号登陆

[江山] 西溪名都27#108m2现代---云隐

[复制链接]
发表于 2022-7-26 16:23:03 | 显示全部楼层 |阅读模式
云隐

格堂装饰为您全程记录装修全过程!

小区名称
西溪名都
房屋面积
108㎡
户型结构
套房
装修风格
现代
装修方式
半包
装修造价
查看请联系客服万元
设计师
童工
项目经理
郑工
装修公司
格堂装饰
完工实景
完工实景
水电全景
水电全景
VR全景
VR全景
设计说明
所谓相由心生,空间亦是如此,有“我”自有天地,每个人心里都藏着一座心驰神怡的秘密花园,我所做的就是将其以体验的方式呈现出来。在时间的河流里,物与境相互融合成长,并在荒芜中构建一种生生之气和趣味性
更多信息
回复

使用道具 举报

 楼主| 发表于 2022-7-26 16:23:46 | 显示全部楼层
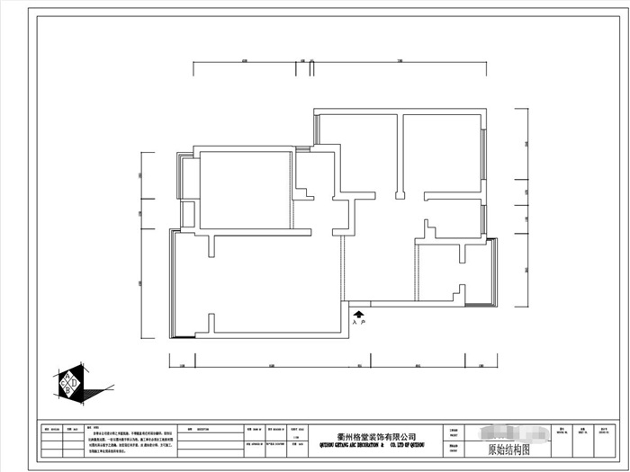
平面布置图

64fb81b8ce5d09098ab09f97350632c.jpg
回复 支持 反对

使用道具 举报

 楼主| 发表于 2022-7-26 16:25:53 | 显示全部楼层
开工前大门先保护到位


59dde781f221160e8b4fa1b2f6b2bed.jpg

1414d1e7098932390735dbb15b542b5.jpg

bfd855ecf8762d78b426bdc29e0da3d.jpg

回复 支持 反对

使用道具 举报

 楼主| 发表于 2022-7-26 16:26:22 | 显示全部楼层
门槛保护到位,防止磕碰


1df83c03b769b3a7a027753be5e3721.jpg
回复 支持 反对

使用道具 举报

 楼主| 发表于 2022-7-26 16:33:16 | 显示全部楼层
卫生间的简易马桶安装到位,防止后期施工中沙石堵塞进入,美观又干净!


90fd3448b00cc5cbc03a5bb318cc8c4.jpg
回复 支持 反对

使用道具 举报

 楼主| 发表于 2022-7-26 16:34:20 | 显示全部楼层
排水管道用格堂装饰专用保护盖保护,防止后期施工砂石堵塞管道


3d395bc29f6db698921ded92ed25caa.jpg

3ff380e0aee7c757b8ca2f4cb6b566a.jpg

ac950398c6ae0e82c445af9c86a20c1.jpg

ca7d653d55bac734ba1f5e1eb2cfc92.jpg

e354eb2120c61ae53c31f3882fe6c35.jpg

回复 支持 反对

使用道具 举报

 楼主| 发表于 2022-7-26 16:35:41 | 显示全部楼层
煤气表已经保护到位。


01223281283abf1dd6ddb7be0585635.jpg
回复 支持 反对

使用道具 举报

 楼主| 发表于 2022-7-26 16:36:40 | 显示全部楼层
礼炮已准备好

b976e343e8e4ab3097c5fce3453568a.jpg

3153b8913fbf7701eea05d42189746d.jpg

回复 支持 反对

使用道具 举报

 楼主| 发表于 2022-7-26 16:39:12 | 显示全部楼层
开工锤已准备好


178529b87f4fa0b7ba6362d897c5e89.jpg
回复 支持 反对

使用道具 举报

 楼主| 发表于 2022-7-26 16:39:40 | 显示全部楼层
送给业主美丽的鲜花


dc626cf9ed0cbb15f904e362166313c.jpg
回复 支持 反对

使用道具 举报

您需要登录后才可以回帖 登录 | 立即注册

本版积分规则

全国统一客服电话
0570-8028505

24x7小时免费咨询

  • 官方在线客服

    QQ客服:小西

    点击交谈

    QQ客服:良子

    点击交谈

    QQ客服:闵月

    点击交谈
  • 衢州市柯城区财富中心3号楼2楼

  • 衢州格堂装饰有限公司

  • 扫一扫关注官方微信

    获取一手特惠信息

快速回复 返回顶部 返回列表