• 手机版

    扫码体验手机版

  • 微信公众号

    扫码关注公众号

登录注册
游客您好
第三方账号登陆

[衢州] 公园世家B区17#2#113㎡现代——愉

[复制链接]
发表于 2022-6-19 10:12:30 | 显示全部楼层 |阅读模式

格堂装饰为您全程记录装修全过程!

小区名称
公园世家B区
房屋面积
113㎡
户型结构
套房
装修风格
现代
装修方式
全包
装修造价
查看请联系客服万元
设计师
王工
项目经理
刘工
装修公司
格堂装饰
完工实景
完工实景
水电全景
水电全景
VR全景
VR全景
设计说明
像呼吸一般自然 在经历4个月的改造之后 会褪去了旧时别扭的外衣
渐渐接近于他理想中舒适的状态 与一家人一起有机共生 恬然共生,不胜欢愉。
更多信息

效果图
IMG_8511.JPG
回复

使用道具 举报

 楼主| 发表于 2022-6-19 10:12:41 | 显示全部楼层
回复 支持 反对

使用道具 举报

 楼主| 发表于 2022-6-19 10:13:56 | 显示全部楼层

原始结构图
IMG_8509.JPG
回复 支持 反对

使用道具 举报

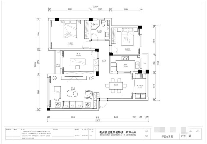
 楼主| 发表于 2022-6-19 10:14:13 | 显示全部楼层

平面布置图
IMG_8510.JPG
回复 支持 反对

使用道具 举报

 楼主| 发表于 2022-6-19 10:15:09 | 显示全部楼层

开工前大门,先要保护起来,防止磕碰哦!
IMG_7220.JPG
回复 支持 反对

使用道具 举报

 楼主| 发表于 2022-6-19 10:16:15 | 显示全部楼层
项目经理正在做,开工前的准备工作哦!
IMG_7221.JPG

IMG_7234.JPG
回复 支持 反对

使用道具 举报

 楼主| 发表于 2022-6-19 10:17:21 | 显示全部楼层

煤气表也要保护来,防止磕碰哦!
IMG_7227.JPG
回复 支持 反对

使用道具 举报

 楼主| 发表于 2022-6-19 10:18:21 | 显示全部楼层

临时马桶安装好了,方便师傅使用,要讲究卫生哦!
IMG_7229.JPG
回复 支持 反对

使用道具 举报

 楼主| 发表于 2022-6-19 10:33:38 | 显示全部楼层

下水管用格堂专用保护盖保护,防止砂石堵塞管道。

IMG_7228.JPG

IMG_7230.JPG
回复 支持 反对

使用道具 举报

 楼主| 发表于 2022-6-19 10:35:25 | 显示全部楼层

一切准备就绪,等待开工吉时喽!
IMG_7222.JPG

IMG_7223.JPG
回复 支持 反对

使用道具 举报

您需要登录后才可以回帖 登录 | 立即注册

本版积分规则

全国统一客服电话
0570-8028505

24x7小时免费咨询

  • 官方在线客服

    QQ客服:小西

    点击交谈

    QQ客服:良子

    点击交谈

    QQ客服:闵月

    点击交谈
  • 衢州市柯城区财富中心3号楼2楼

  • 衢州格堂装饰有限公司

  • 扫一扫关注官方微信

    获取一手特惠信息

快速回复 返回顶部 返回列表