• 手机版

    扫码体验手机版

  • 微信公众号

    扫码关注公众号

登录注册
游客您好
第三方账号登陆

[衢州] 姜家山.振兴家园一区10-1-18#97㎡现代——极简设计,回归纯粹

[复制链接]
发表于 2022-2-16 10:54:15 | 显示全部楼层 |阅读模式
极简设计,回归纯粹

格堂装饰为您全程记录装修全过程!

小区名称
姜家山.振兴家园一区
房屋面积
97㎡
户型结构
套房
装修风格
现代
装修方式
半包
装修造价
查看请联系客服万元
设计师
吴工
项目经理
郑工
装修公司
格堂装饰
完工实景
完工实景
水电全景
水电全景
VR全景
VR全景
设计说明
原有户型其实都已经设计的蛮好的,我们就是在基础上更加优化,每一个空间都有每一个空间的风格,色调,全屋一简洁清爽为主,为业主打造一个完美的家庭
更多信息

效果图
IMG_6888.JPG

IMG_6889.JPG
回复

使用道具 举报

 楼主| 发表于 2022-2-16 10:54:40 | 显示全部楼层
回复 支持 反对

使用道具 举报

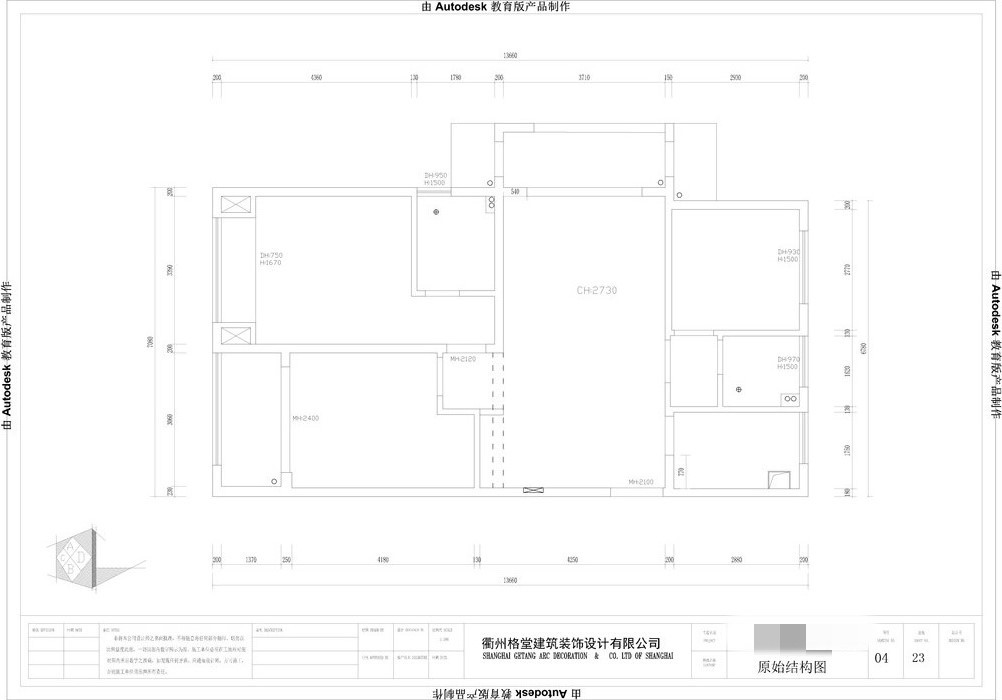
 楼主| 发表于 2022-2-16 10:55:06 | 显示全部楼层

原始结构图
IMG_6891.JPG
回复 支持 反对

使用道具 举报

 楼主| 发表于 2022-2-16 10:55:23 | 显示全部楼层

平面布置图
IMG_6890.JPG
回复 支持 反对

使用道具 举报

 楼主| 发表于 2022-2-16 11:03:06 | 显示全部楼层
本帖最后由 格堂飞飞 于 2022-2-16 11:05 编辑

开工前大门先要,保护起来,防止磕碰哦!
IMG_6893.JPG

IMG_6892.JPG

IMG_6908.JPG

回复 支持 反对

使用道具 举报

 楼主| 发表于 2022-2-16 11:05:45 | 显示全部楼层

门槛也保护到位,防止磕碰哦!
IMG_6902.JPG

IMG_6905.JPG

IMG_6907.JPG
回复 支持 反对

使用道具 举报

 楼主| 发表于 2022-2-16 11:06:43 | 显示全部楼层

电梯间墙面和地面,保护到位,防止磕碰哦!
IMG_6896.JPG

IMG_6897.JPG

IMG_6899.JPG

IMG_6900.JPG

IMG_6901.JPG
回复 支持 反对

使用道具 举报

 楼主| 发表于 2022-2-16 11:13:06 | 显示全部楼层

电梯间
IMG_6898.JPG

IMG_6903.JPG
回复 支持 反对

使用道具 举报

 楼主| 发表于 2022-2-16 11:16:10 | 显示全部楼层

临时马桶安装好了,方便师傅使用,要讲究卫生哦!
IMG_6909.JPG
回复 支持 反对

使用道具 举报

 楼主| 发表于 2022-2-16 11:17:13 | 显示全部楼层

煤气表也要保护起来,防止磕碰哦!
IMG_6894.JPG
回复 支持 反对

使用道具 举报

您需要登录后才可以回帖 登录 | 立即注册

本版积分规则

全国统一客服电话
0570-8028505

24x7小时免费咨询

  • 官方在线客服

    QQ客服:小西

    点击交谈

    QQ客服:良子

    点击交谈

    QQ客服:闵月

    点击交谈
  • 衢州市柯城区财富中心3号楼2楼

  • 衢州格堂装饰有限公司

  • 扫一扫关注官方微信

    获取一手特惠信息

快速回复 返回顶部 返回列表