• 手机版

    扫码体验手机版

  • 微信公众号

    扫码关注公众号

登录注册
游客您好
第三方账号登陆

云栖新语9-1-1#124㎡现代——浪漫生活/遇见心语

[复制链接]
发表于 2022-1-2 15:21:01 | 显示全部楼层 |阅读模式
云栖新语9-1-1#124㎡现代——浪漫生活/遇见心语

格堂装饰实景完工案例欣赏!

小区名称
云栖新语
房屋面积
124㎡
户型结构
套房
装修风格
现代
装修方式
半包
装修造价
查看请联系客服万元
设计师
曹工
项目经理
周工
装修公司
格堂装饰
装修过程
装修日记
设计说明
浪漫生活/遇见心语
设计理念:
可能是一种缘分,
也可能是上天注定,
现代与浪漫的结合就是那么的凑巧。
当阳光洒在花园,景色折射于屋内,温暖穿透每一个角落时。这就是自然与幸福的浪漫生活。
用心感受,用心享受,用心遇见对的人。
更多信息
7E1A1760.jpg


回复

使用道具 举报

 楼主| 发表于 2022-1-2 15:27:27 | 显示全部楼层
本帖最后由 格堂方俊 于 2022-4-7 14:21 编辑


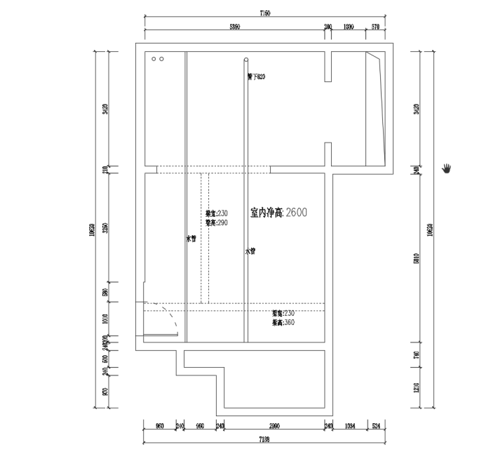
原始构图▼▼▼

150511r00efw0f13eedefb.png

150515csn9wnlgw76u0cwu.png

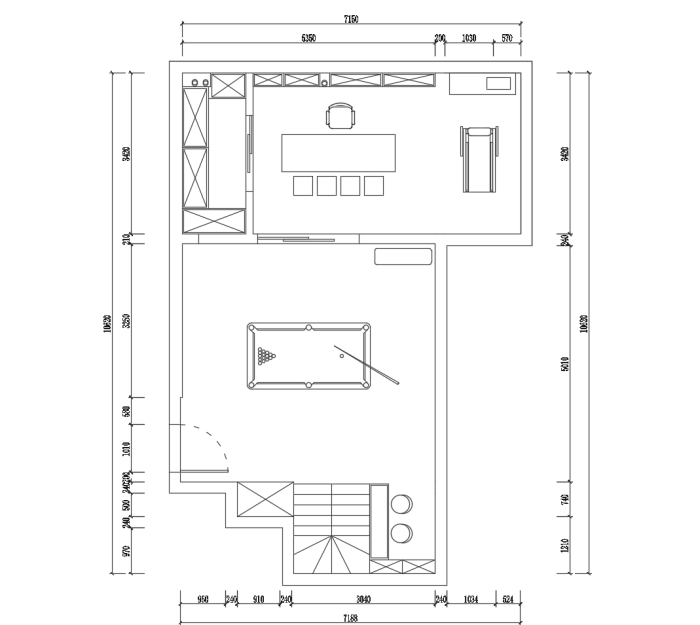
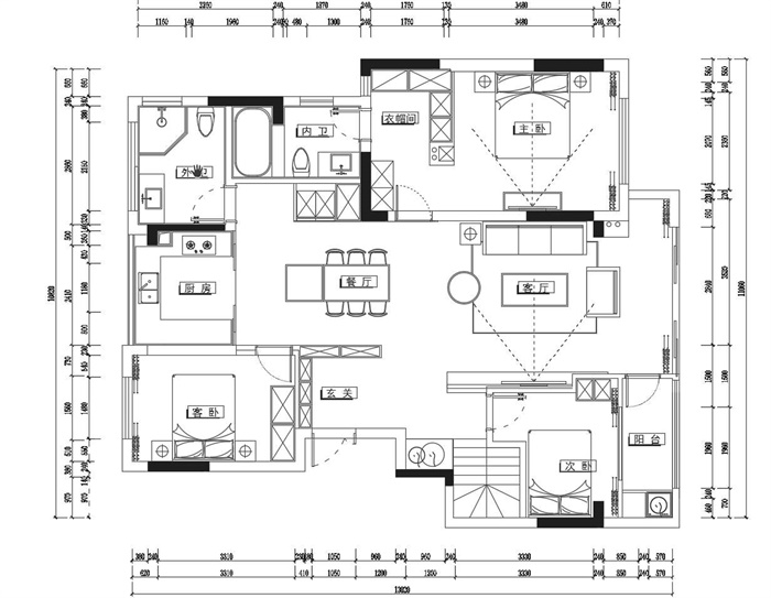
平面布置图▼▼▼

150612uff8188evn9tvip9.png

150613qdx1k8u3s08sdud5.jpg



回复 支持 反对

使用道具 举报

 楼主| 发表于 2022-4-7 14:25:14 | 显示全部楼层
客厅▼▼▼



7E1A1751.jpg


7E1A1752.jpg


7E1A1753.jpg


7E1A1754.jpg


7E1A1756.jpg


7E1A1757.jpg


7E1A1758.jpg




回复 支持 反对

使用道具 举报

 楼主| 发表于 2022-4-7 14:25:47 | 显示全部楼层
餐厅▼▼▼



7E1A1760.jpg


7E1A1761.jpg


7E1A1762.jpg


7E1A1777.jpg


7E1A1787.jpg




回复 支持 反对

使用道具 举报

 楼主| 发表于 2022-4-7 14:26:05 | 显示全部楼层
厨房▼▼▼



7E1A1763.jpg


7E1A1764.jpg


7E1A1765.jpg




回复 支持 反对

使用道具 举报

 楼主| 发表于 2022-4-7 14:26:45 | 显示全部楼层
玄关▼▼▼



7E1A1781.jpg


回复 支持 反对

使用道具 举报

 楼主| 发表于 2022-4-7 14:27:12 | 显示全部楼层
主卧▼▼▼



7E1A1789.jpg


7E1A1790.jpg


7E1A1791.jpg


7E1A1792.jpg




回复 支持 反对

使用道具 举报

 楼主| 发表于 2022-4-7 14:27:44 | 显示全部楼层
主卫▼▼▼



7E1A1796.jpg


7E1A1798.jpg




回复 支持 反对

使用道具 举报

 楼主| 发表于 2022-4-7 14:28:16 | 显示全部楼层
楼道▼▼▼



7E1A1782.jpg


7E1A1783.jpg


7E1A1807.jpg




回复 支持 反对

使用道具 举报

 楼主| 发表于 2022-4-7 14:28:51 | 显示全部楼层
水吧台▼▼▼



7E1A1805.jpg


7E1A1806.jpg




回复 支持 反对

使用道具 举报

您需要登录后才可以回帖 登录 | 立即注册

本版积分规则

全国统一客服电话
0570-8028505

24x7小时免费咨询

  • 官方在线客服

    QQ客服:小西

    点击交谈

    QQ客服:良子

    点击交谈

    QQ客服:闵月

    点击交谈
  • 衢州市柯城区财富中心3号楼2楼

  • 衢州格堂装饰有限公司

  • 扫一扫关注官方微信

    获取一手特惠信息

快速回复 返回顶部 返回列表