• 手机版

    扫码体验手机版

  • 微信公众号

    扫码关注公众号

登录注册
游客您好
第三方账号登陆

[衢州] 云栖新语9-1-1#124㎡现代——浪漫生活/遇见心语

[复制链接]
发表于 2020-7-28 15:02:15 | 显示全部楼层 |阅读模式
浪漫生活/遇见心语

格堂装饰为您全程记录装修全过程!

小区名称
云栖新语
房屋面积
124㎡
户型结构
套房
装修风格
现代
装修方式
半包
装修造价
查看请联系客服万元
设计师
曹工
项目经理
周工
装修公司
格堂装饰
完工实景
完工实景
水电全景
水电全景
VR全景
VR全景
设计说明
浪漫生活/遇见心语
设计理念:
可能是一种缘分,
也可能是上天注定,
现代与浪漫的结合就是那么的凑巧。
当阳光洒在花园,景色折射于屋内,温暖穿透每一个角落时。这就是自然与幸福的浪漫生活。
用心感受,用心享受,用心遇见对的人。
更多信息
本帖最后由 格堂月红 于 2020-7-28 15:13 编辑

效果图
5083f237d02b37789e8e0f297a7e4c9.jpg

cb4c62b1a98b27ac52583def2b87dc7.jpg
回复

使用道具 举报

 楼主| 发表于 2020-7-28 15:05:54 | 显示全部楼层

一楼原始结构图
b180536f9288f24cf82738b064a30dc.png
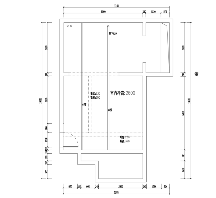
负一楼原始结构图
3382e63975a395d6f01f6a3f536f14e.png
回复 支持 反对

使用道具 举报

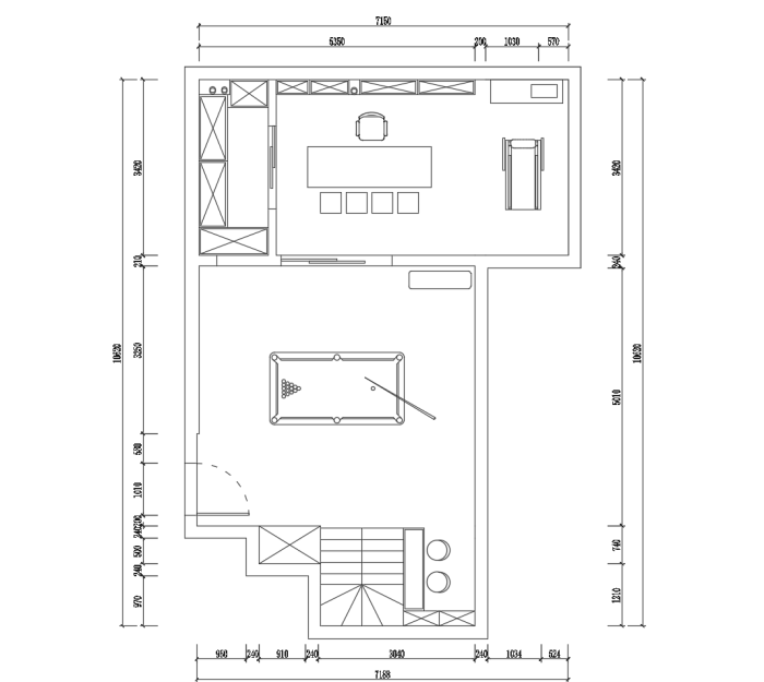
 楼主| 发表于 2020-7-28 15:07:54 | 显示全部楼层

一楼平面布置图
838cc6940ac2ab8d611929abec04b7f.jpg
负一楼平面布置图
5c96d2a439771a8a94c10bd52b50b37.png
回复 支持 反对

使用道具 举报

 楼主| 发表于 2020-7-28 15:09:21 | 显示全部楼层

开工前电梯口墙面和地面已经保护到位。
IMG_20200430_085759.jpg

IMG_20200430_085801.jpg

IMG_20200430_085804.jpg

IMG_20200430_085806.jpg

IMG_20200430_085809.jpg
回复 支持 反对

使用道具 举报

 楼主| 发表于 2020-7-28 15:12:58 | 显示全部楼层

大门口对角
IMG_20200430_085816.jpg

IMG_20200430_085818.jpg

IMG_20200430_085821.jpg

IMG_20200430_085822.jpg

IMG_20200430_085824.jpg
回复 支持 反对

使用道具 举报

 楼主| 发表于 2020-7-28 15:17:54 | 显示全部楼层

大门已经保护好了。
IMG_20200430_085830.jpg

IMG_20200430_085836.jpg
回复 支持 反对

使用道具 举报

 楼主| 发表于 2020-7-28 15:18:56 | 显示全部楼层

门槛已经保护好了
IMG_20200430_085842.jpg
回复 支持 反对

使用道具 举报

 楼主| 发表于 2020-7-28 15:20:32 | 显示全部楼层

临时马桶:每一个施工现场都会配备临时小便斗,并且时刻保持干净卫生、保证工地环境干净、整洁。
IMG_20200430_085853.jpg
回复 支持 反对

使用道具 举报

 楼主| 发表于 2020-7-28 15:21:41 | 显示全部楼层

下水管用格堂专用保护盖保护,防止砂石堵塞管道。
IMG_20200430_085901.jpg
回复 支持 反对

使用道具 举报

 楼主| 发表于 2020-7-28 15:22:34 | 显示全部楼层

开工桌已经准备好了
IMG_20200430_090347.jpg
回复 支持 反对

使用道具 举报

您需要登录后才可以回帖 登录 | 立即注册

本版积分规则

全国统一客服电话
0570-8028505

24x7小时免费咨询

  • 官方在线客服

    QQ客服:小西

    点击交谈

    QQ客服:良子

    点击交谈

    QQ客服:闵月

    点击交谈
  • 衢州市柯城区财富中心3号楼2楼

  • 衢州格堂装饰有限公司

  • 扫一扫关注官方微信

    获取一手特惠信息

快速回复 返回顶部 返回列表