• 手机版

    扫码体验手机版

  • 微信公众号

    扫码关注公众号

登录注册
游客您好
第三方账号登陆

云栖新语3-3-3#103.8㎡现代——来自时空的对话

[复制链接]
发表于 2022-1-2 14:51:14 | 显示全部楼层 |阅读模式
云栖新语3-3-3#103.8㎡现代——来自时空的对话

格堂装饰实景完工案例欣赏!

小区名称
云栖新语
房屋面积
103.8㎡
户型结构
套房
装修风格
现代
装修方式
半包
装修造价
查看请联系客服万元
设计师
胡工
项目经理
刘工
装修公司
格堂装饰
装修过程
装修日记
设计说明
门外是人间烟火,门里是闲情雅致。用简约的设计手法将纯、雅古代美学的独特风貌融入都市的生活,两个时代的重叠开启一场关于时空的对话。
更多信息
7E1A1863.jpg


回复

使用道具 举报

 楼主| 发表于 2022-1-2 14:55:23 | 显示全部楼层

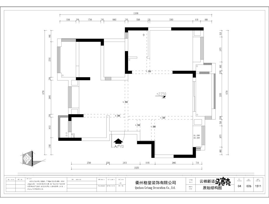
原始构图▼▼▼

105107abttx6p27rzp77p3.jpg

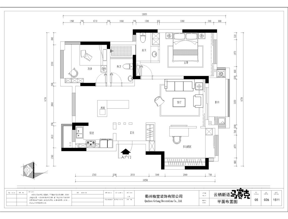
平面布置图▼▼▼

105131j60yppcdye65y3pe.jpg

玄关▼▼▼

7E1A1855.jpg

7E1A1858.jpg

7E1A1859.jpg

7E1A1860.jpg

7E1A1862.jpg

客厅▼▼▼

7E1A1837.jpg

7E1A1839.jpg

7E1A1840.jpg

7E1A1841.jpg

7E1A1842.jpg

餐厅▼▼▼

7E1A1844.jpg

7E1A1845.jpg

7E1A1849.jpg

7E1A1853.jpg

厨房▼▼▼

7E1A1870.jpg

7E1A1871.jpg

衣帽间▼▼▼

7E1A1809.jpg

7E1A1810.jpg

7E1A1813.jpg

主卧▼▼▼

7E1A1823.jpg

7E1A1825.jpg

7E1A1826.jpg

7E1A1818.jpg

次卧▼▼▼

7E1A1830.jpg

7E1A1831.jpg

7E1A1833.jpg

主卫▼▼▼

7E1A1867.jpg

次卫▼▼▼

7E1A1866.jpg

7E1A1865.jpg

小景▼▼▼

7E1A1883.jpg

7E1A1879.jpg

7E1A1887.jpg

7E1A1893.jpg

7E1A1875.jpg




回复 支持 反对

使用道具 举报

您需要登录后才可以回帖 登录 | 立即注册

本版积分规则

全国统一客服电话
0570-8028505

24x7小时免费咨询

  • 官方在线客服

    QQ客服:小西

    点击交谈

    QQ客服:良子

    点击交谈

    QQ客服:闵月

    点击交谈
  • 衢州市柯城区财富中心3号楼2楼

  • 衢州格堂装饰有限公司

  • 扫一扫关注官方微信

    获取一手特惠信息

快速回复 返回顶部 返回列表