• 手机版

    扫码体验手机版

  • 微信公众号

    扫码关注公众号

登录注册
游客您好
第三方账号登陆

[衢州] 云栖新语3-3-3#103.8㎡现代——来自时空的对话

[复制链接]
发表于 2021-2-23 10:51:19 | 显示全部楼层 |阅读模式
来自时空的对话

格堂装饰为您全程记录装修全过程!

小区名称
云栖新语
房屋面积
103.8㎡
户型结构
套房
装修风格
现代
装修方式
半包
装修造价
查看请联系客服万元
设计师
胡工
项目经理
刘工
装修公司
格堂装饰
完工实景
完工实景
水电全景
水电全景
VR全景
VR全景
设计说明
门外是人间烟火,门里是闲情雅致。用简约的设计手法将纯、雅古代美学的独特风貌融入都市的生活,两个时代的重叠开启一场关于时空的对话。
更多信息

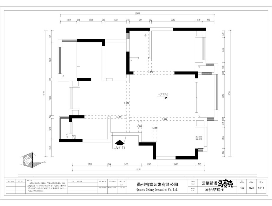
原始结构图
mmexport1614044053945.jpg
回复

使用道具 举报

 楼主| 发表于 2021-2-23 10:51:45 | 显示全部楼层

平面布置图
mmexport1614044059041.jpg
回复 支持 反对

使用道具 举报

 楼主| 发表于 2021-2-23 10:52:49 | 显示全部楼层

开工前电梯口墙面和地面已经保护到位。
IMG_20210126_083838.jpg

IMG_20210126_083840.jpg

IMG_20210126_083843.jpg

IMG_20210126_083844.jpg

IMG_20210126_083846.jpg
回复 支持 反对

使用道具 举报

 楼主| 发表于 2021-2-23 10:53:21 | 显示全部楼层

电梯口对角
IMG_20210126_083852.jpg

IMG_20210126_083854.jpg

IMG_20210126_083857.jpg

IMG_20210126_083859.jpg

IMG_20210126_083901.jpg
回复 支持 反对

使用道具 举报

 楼主| 发表于 2021-2-23 10:53:47 | 显示全部楼层

门槛已经保护到位
IMG_20210126_083907.jpg
回复 支持 反对

使用道具 举报

 楼主| 发表于 2021-2-23 10:54:26 | 显示全部楼层

大门已经套好了门套
IMG_20210126_083911.jpg
回复 支持 反对

使用道具 举报

 楼主| 发表于 2021-2-23 10:57:39 | 显示全部楼层

下水管用格堂专用保护盖保护,防止砂石堵塞管道。
IMG_20210126_083920.jpg

IMG_20210126_083934.jpg
回复 支持 反对

使用道具 举报

 楼主| 发表于 2021-2-23 10:58:22 | 显示全部楼层

临时马桶:每一个施工现场都会配备临时小便斗,并且时刻保持干净卫生、保证工地环境干净、整洁。
IMG_20210126_083937.jpg
回复 支持 反对

使用道具 举报

 楼主| 发表于 2021-2-23 10:58:56 | 显示全部楼层

开工锤已经准备好了。
IMG_20210126_085616.jpg
回复 支持 反对

使用道具 举报

 楼主| 发表于 2021-2-23 10:59:15 | 显示全部楼层

礼炮准备到位
IMG_20210126_083745.jpg
回复 支持 反对

使用道具 举报

您需要登录后才可以回帖 登录 | 立即注册

本版积分规则

全国统一客服电话
0570-8028505

24x7小时免费咨询

  • 官方在线客服

    QQ客服:小西

    点击交谈

    QQ客服:良子

    点击交谈

    QQ客服:闵月

    点击交谈
  • 衢州市柯城区财富中心3号楼2楼

  • 衢州格堂装饰有限公司

  • 扫一扫关注官方微信

    获取一手特惠信息

快速回复 返回顶部 返回列表