• 手机版

    扫码体验手机版

  • 微信公众号

    扫码关注公众号

登录注册
游客您好
第三方账号登陆

牡丹园17-100#155㎡现代/美式混搭 —简.亮

[复制链接]
发表于 2022-1-2 14:11:02 | 显示全部楼层 |阅读模式
牡丹园17-100#155㎡现代/美式混搭 —简.亮

格堂装饰实景完工案例欣赏!

小区名称
牡丹园
房屋面积
155㎡
户型结构
套房
装修风格
美式
装修方式
半包
装修造价
查看请联系客服万元
设计师
余工
项目经理
刘工
装修公司
格堂装饰
装修过程
装修日记
设计说明
本案业主是个紧跟时尚潮流的90后,
希望生活的空间温暖又不失调性,
独特且有魅力。设计师运用爵士白大理石、
不锈钢压条为基调一笔一划地描绘着理想中家的模样。
带着点点透亮、时尚的元素色彩充满活力,
也能擦除自由热烈的火花,
透露着时尚的温馨感。
更多信息
7E1A1155.jpg


回复

使用道具 举报

 楼主| 发表于 2022-1-2 14:14:59 | 显示全部楼层

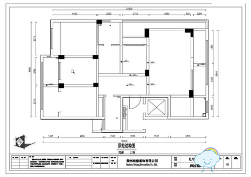
原始构图▼▼▼

141537md868hvdnfbrb1bv.jpg

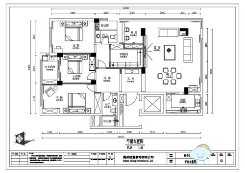
平面布置图▼▼▼

141537bvc0tfhtcn877oyo.jpg

客厅▼▼▼

7E1A1153.jpg

7E1A1155.jpg

7E1A1158.jpg

7E1A1160.jpg

玄关▼▼▼

7E1A1146.jpg

7E1A1148.jpg

7E1A1150.jpg

餐厅▼▼▼

7E1A1161.jpg

7E1A1162.jpg

7E1A1163.jpg

厨房▼▼▼

7E1A1167.jpg

7E1A1183.jpg

主卧▼▼▼

7E1A1126.jpg

7E1A1124.jpg

7E1A1131.jpg

7E1A1133.jpg

衣帽间▼▼▼

7E1A1129.jpg

7E1A1130.jpg

次卧▼▼▼

7E1A1138.jpg

7E1A1139.jpg

7E1A1141.jpg

卫生间▼▼▼

7E1A1147.jpg

小景▼▼▼

7E1A1170.jpg

7E1A1172.jpg

7E1A1175.jpg






回复 支持 反对

使用道具 举报

您需要登录后才可以回帖 登录 | 立即注册

本版积分规则

全国统一客服电话
0570-8028505

24x7小时免费咨询

  • 官方在线客服

    QQ客服:小西

    点击交谈

    QQ客服:良子

    点击交谈

    QQ客服:闵月

    点击交谈
  • 衢州市柯城区财富中心3号楼2楼

  • 衢州格堂装饰有限公司

  • 扫一扫关注官方微信

    获取一手特惠信息

快速回复 返回顶部 返回列表