• 手机版

    扫码体验手机版

  • 微信公众号

    扫码关注公众号

登录注册
游客您好
第三方账号登陆

[衢州] 牡丹园17-100#155㎡现代/美式混搭 —简.亮

[复制链接]
发表于 2020-11-21 14:05:47 | 显示全部楼层 |阅读模式
简.亮

格堂装饰为您全程记录装修全过程!

小区名称
牡丹园
房屋面积
155㎡
户型结构
套房
装修风格
现代
装修方式
半包
装修造价
查看请联系客服万元
设计师
余工
项目经理
刘工
装修公司
格堂装饰
完工实景
完工实景
水电全景
水电全景
VR全景
VR全景
设计说明
本案业主是个紧跟时尚潮流的90后,
希望生活的空间温暖又不失调性,
独特且有魅力。设计师运用爵士白大理石、
不锈钢压条为基调一笔一划地描绘着理想中家的模样。
带着点点透亮、时尚的元素色彩充满活力,
也能擦除自由热烈的火花,
透露着时尚的温馨感。
更多信息

回复

使用道具 举报

 楼主| 发表于 2020-11-21 14:15:30 | 显示全部楼层
效果图


微信图片_20201121140236.jpg


微信图片_20201121140236.png
回复 支持 反对

使用道具 举报

 楼主| 发表于 2020-11-21 14:15:49 | 显示全部楼层
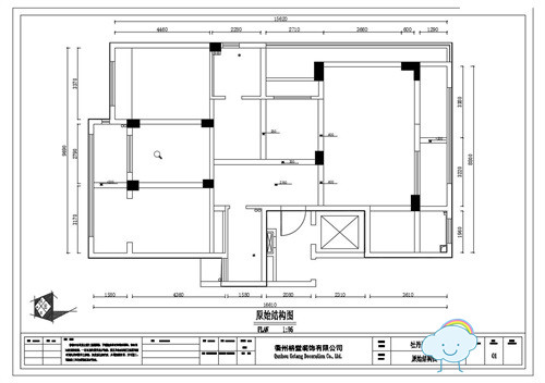
原始结构图


微信图片_202011211402363.jpg


平面布置图


微信图片_202011211402361.jpg
回复 支持 反对

使用道具 举报

 楼主| 发表于 2020-11-21 14:17:18 | 显示全部楼层
开工之前做好保护工作


IMG_20201117_140032.jpg

IMG_20201117_140059.jpg


IMG_20201117_140056.jpg


IMG_20201117_140103.jpg


IMG_20201117_140119.jpg
回复 支持 反对

使用道具 举报

 楼主| 发表于 2020-11-21 14:18:26 | 显示全部楼层
现场和业主进行拆改交接


IMG_20201117_140234.jpg


IMG_20201117_140249.jpg
回复 支持 反对

使用道具 举报

 楼主| 发表于 2020-11-21 14:19:31 | 显示全部楼层
开工大吉

IMG_20201117_142231.jpg


装修开工第一锤应该由业主敲在要拆除的墙体的墙角(即拐角)上,象征一锤定音的意思,也是新房动土的一种表示方式。


IMG_20201117_141840.jpg
回复 支持 反对

使用道具 举报

 楼主| 发表于 2020-11-21 14:20:15 | 显示全部楼层

墙体拆改

微信图片_202011211402362.jpg

微信图片_202011211402364.jpg


微信图片_202011211402365.jpg


微信图片_202011211402367.jpg



微信图片_202011211402366.jpg
回复 支持 反对

使用道具 举报

 楼主| 发表于 2020-11-21 14:20:43 | 显示全部楼层
拆改

微信图片_202011211402369.jpg

微信图片_202011211402368.jpg


微信图片_2020112114023610.jpg


微信图片_2020112114023612.jpg


微信图片_2020112114023611.jpg
回复 支持 反对

使用道具 举报

 楼主| 发表于 2020-11-21 14:21:01 | 显示全部楼层
顶部铲灰

微信图片_2020112114023613.jpg
回复 支持 反对

使用道具 举报

 楼主| 发表于 2020-11-28 10:26:37 | 显示全部楼层
墙顶面铲灰,是为了防止墙体出现空鼓,在做好油漆后,不会有墙体整块油漆脱落的现象。













回复 支持 反对

使用道具 举报

您需要登录后才可以回帖 登录 | 立即注册

本版积分规则

全国统一客服电话
0570-8028505

24x7小时免费咨询

  • 官方在线客服

    QQ客服:小西

    点击交谈

    QQ客服:良子

    点击交谈

    QQ客服:闵月

    点击交谈
  • 衢州市柯城区财富中心3号楼2楼

  • 衢州格堂装饰有限公司

  • 扫一扫关注官方微信

    获取一手特惠信息

快速回复 返回顶部 返回列表