• 手机版

    扫码体验手机版

  • 微信公众号

    扫码关注公众号

登录注册
游客您好
第三方账号登陆

观棠府36-1-16#119㎡现代 ——现代设计说明

[复制链接]
发表于 2022-1-2 11:04:30 | 显示全部楼层 |阅读模式
观棠府36-1-16#119㎡现代 ——现代设计说明

格堂装饰实景完工案例欣赏!

小区名称
观棠府
房屋面积
119㎡
户型结构
套房
装修风格
现代
装修方式
全包
装修造价
查看请联系客服万元
设计师
王工
项目经理
胡工
装修公司
格堂装饰
装修过程
装修日记
设计说明
这个环境包括自然环境和人文环境,人会不知不觉的影响或作用于该空间和环境。因此,家居空间设计需要以人为本,满足业主的生活使用需求。
更多信息
7E1A1602.jpg


回复

使用道具 举报

 楼主| 发表于 2022-1-2 11:20:09 | 显示全部楼层

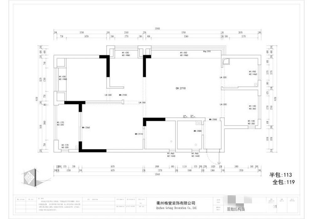
原始构图▼▼▼

084131cq4nsjoy1pslxlrl.jpg

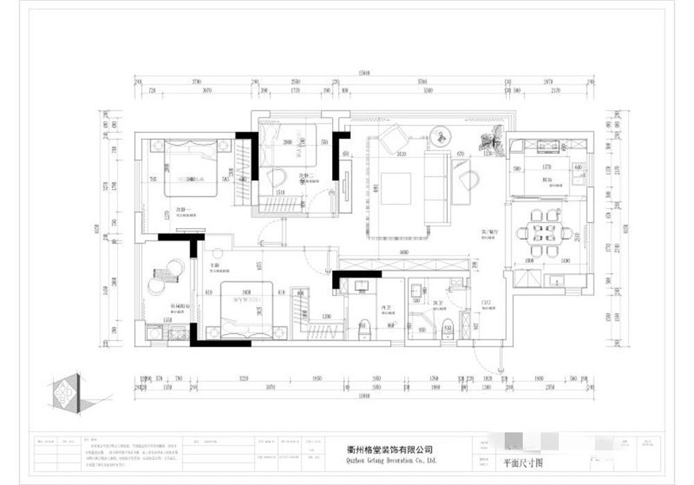
平面布置图▼▼▼

084148mdno9foqfdebd2de.jpg

客厅▼▼▼

7E1A1593.jpg

7E1A1594.jpg

7E1A1599.jpg

7E1A1601.jpg

7E1A1602.jpg

7E1A1603.jpg

7E1A1604.jpg

7E1A1605.jpg

餐厅▼▼▼

7E1A1606.jpg

7E1A1607.jpg

7E1A1608.jpg

7E1A1611.jpg

厨房▼▼▼

7E1A1620.jpg

7E1A1621.jpg

玄关▼▼▼

7E1A1614.jpg

7E1A1613.jpg

主卧▼▼▼

7E1A1622.jpg

7E1A1623.jpg

7E1A1624.jpg

7E1A1625.jpg

次卧▼▼▼

7E1A1657.jpg

7E1A1658.jpg

卫生间▼▼▼‘
7E1A1627.jpg

小景▼▼▼

7E1A1634.jpg

7E1A1640.jpg

7E1A1643.jpg




回复 支持 反对

使用道具 举报

您需要登录后才可以回帖 登录 | 立即注册

本版积分规则

全国统一客服电话
0570-8028505

24x7小时免费咨询

  • 官方在线客服

    QQ客服:小西

    点击交谈

    QQ客服:良子

    点击交谈

    QQ客服:闵月

    点击交谈
  • 衢州市柯城区财富中心3号楼2楼

  • 衢州格堂装饰有限公司

  • 扫一扫关注官方微信

    获取一手特惠信息

快速回复 返回顶部 返回列表