• 手机版

    扫码体验手机版

  • 微信公众号

    扫码关注公众号

登录注册
游客您好
第三方账号登陆

[衢州] 观棠府36-1-16#119㎡现代 ——现代设计说明

[复制链接]
发表于 2021-5-5 08:41:22 | 显示全部楼层 |阅读模式
现代设计说明

格堂装饰为您全程记录装修全过程!

小区名称
观棠府
房屋面积
119㎡
户型结构
套房
装修风格
现代
装修方式
全包
装修造价
查看请联系客服万元
设计师
王工
项目经理
胡工
装修公司
格堂装饰
完工实景
完工实景
水电全景
水电全景
VR全景
VR全景
设计说明
这个环境包括自然环境和人文环境,人会不知不觉的影响或作用于该空间和环境。因此,家居空间设计需要以人为本,满足业主的生活使用需求。
更多信息

效果图
IMG_5598.JPG

IMG_5599.JPG
回复

使用道具 举报

 楼主| 发表于 2021-5-5 08:41:41 | 显示全部楼层

原始结构图
IMG_5596.JPG
回复 支持 反对

使用道具 举报

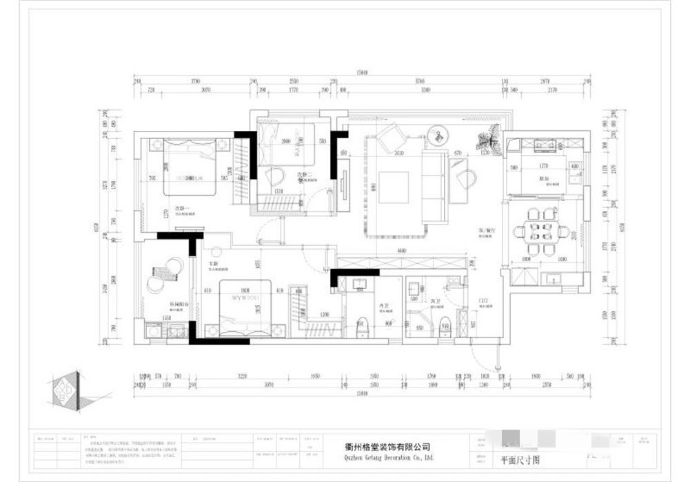
 楼主| 发表于 2021-5-5 08:41:58 | 显示全部楼层

平面布置图
IMG_5597.JPG
回复 支持 反对

使用道具 举报

 楼主| 发表于 2021-5-5 09:11:15 | 显示全部楼层

项目经理正在,做开工前的准备工作哦!
IMG_4075.JPG

IMG_4077.JPG
回复 支持 反对

使用道具 举报

 楼主| 发表于 2021-5-5 09:13:46 | 显示全部楼层

开工前大门先要保护起来,防止磕碰哦!
IMG_4079.JPG

IMG_4100.JPG

IMG_4099.JPG
回复 支持 反对

使用道具 举报

 楼主| 发表于 2021-5-5 09:14:44 | 显示全部楼层

电梯间墙面和地面保护到位,防止磕碰哦!
IMG_4080.JPG

IMG_4081.JPG

IMG_4083.JPG

IMG_4084.JPG

IMG_4090.JPG
回复 支持 反对

使用道具 举报

 楼主| 发表于 2021-5-5 09:15:22 | 显示全部楼层

电梯间
IMG_4082.JPG

IMG_4085.JPG
回复 支持 反对

使用道具 举报

 楼主| 发表于 2021-5-5 09:16:25 | 显示全部楼层

电梯间墙面和地面保护到位,防止磕碰!
IMG_4095.JPG

IMG_4096.JPG

IMG_4093.JPG

IMG_4094.JPG

IMG_4097.JPG
回复 支持 反对

使用道具 举报

 楼主| 发表于 2021-5-5 09:18:10 | 显示全部楼层

项目经理正在下水管道保护,防止磕碰。
IMG_4103.JPG
水管用格堂专用保护盖保护,防止砂石堵塞管道。 IMG_4104.JPG


IMG_4105.JPG

IMG_4108.JPG
回复 支持 反对

使用道具 举报

 楼主| 发表于 2021-5-5 09:19:01 | 显示全部楼层

临时马桶安装到位,方便师傅使用,要讲究卫生!
IMG_4109.JPG
回复 支持 反对

使用道具 举报

您需要登录后才可以回帖 登录 | 立即注册

本版积分规则

全国统一客服电话
0570-8028505

24x7小时免费咨询

  • 官方在线客服

    QQ客服:小西

    点击交谈

    QQ客服:良子

    点击交谈

    QQ客服:闵月

    点击交谈
  • 衢州市柯城区财富中心3号楼2楼

  • 衢州格堂装饰有限公司

  • 扫一扫关注官方微信

    获取一手特惠信息

快速回复 返回顶部 返回列表