• 手机版

    扫码体验手机版

  • 微信公众号

    扫码关注公众号

登录注册
游客您好
第三方账号登陆

德信·君宸7-1-40-#110㎡ 美式轻奢—-乐章

[复制链接]
发表于 2021-10-26 09:42:57 | 显示全部楼层 |阅读模式
德信·君宸7-1-40-#110㎡ 美式轻奢—-乐章

格堂装饰实景完工案例欣赏!

小区名称
德信君宸
房屋面积
110㎡
户型结构
套房
装修风格
美式轻奢
装修方式
全包
装修造价
查看请联系客服万元
设计师
吴工
项目经理
周工
装修公司
格堂装饰
装修过程
装修日记
设计说明
简化的石膏线造型搭配金属线条家具,
加深了空间的视觉层次感的同时又显大气利落。
电视墙冷峻匀称的分割比例与质感柔软的软装材质进行中和,
为空间提供舒适优雅的氛围,
兼顾美感与功能的造型表达
更多信息
7E1A9532.jpg


回复

使用道具 举报

 楼主| 发表于 2021-10-26 09:46:10 | 显示全部楼层
本帖最后由 格堂方俊 于 2021-10-26 09:48 编辑


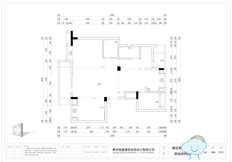
原始构图▼▼▼

163918gvrf227osf0hsvsd.jpg

平面布置图▼▼▼

163918gxplqpolysozo3o3.jpg

客厅▼▼▼

7E1A9533.jpg

7E1A9532.jpg

7E1A9534.jpg

7E1A9535.jpg

7E1A9539.jpg

7E1A9538.jpg

餐厅▼▼▼
7E1A9550.jpg

7E1A9547.jpg

7E1A9554.jpg

7E1A9546.jpg

玄关▼▼▼
7E1A9541.jpg


7E1A9542.jpg

厨房▼▼▼

7E1A9557.jpg

7E1A9555.jpg

主卧▼▼▼
7E1A9574.jpg

7E1A9575.jpg


次卧▼▼▼
7E1A9570.jpg

7E1A9571.jpg

小孩房▼▼▼
7E1A9572.jpg

7E1A9573.jpg

主卫▼▼▼
7E1A9577.jpg

次卫▼▼▼

7E1A9579.jpg

小景▼▼▼
7E1A9569.jpg

7E1A9559.jpg

7E1A9567.jpg

7E1A9582.jpg

7E1A9584.jpg



回复 支持 反对

使用道具 举报

您需要登录后才可以回帖 登录 | 立即注册

本版积分规则

全国统一客服电话
0570-8028505

24x7小时免费咨询

  • 官方在线客服

    QQ客服:小西

    点击交谈

    QQ客服:良子

    点击交谈

    QQ客服:闵月

    点击交谈
  • 衢州市柯城区财富中心3号楼2楼

  • 衢州格堂装饰有限公司

  • 扫一扫关注官方微信

    获取一手特惠信息

快速回复 返回顶部 返回列表