• 手机版

    扫码体验手机版

  • 微信公众号

    扫码关注公众号

登录注册
游客您好
第三方账号登陆

[衢州] 德信·君宸7-1-40-#110㎡ 美式轻奢—-乐章

[复制链接]
发表于 2020-12-29 16:38:24 | 显示全部楼层 |阅读模式
乐章

格堂装饰为您全程记录装修全过程!

小区名称
德信·君宸
房屋面积
110㎡
户型结构
套房
装修风格
美式轻奢
装修方式
全包
装修造价
查看请联系客服万元
设计师
吴工
项目经理
周工
装修公司
格堂装饰
完工实景
完工实景
水电全景
水电全景
VR全景
VR全景
设计说明
简化的石膏线造型搭配金属线条家具,
加深了空间的视觉层次感的同时又显大气利落。
电视墙冷峻匀称的分割比例与质感柔软的软装材质进行中和,
为空间提供舒适优雅的氛围,
兼顾美感与功能的造型表达
更多信息

回复

使用道具 举报

 楼主| 发表于 2020-12-29 16:39:11 | 显示全部楼层
效果图


微信图片_20201229163002.jpg


微信图片_20201229163006.jpg
回复 支持 反对

使用道具 举报

 楼主| 发表于 2020-12-29 16:39:32 | 显示全部楼层
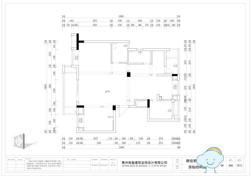
原始结构图


微信图片_20201229162947.jpg


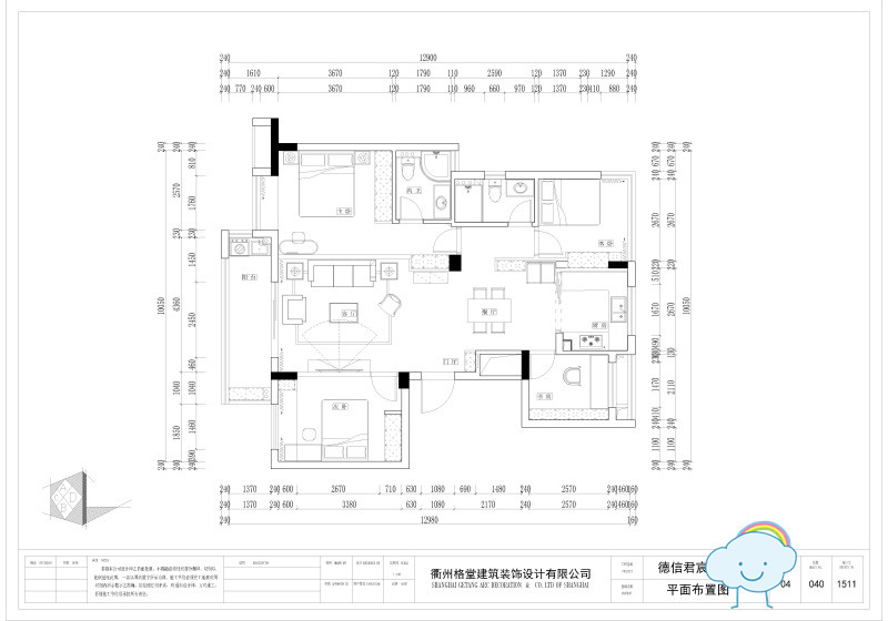
平面布置图



微信图片_20201229162958.jpg
回复 支持 反对

使用道具 举报

 楼主| 发表于 2020-12-29 16:42:37 | 显示全部楼层
开工仪式准备


IMG_20201227_090121.jpg


IMG_20201227_092832.jpg
回复 支持 反对

使用道具 举报

 楼主| 发表于 2020-12-29 16:43:43 | 显示全部楼层
下水管道用格堂专用保护盖保护到位,防止后期砂石堵塞管道

IMG_20201227_092218.jpg


IMG_20201227_092228.jpg


临时马桶安放到位  时刻保持工地卫生干净


IMG_20201227_092216.jpg

回复 支持 反对

使用道具 举报

 楼主| 发表于 2020-12-29 16:48:01 | 显示全部楼层
现场和业主进行拆改放样


IMG_20201227_092129.jpg


开工吉时已到



IMG_20201227_093112.jpg


装修开工第一锤应该由业主敲在要拆除的墙体的墙角(即拐角)上,象征一锤定音的意思,也是新房动土的一种表示方式。


IMG_20201227_092958.jpg

回复 支持 反对

使用道具 举报

 楼主| 发表于 2021-1-1 16:27:42 | 显示全部楼层
墙顶面铲灰,是为了防止墙体出现空鼓,在做好油漆后,不会有墙体整块油漆脱落的现象


IMG_20201231_150305.jpg

IMG_20201231_150309.jpg


IMG_20201231_150307.jpg


IMG_20201231_150315.jpg


IMG_20201231_150320.jpg
回复 支持 反对

使用道具 举报

 楼主| 发表于 2021-1-1 16:28:05 | 显示全部楼层
墙顶面铲灰,是为了防止墙体出现空鼓,在做好油漆后,不会有墙体整块油漆脱落的现象


IMG_20201231_150348.jpg

IMG_20201231_150322.jpg



IMG_20201231_150337.jpg


IMG_20201231_150328.jpg


IMG_20201231_150346.jpg
回复 支持 反对

使用道具 举报

 楼主| 发表于 2021-1-1 16:28:26 | 显示全部楼层
墙顶面铲灰,是为了防止墙体出现空鼓,在做好油漆后,不会有墙体整块油漆脱落的现象

IMG_20201231_150357.jpg


IMG_20201231_150352.jpg


IMG_20201231_150358.jpg



IMG_20201231_150418.jpg


IMG_20201231_150420.jpg
回复 支持 反对

使用道具 举报

 楼主| 发表于 2021-1-1 16:28:53 | 显示全部楼层
拆改阶段


IMG_20201231_150431.jpg

IMG_20201231_150433.jpg


IMG_20201231_150439.jpg



IMG_20201231_150445.jpg


IMG_20201231_150448.jpg
回复 支持 反对

使用道具 举报

您需要登录后才可以回帖 登录 | 立即注册

本版积分规则

全国统一客服电话
0570-8028505

24x7小时免费咨询

  • 官方在线客服

    QQ客服:小西

    点击交谈

    QQ客服:良子

    点击交谈

    QQ客服:闵月

    点击交谈
  • 衢州市柯城区财富中心3号楼2楼

  • 衢州格堂装饰有限公司

  • 扫一扫关注官方微信

    获取一手特惠信息

快速回复 返回顶部 返回列表