• 手机版

    扫码体验手机版

  • 微信公众号

    扫码关注公众号

登录注册
游客您好
第三方账号登陆

衢州公馆11-3-6#130㎡现代——现代派的极简

[复制链接]
发表于 2021-4-4 10:13:37 | 显示全部楼层 |阅读模式
衢州公馆11-3-6#130㎡现代——现代派的极简

格堂装饰实景完工案例欣赏!

小区名称
衢州公馆
房屋面积
130㎡
户型结构
套房
装修风格
现代
装修方式
半包
装修造价
查看请联系客服万元
设计师
何工
项目经理
施工
装修公司
格堂装饰
装修过程
装修日记
设计说明
将设计元素、色彩、照明、原材料简化到最少的程度,但对色彩、材料的质感要求很高。因此,简约的空间设计通常非常含蓄,往往能达到以少胜多、以简胜繁的效果。
更多信息
本帖最后由 格堂方俊 于 2022-1-2 13:32 编辑

7E1A6256.JPG


回复

使用道具 举报

 楼主| 发表于 2021-4-4 10:20:06 | 显示全部楼层

原始构图▼▼▼
113241bu66cbzcgv669uug.png


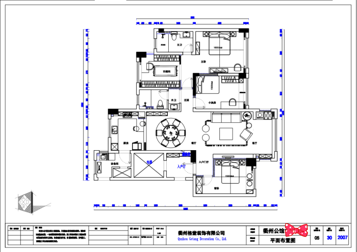
平面布置图▼▼▼
113258cod8qo6qbf66b4pz.png


客厅▼▼▼
7E1A6255.JPG
7E1A6258.JPG
7E1A6256.JPG
7E1A6259.JPG
7E1A6264.JPG
7E1A6260.JPG


餐厅▼▼▼
7E1A6273.JPG
7E1A6276.JPG
7E1A6277.JPG
7E1A6281.JPG


厨房▼▼▼
7E1A6285.JPG
7E1A6286.JPG
7E1A6292.JPG


玄关▼▼▼
7E1A6298.JPG
7E1A6299.JPG


过道▼▼▼
7E1A6303.JPG


主卧▼▼▼
7E1A6313.JPG
7E1A6315.JPG


主卫▼▼▼、
7E1A6325.JPG
7E1A6324.JPG
7E1A6322.JPG


次卫干区▼▼▼
7E1A6305.JPG
7E1A6309.JPG
7E1A6307.JPG


衣帽间▼▼▼
7E1A6316.JPG


小景▼▼▼
7E1A6334.JPG
7E1A6348.JPG
7E1A6332.JPG
7E1A6352.JPG









回复 支持 反对

使用道具 举报

您需要登录后才可以回帖 登录 | 立即注册

本版积分规则

全国统一客服电话
0570-8028505

24x7小时免费咨询

  • 官方在线客服

    QQ客服:小西

    点击交谈

    QQ客服:良子

    点击交谈

    QQ客服:闵月

    点击交谈
  • 衢州市柯城区财富中心3号楼2楼

  • 衢州格堂装饰有限公司

  • 扫一扫关注官方微信

    获取一手特惠信息

快速回复 返回顶部 返回列表