• 手机版

    扫码体验手机版

  • 微信公众号

    扫码关注公众号

登录注册
游客您好
第三方账号登陆

[衢州] 衢州公馆11-3-6#130㎡现代——现代派的极简

[复制链接]
发表于 2020-7-13 11:32:29 | 显示全部楼层 |阅读模式
现代派的极简

格堂装饰为您全程记录装修全过程!

小区名称
衢州公馆
房屋面积
130㎡
户型结构
套房
装修风格
现代
装修方式
半包
装修造价
查看请联系客服万元
设计师
何工
项目经理
施工
装修公司
格堂装饰
完工实景
完工实景
水电全景
水电全景
VR全景
VR全景
设计说明
将设计元素、色彩、照明、原材料简化到最少的程度,但对色彩、材料的质感要求很高。因此,简约的空间设计通常非常含蓄,往往能达到以少胜多、以简胜繁的效果。
更多信息

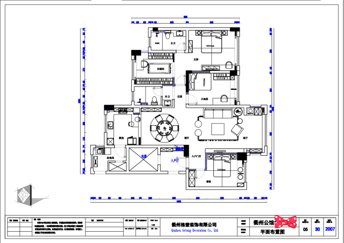
平面布置图
2eb355c6c6421db752e5bb22211baf9.jpg

9f7af1fed61c06c093b2015b167b9e6.jpg

aabb4501d9628ee53d50804489993a5.jpg
回复

使用道具 举报

 楼主| 发表于 2020-7-13 11:32:49 | 显示全部楼层

原始结构图
f8fdf096c33a3630cf28a19054fb757.png
回复 支持 反对

使用道具 举报

 楼主| 发表于 2020-7-13 11:33:07 | 显示全部楼层

平面布置图
6ddc9058e88fd4b944f1fa0f4a63a1c.png
回复 支持 反对

使用道具 举报

 楼主| 发表于 2020-7-13 11:34:49 | 显示全部楼层

开工前电梯口墙面和地面已经保护到位。
IMG_20200711_084232.jpg

IMG_20200711_084234.jpg

IMG_20200711_084237.jpg

IMG_20200711_084239.jpg

IMG_20200711_084241.jpg
回复 支持 反对

使用道具 举报

 楼主| 发表于 2020-7-13 11:35:18 | 显示全部楼层

电梯口对角
IMG_20200711_084247.jpg

IMG_20200711_084249.jpg

IMG_20200711_084252.jpg

IMG_20200711_084254.jpg

IMG_20200711_084259.jpg
回复 支持 反对

使用道具 举报

 楼主| 发表于 2020-7-13 11:36:02 | 显示全部楼层

大门已经套好了保护套
IMG_20200711_084319.jpg

IMG_20200711_084307.jpg
回复 支持 反对

使用道具 举报

 楼主| 发表于 2020-7-13 11:36:26 | 显示全部楼层

门槛也都保护好了
IMG_20200711_084323.jpg
回复 支持 反对

使用道具 举报

 楼主| 发表于 2020-7-13 11:36:51 | 显示全部楼层

煤气表保护好了
IMG_20200711_084347.jpg
回复 支持 反对

使用道具 举报

 楼主| 发表于 2020-7-13 11:37:36 | 显示全部楼层

下水管用格堂专用保护盖保护,防止砂石堵塞管道。
IMG_20200711_084350.jpg

IMG_20200711_084409.jpg

IMG_20200711_084417.jpg
回复 支持 反对

使用道具 举报

 楼主| 发表于 2020-7-13 11:38:13 | 显示全部楼层

临时马桶:每一个施工现场都会配备临时小便斗,并且时刻保持干净卫生、保证工地环境干净、整洁。
IMG_20200711_084428.jpg
回复 支持 反对

使用道具 举报

您需要登录后才可以回帖 登录 | 立即注册

本版积分规则

全国统一客服电话
0570-8028505

24x7小时免费咨询

  • 官方在线客服

    QQ客服:小西

    点击交谈

    QQ客服:良子

    点击交谈

    QQ客服:闵月

    点击交谈
  • 衢州市柯城区财富中心3号楼2楼

  • 衢州格堂装饰有限公司

  • 扫一扫关注官方微信

    获取一手特惠信息

快速回复 返回顶部 返回列表