• 手机版

    扫码体验手机版

  • 微信公众号

    扫码关注公众号

登录注册
游客您好
第三方账号登陆

江山望府12#120㎡现代风格——温馨四居

[复制链接]
发表于 2021-4-4 10:02:11 | 显示全部楼层 |阅读模式
江山望府12#120㎡现代风格——温馨四居

格堂装饰实景完工案例欣赏!

小区名称
江山望府
房屋面积
120㎡
户型结构
套房
装修风格
现代
装修方式
半包
装修造价
查看请联系客服万元
设计师
吴工
项目经理
郑工
装修公司
格堂装饰
装修过程
装修日记
设计说明
本案整体户型比较方正,外卫原结构相对较局促,将浴室柜放出来,形成一个干区,并用玻璃做为隔断增加采光。业主希望将爱好融入生活,对于户型不追求尽可能多的卧室,仅保留必要的三房,其余一个房间,用于电竞房兼顾书房,并功能上让体验感达到最优。
更多信息
本帖最后由 格堂方俊 于 2022-1-1 16:26 编辑

7E1A6067.JPG


回复

使用道具 举报

 楼主| 发表于 2021-4-4 10:04:08 | 显示全部楼层
本帖最后由 格堂方俊 于 2021-4-4 10:09 编辑


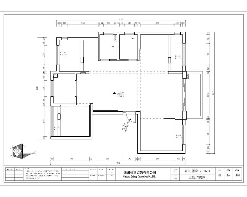
原始构图▼▼▼
105614byvtypy22dpvvkdv.jpg


平面布置图▼▼▼
105632q04nyp2lqgdq4jr1.jpg

客厅▼▼▼

7E1A6061.JPG
7E1A6062.JPG
7E1A6064.JPG
7E1A6065.JPG
7E1A6067.JPG


餐厅▼▼▼
7E1A6069.JPG
7E1A6070.JPG
7E1A6068.JPG


厨房▼▼▼
7E1A6078.JPG




主卧▼▼▼
7E1A6087.JPG
7E1A6086.JPG
7E1A6089.JPG


次卧▼▼▼
7E1A6083.JPG


娱乐室▼▼▼
7E1A6081.JPG
7E1A6079.JPG
7E1A6080.JPG



主卫▼▼▼
7E1A6090.JPG


次卫干区▼▼▼

7E1A6077.JPG
7E1A6075.JPG
7E1A6074.JPG


小景▼▼▼


7E1A6096.JPG
7E1A6098.JPG































回复 支持 反对

使用道具 举报

您需要登录后才可以回帖 登录 | 立即注册

本版积分规则

全国统一客服电话
0570-8028505

24x7小时免费咨询

  • 官方在线客服

    QQ客服:小西

    点击交谈

    QQ客服:良子

    点击交谈

    QQ客服:闵月

    点击交谈
  • 衢州市柯城区财富中心3号楼2楼

  • 衢州格堂装饰有限公司

  • 扫一扫关注官方微信

    获取一手特惠信息

快速回复 返回顶部 返回列表