• 手机版

    扫码体验手机版

  • 微信公众号

    扫码关注公众号

登录注册
游客您好
第三方账号登陆

[江山] 江山望府12#120㎡现代风格——温馨四居

[复制链接]
发表于 2020-5-29 10:54:15 | 显示全部楼层 |阅读模式
江山望府12#120㎡现代风格——温馨四居

格堂装饰为您全程记录装修全过程!

小区名称
江山望府
房屋面积
120㎡
户型结构
框架
装修风格
现代
装修方式
半包
装修造价
查看请联系客服万元
设计师
吴工
项目经理
郑工
装修公司
格堂装饰
完工实景
完工实景
水电全景
水电全景
VR全景
VR全景
设计说明
本案整体户型比较方正,外卫原结构相对较局促,将浴室柜放出来,形成一个干区,并用玻璃做为隔断增加采光。业主希望将爱好融入生活,对于户型不追求尽可能多的卧室,仅保留必要的三房,其余一个房间,用于电竞房兼顾书房,并功能上让体验感达到最优。
更多信息
本帖最后由 格堂小李 于 2021-3-4 14:52 编辑


回复

使用道具 举报

 楼主| 发表于 2020-5-29 10:56:23 | 显示全部楼层
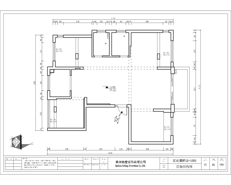
结构图
e8bf3d3bb95f90827a2f03532ed076e.jpg
回复 支持 反对

使用道具 举报

 楼主| 发表于 2020-5-29 10:56:40 | 显示全部楼层
本帖最后由 格堂文章 于 2020-5-31 16:48 编辑

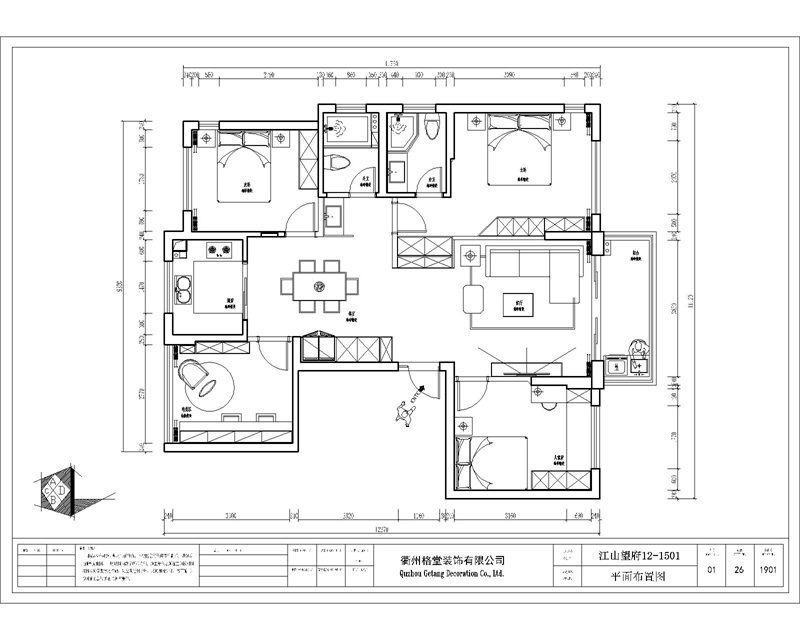
平面设计图
27650ccce7d4918cd5ae78bd1a2dc1a.jpg
回复 支持 反对

使用道具 举报

 楼主| 发表于 2020-5-29 10:57:02 | 显示全部楼层
效果图

9dda0aaec566acc796919c13c376f26.jpg


fd303b3c8d12c37facc654fc9597c6f.jpg
回复 支持 反对

使用道具 举报

 楼主| 发表于 2020-5-31 15:00:51 | 显示全部楼层
开工大吉



回复

使用道具 举报

 楼主| 发表于 2020-5-31 17:30:31 | 显示全部楼层
开工前的准备仪式

518cc78b2ca29877290ab8a0bed6f07.jpg

bb5d7a8a48c5c5279821aebe8e350f7.jpg

c3a246699bfd368e84887cdbfc144c2.jpg

7c868bb256fa45b4da1ca8defab62c5.jpg

57959396042022a71f3cc8565013635.jpg
回复 支持 反对

使用道具 举报

 楼主| 发表于 2020-5-31 17:32:57 | 显示全部楼层
开工仪式

023dceebc4af3908d73d931170f7816.jpg
回复 支持 反对

使用道具 举报

 楼主| 发表于 2020-5-31 17:33:30 | 显示全部楼层
门前保护到位

IMG_2938.JPG

IMG_2936.JPG

IMG_2937.JPG

IMG_2939.JPG

IMG_2940.JPG
回复 支持 反对

使用道具 举报

 楼主| 发表于 2020-5-31 17:33:50 | 显示全部楼层
IMG_2941.JPG
回复 支持 反对

使用道具 举报

 楼主| 发表于 2020-5-31 17:34:11 | 显示全部楼层
客厅

IMG_2943.JPG

IMG_2944.JPG

IMG_2945.JPG

IMG_2947.JPG

IMG_2946.JPG
回复 支持 反对

使用道具 举报

您需要登录后才可以回帖 登录 | 立即注册

本版积分规则

全国统一客服电话
0570-8028505

24x7小时免费咨询

  • 官方在线客服

    QQ客服:小西

    点击交谈

    QQ客服:良子

    点击交谈

    QQ客服:闵月

    点击交谈
  • 衢州市柯城区财富中心3号楼2楼

  • 衢州格堂装饰有限公司

  • 扫一扫关注官方微信

    获取一手特惠信息

快速回复 返回顶部 返回列表