• 手机版

    扫码体验手机版

  • 微信公众号

    扫码关注公众号

登录注册
游客您好
第三方账号登陆

月亮湾沁园3-2-5#150㎡现代——现代极简,打造质感舒适的生活居

[复制链接]
发表于 2021-3-12 14:31:04 | 显示全部楼层 |阅读模式
月亮湾沁园3-2-5#150㎡现代——现代极简,打造质感舒适的生活居

格堂装饰实景完工案例欣赏!

小区名称
月亮湾
房屋面积
150㎡
户型结构
复式
装修风格
现代
装修方式
全包
装修造价
查看请联系客服万元
设计师
余工
项目经理
余工
装修公司
格堂装饰
装修过程
装修日记
设计说明
设计说明:家是一个容器,它能承载少时所有的梦想和期待,这也是我们幸福的源泉。
更多信息
本帖最后由 格堂方俊 于 2021-12-24 11:49 编辑

SGXH5654.jpg


回复

使用道具 举报

 楼主| 发表于 2021-3-12 14:32:02 | 显示全部楼层

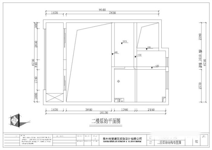
原始构图▼▼▼
162647ccqwjc0xmqmfjkim.jpg
162647pbffjsdn090wfknb.jpg


回复 支持 反对

使用道具 举报

 楼主| 发表于 2021-3-12 14:32:21 | 显示全部楼层
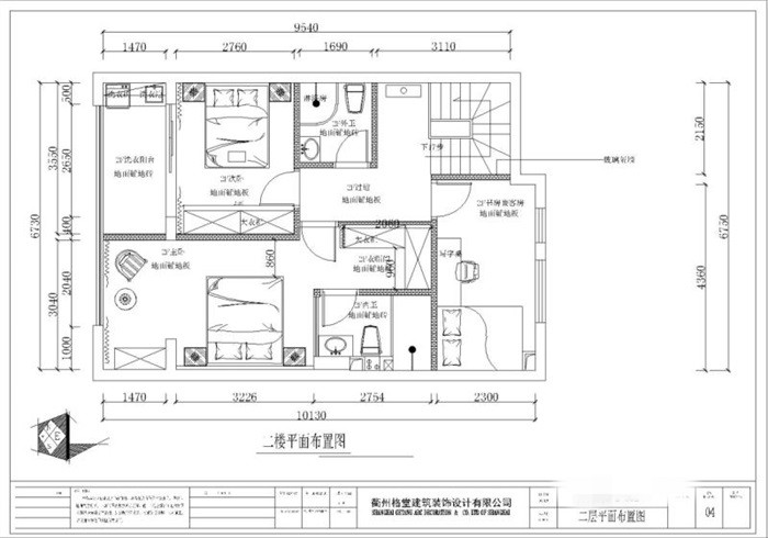
平面布置图▼▼▼

162732c2c7929ytav77y7v.jpg

162732xt0jafl1w0ts0srz.jpg


回复 支持 反对

使用道具 举报

 楼主| 发表于 2021-3-12 14:32:59 | 显示全部楼层
本帖最后由 格堂方俊 于 2021-9-17 09:45 编辑

客厅▼▼▼

SGXH5654.JPG

SGXH5652.JPG

SGXH5653.JPG

SGXH5705-2.JPG

SGXH5706.JPG

SGXH5685-2.JPG




回复 支持 反对

使用道具 举报

 楼主| 发表于 2021-3-12 14:33:42 | 显示全部楼层
本帖最后由 格堂方俊 于 2021-9-17 09:46 编辑

餐厅▼▼▼

SGXH5657.JPG

SGXH5656.JPG

SGXH5660.JPG

SGXH5662.JPG

SGXH5686-2.JPG


回复 支持 反对

使用道具 举报

 楼主| 发表于 2021-3-12 14:34:17 | 显示全部楼层
本帖最后由 格堂方俊 于 2021-9-17 09:47 编辑

厨房▼▼▼

SGXH5658.JPG

SGXH5655.JPG


回复 支持 反对

使用道具 举报

 楼主| 发表于 2021-3-12 14:34:54 | 显示全部楼层
本帖最后由 格堂方俊 于 2021-9-17 09:48 编辑

主卧▼▼▼

SGXH5667.JPG

SGXH5663.JPG

SGXH5664.JPG

SGXH5668.JPG

SGXH5698.JPG


回复 支持 反对

使用道具 举报

 楼主| 发表于 2021-3-12 14:35:32 | 显示全部楼层
本帖最后由 格堂方俊 于 2021-9-17 09:50 编辑

次卧▼▼▼

SGXH5671.JPG

SGXH5672.JPG

SGXH5701.JPG




回复 支持 反对

使用道具 举报

 楼主| 发表于 2021-3-12 14:36:05 | 显示全部楼层
本帖最后由 格堂方俊 于 2021-9-17 09:52 编辑

主卫▼▼▼

SGXH5669.JPG


回复 支持 反对

使用道具 举报

 楼主| 发表于 2021-3-12 14:38:29 | 显示全部楼层
本帖最后由 格堂方俊 于 2021-9-17 09:54 编辑

衣帽间▼▼▼

SGXH5670.JPG


回复 支持 反对

使用道具 举报

您需要登录后才可以回帖 登录 | 立即注册

本版积分规则

全国统一客服电话
0570-8028505

24x7小时免费咨询

  • 官方在线客服

    QQ客服:小西

    点击交谈

    QQ客服:良子

    点击交谈

    QQ客服:闵月

    点击交谈
  • 衢州市柯城区财富中心3号楼2楼

  • 衢州格堂装饰有限公司

  • 扫一扫关注官方微信

    获取一手特惠信息

快速回复 返回顶部 返回列表