• 手机版

    扫码体验手机版

  • 微信公众号

    扫码关注公众号

登录注册
游客您好
第三方账号登陆

[衢州] 月亮湾沁园3-2-5#150㎡现代——现代极简,打造质感舒适的生活居

[复制链接]
发表于 2020-7-15 16:25:49 | 显示全部楼层 |阅读模式
现代极简,打造质感舒适的生活居

格堂装饰为您全程记录装修全过程!

小区名称
月亮湾沁园
房屋面积
150㎡
户型结构
复式
装修风格
现代
装修方式
全包
装修造价
查看请联系客服万元
设计师
余工
项目经理
余工
装修公司
格堂装饰
完工实景
完工实景
水电全景
水电全景
VR全景
VR全景
设计说明
设计说明:家是一个容器,它能承载少时所有的梦想和期待,这也是我们幸福的源泉。
更多信息

效果图
IMG_7776.JPG

IMG_7774.JPG

IMG_7775.JPG
回复

使用道具 举报

 楼主| 发表于 2020-7-15 16:27:00 | 显示全部楼层

原始结构图
IMG_7777_副本.jpg

IMG_7778_副本.jpg
回复 支持 反对

使用道具 举报

 楼主| 发表于 2020-7-15 16:27:46 | 显示全部楼层

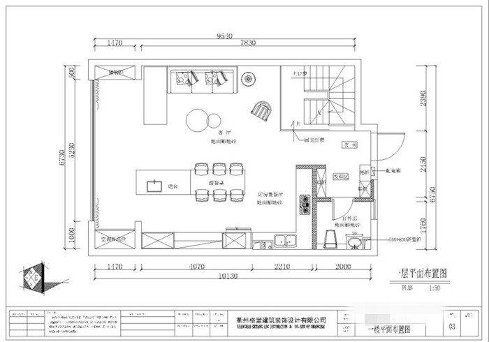
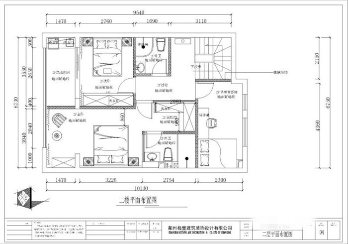
平面布置图
IMG_7779_副本.jpg

IMG_7780_副本.jpg
回复 支持 反对

使用道具 举报

 楼主| 发表于 2020-7-15 16:29:32 | 显示全部楼层
项目经理正在做开工前的准备工作。
IMG_7323.JPG
回复 支持 反对

使用道具 举报

 楼主| 发表于 2020-7-15 16:30:50 | 显示全部楼层

煤气表保护到位,防止磕碰哦!
IMG_7322.JPG
回复 支持 反对

使用道具 举报

 楼主| 发表于 2020-7-15 16:32:13 | 显示全部楼层

大门有磕碰。
IMG_7325.JPG

IMG_7324.JPG

IMG_7326.JPG

IMG_7327.JPG

回复 支持 反对

使用道具 举报

 楼主| 发表于 2020-7-15 16:33:00 | 显示全部楼层

一切准备就绪,就等开工吉时啦!
IMG_7328.JPG
回复 支持 反对

使用道具 举报

 楼主| 发表于 2020-7-15 16:33:45 | 显示全部楼层

吉时已到,恭祝业主大人开工大吉!
IMG_7329.JPG
回复 支持 反对

使用道具 举报

 楼主| 发表于 2020-7-26 11:17:42 | 显示全部楼层

电梯间墙面和地面保护到位,防止磕碰哦!
IMG_3017.JPG

IMG_3020.JPG

IMG_3019.JPG

IMG_3022.JPG

IMG_3021.JPG
回复 支持 反对

使用道具 举报

 楼主| 发表于 2020-7-26 11:20:04 | 显示全部楼层

大门墙面和地面保护到位,防止磕碰。
IMG_3023.JPG

IMG_3025.JPG

IMG_3024.JPG

回复 支持 反对

使用道具 举报

您需要登录后才可以回帖 登录 | 立即注册

本版积分规则

全国统一客服电话
0570-8028505

24x7小时免费咨询

  • 官方在线客服

    QQ客服:小西

    点击交谈

    QQ客服:良子

    点击交谈

    QQ客服:闵月

    点击交谈
  • 衢州市柯城区财富中心3号楼2楼

  • 衢州格堂装饰有限公司

  • 扫一扫关注官方微信

    获取一手特惠信息

快速回复 返回顶部 返回列表