• 手机版

    扫码体验手机版

  • 微信公众号

    扫码关注公众号

登录注册
游客您好
第三方账号登陆

[衢州] 通策兰堡9-1-120-#87㎡ 日式—-C Famille

[复制链接]
发表于 2021-2-25 09:47:56 | 显示全部楼层 |阅读模式
C Famille

格堂装饰为您全程记录装修全过程!

小区名称
通策兰堡
房屋面积
87㎡
户型结构
套房
装修风格
日式
装修方式
半包
装修造价
查看请联系客服万元
设计师
童工
项目经理
周工
装修公司
格堂装饰
完工实景
完工实景
水电全景
水电全景
VR全景
VR全景
设计说明
家”的美好不仅限于可见的形式,
更多的是家的舒适度,
是身心融入室内的怡然与放松。
时光好像在不知不觉中就慢了下来,
让我们能品味和咀嚼生活氛围。
眼眸浮动的光影、指尖略过的微风、脚掌踏上的木质触感,
这些才是最可贵的“家的元素”。
更多信息

回复

使用道具 举报

 楼主| 发表于 2021-2-25 09:49:37 | 显示全部楼层
效果图


微信图片_20210225094026.jpg


微信图片_20210225094029.jpg
回复 支持 反对

使用道具 举报

 楼主| 发表于 2021-2-25 09:50:01 | 显示全部楼层
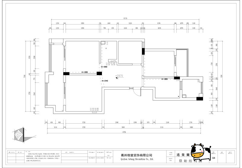
原始结构图


微信图片_20210225094011.jpg


平面布置图


微信图片_20210225094022.jpg
回复 支持 反对

使用道具 举报

 楼主| 发表于 2021-2-25 09:51:00 | 显示全部楼层
开工之前做好准备工作


IMG_20210224_075257.jpg

IMG_20210224_075336.jpg


IMG_20210224_075346.jpg



IMG_20210224_075316.jpg
回复 支持 反对

使用道具 举报

 楼主| 发表于 2021-2-25 09:52:30 | 显示全部楼层
拆改放样

IMG_20210224_080718.jpg


IMG_20210224_081706.jpg
回复 支持 反对

使用道具 举报

 楼主| 发表于 2021-2-25 09:52:50 | 显示全部楼层
开工大吉


IMG_20210224_083144.jpg


IMG_20210224_082855.jpg
回复 支持 反对

使用道具 举报

 楼主| 发表于 2021-3-10 15:59:44 | 显示全部楼层
墙面铲灰,是为了防止墙体出现空鼓,在做好油漆后,不会有墙体整块油漆脱落的现象

IMG_20210307_122145.jpg


IMG_20210307_122150.jpg


IMG_20210307_122147.jpg


IMG_20210307_122157.jpg


IMG_20210307_122154.jpg
回复 支持 反对

使用道具 举报

 楼主| 发表于 2021-3-10 16:00:13 | 显示全部楼层
墙面铲灰,是为了防止墙体出现空鼓,在做好油漆后,不会有墙体整块油漆脱落的现象

IMG_20210307_122201.jpg


IMG_20210307_122159.jpg


IMG_20210307_122204.jpg


IMG_20210307_122208.jpg


IMG_20210307_122212.jpg
回复 支持 反对

使用道具 举报

 楼主| 发表于 2021-3-10 16:00:33 | 显示全部楼层
阳台墙面铲灰,是为了防止墙体出现空鼓,在做好油漆后,不会有墙体整块油漆脱落的现象

IMG_20210307_122223.jpg

IMG_20210307_122214.jpg


IMG_20210307_122218.jpg



IMG_20210307_122216.jpg


IMG_20210307_122225.jpg
回复 支持 反对

使用道具 举报

 楼主| 发表于 2021-3-10 16:01:11 | 显示全部楼层
阳台墙面铲灰,是为了防止墙体出现空鼓,在做好油漆后,不会有墙体整块油漆脱落的现象

IMG_20210307_122229.jpg


IMG_20210307_122231.jpg


IMG_20210307_122227.jpg



IMG_20210307_122239.jpg


IMG_20210307_122233.jpg
回复 支持 反对

使用道具 举报

您需要登录后才可以回帖 登录 | 立即注册

本版积分规则

全国统一客服电话
0570-8028505

24x7小时免费咨询

  • 官方在线客服

    QQ客服:小西

    点击交谈

    QQ客服:良子

    点击交谈

    QQ客服:闵月

    点击交谈
  • 衢州市柯城区财富中心3号楼2楼

  • 衢州格堂装饰有限公司

  • 扫一扫关注官方微信

    获取一手特惠信息

快速回复 返回顶部 返回列表