• 手机版

    扫码体验手机版

  • 微信公众号

    扫码关注公众号

登录注册
游客您好
第三方账号登陆

阳光水岸 16-#220 ㎡新中式——茶香飘逸又见东方情

[复制链接]
发表于 2021-1-17 13:50:00 | 显示全部楼层 |阅读模式
阳光水岸 16-#220 ㎡新中式——茶香飘逸又见东方情

格堂装饰实景完工案例欣赏!

小区名称
阳光水岸
房屋面积
220㎡
户型结构
套房
装修风格
现代
装修方式
半包
装修造价
查看请联系客服万元
设计师
曹工
项目经理
周工
装修公司
格堂装饰
装修过程
装修日记
设计说明
几度光阴、几度轮回、春去秋来岁月从来都在更替交换,唯有淡泊宁静的心态方是永恒,屋外鸟鸣声声传来,屋内茶香飘逸四方,推杯换盏间,豁然开阔,兼容四方,正有此心胸,便再无框定。。
更多信息
7E1A3179.jpg


回复

使用道具 举报

 楼主| 发表于 2021-1-17 13:59:58 | 显示全部楼层

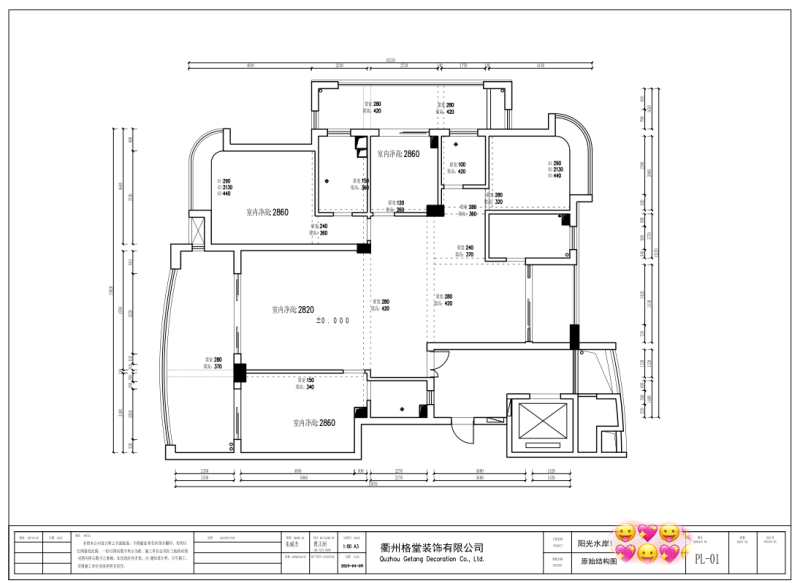
原始构图▼▼▼

112248i1ydds0yssdhhby0.png


回复 支持 反对

使用道具 举报

 楼主| 发表于 2021-1-17 14:00:14 | 显示全部楼层
平面布置图▼▼▼

112248m5tfrudekdsgz92e.png


回复 支持 反对

使用道具 举报

 楼主| 发表于 2021-1-17 14:00:40 | 显示全部楼层
客厅▼▼▼

7E1A3173.jpg

7E1A3174.jpg

7E1A3175.jpg

7E1A3176.jpg

7E1A3178.jpg

7E1A3177.jpg

7E1A3180.jpg


回复 支持 反对

使用道具 举报

 楼主| 发表于 2021-1-17 14:01:18 | 显示全部楼层
餐厅▼▼▼

7E1A3185.jpg

7E1A3186.jpg

7E1A3189.jpg


回复 支持 反对

使用道具 举报

 楼主| 发表于 2021-1-17 14:01:44 | 显示全部楼层
厨房▼▼▼

7E1A3191.jpg

7E1A3190.jpg


回复 支持 反对

使用道具 举报

 楼主| 发表于 2021-1-17 14:02:17 | 显示全部楼层
主卧▼▼▼

7E1A3200.jpg

7E1A3201.jpg

7E1A3204.jpg

7E1A3206.jpg



回复 支持 反对

使用道具 举报

 楼主| 发表于 2021-1-17 14:03:03 | 显示全部楼层
次卧▼▼▼

7E1A3212.jpg

7E1A3214.jpg

7E1A3215.jpg


回复 支持 反对

使用道具 举报

 楼主| 发表于 2021-1-17 14:03:40 | 显示全部楼层
干区▼▼▼

7E1A3197.jpg


回复 支持 反对

使用道具 举报

 楼主| 发表于 2021-1-17 14:03:59 | 显示全部楼层
主卫▼▼▼

7E1A3199.jpg


回复 支持 反对

使用道具 举报

您需要登录后才可以回帖 登录 | 立即注册

本版积分规则

全国统一客服电话
0570-8028505

24x7小时免费咨询

  • 官方在线客服

    QQ客服:小西

    点击交谈

    QQ客服:良子

    点击交谈

    QQ客服:闵月

    点击交谈
  • 衢州市柯城区财富中心3号楼2楼

  • 衢州格堂装饰有限公司

  • 扫一扫关注官方微信

    获取一手特惠信息

快速回复 返回顶部 返回列表