• 手机版

    扫码体验手机版

  • 微信公众号

    扫码关注公众号

登录注册
游客您好
第三方账号登陆

[衢州] 阳光水岸16-#220 ㎡新中式——茶香飘逸又见东方情

[复制链接]
发表于 2019-5-29 08:59:35 | 显示全部楼层 |阅读模式
茶香飘逸又见东方情

格堂装饰为您全程记录装修全过程!

小区名称
阳光水岸
房屋面积
220㎡
户型结构
套房
装修风格
新中式
装修方式
半包
装修造价
查看请联系客服万元
设计师
曹工
项目经理
周工
装修公司
格堂装饰
完工实景
完工实景
水电全景
水电全景
VR全景
VR全景
设计说明
几度光阴、几度轮回、春去秋来岁月从来都在更替交换,唯有淡泊宁静的心态方是永恒,屋外鸟鸣声声传来,屋内茶香飘逸四方,推杯换盏间,豁然开阔,兼容四方,正有此心胸,便再无框定。
更多信息
本帖最后由 格堂小范 于 2021-1-17 13:56 编辑


回复

使用道具 举报

 楼主| 发表于 2019-6-5 11:22:26 | 显示全部楼层
效果图

微信图片_20190605110651.jpg
回复 支持 反对

使用道具 举报

 楼主| 发表于 2019-6-5 11:23:09 | 显示全部楼层
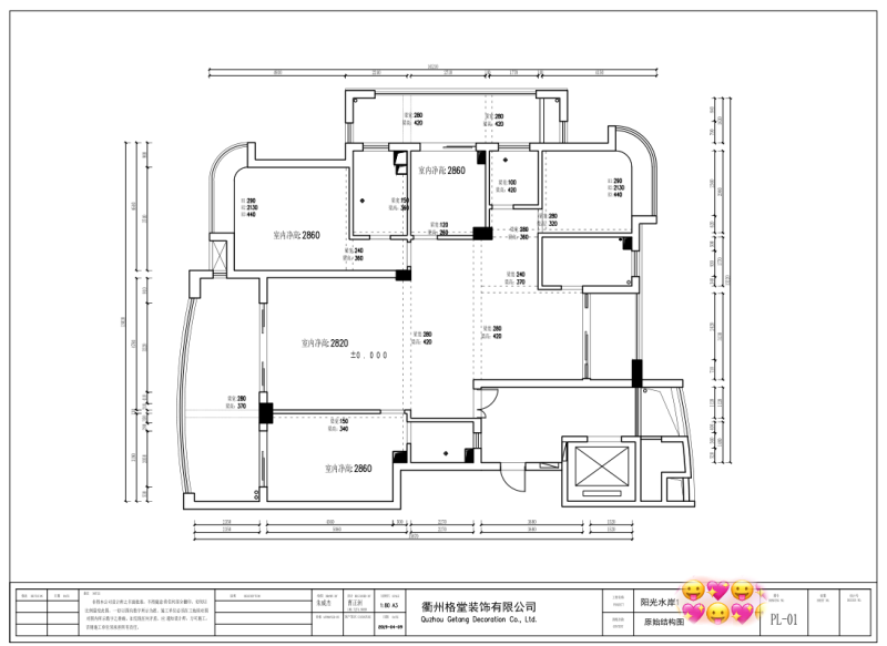
原始结构图

微信图片_20190605111108.png

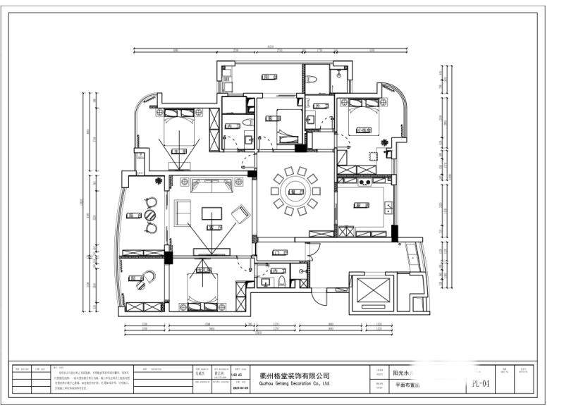
平面布置图  

微信图片_20190605111129.png
回复 支持 反对

使用道具 举报

 楼主| 发表于 2020-2-29 15:14:26 | 显示全部楼层
开工之前做好准备工作

IMG_20190522_085134.jpg

IMG_20190522_085141.jpg

IMG_20190522_085144.jpg


IMG_20190522_085437.jpg


IMG_20190522_085434.jpg
回复 支持 反对

使用道具 举报

 楼主| 发表于 2020-2-29 15:14:56 | 显示全部楼层
下水管道用格堂专用保护盖保护到位,防止后期沙石堵塞管道

IMG_20190522_085440.jpg

IMG_20190522_085453.jpg

IMG_20190522_085454.jpg


IMG_20190522_085457.jpg


IMG_20190522_085514.jpg
回复 支持 反对

使用道具 举报

 楼主| 发表于 2020-2-29 15:15:33 | 显示全部楼层
大门,煤气表,保护到位

IMG_20190522_085753.jpg

IMG_20190522_085818.jpg


拆改交接

IMG_20190522_085939.jpg

IMG_20190522_085928.jpg


IMG_20190522_090202.jpg



回复 支持 反对

使用道具 举报

 楼主| 发表于 2020-2-29 15:15:59 | 显示全部楼层
需要拆改的地方已经在墙面上做好标记

IMG_20190522_090341.jpg

IMG_20190522_090638.jpg


IMG_20190522_090703_1.jpg


IMG_20190522_090649.jpg


IMG_20190522_090717.jpg
回复 支持 反对

使用道具 举报

 楼主| 发表于 2020-2-29 15:17:50 | 显示全部楼层
拆改标记

IMG_20190522_090741.jpg

IMG_20190522_090728.jpg

IMG_20190522_090848.jpg


IMG_20190522_090904_1.jpg


IMG_20190522_090856.jpg
回复 支持 反对

使用道具 举报

 楼主| 发表于 2020-2-29 15:25:13 | 显示全部楼层
IMG_20190522_090927.jpg

IMG_20190522_090939.jpg

IMG_20190522_090933.jpg

IMG_20190522_090956.jpg

IMG_20190522_091006.jpg
回复 支持 反对

使用道具 举报

 楼主| 发表于 2020-2-29 15:25:47 | 显示全部楼层
门槛保护到位
IMG_20190522_091447.jpg

IMG_20190522_091128.jpg
回复 支持 反对

使用道具 举报

您需要登录后才可以回帖 登录 | 立即注册

本版积分规则

全国统一客服电话
0570-8028505

24x7小时免费咨询

  • 官方在线客服

    QQ客服:小西

    点击交谈

    QQ客服:良子

    点击交谈

    QQ客服:闵月

    点击交谈
  • 衢州市柯城区财富中心3号楼2楼

  • 衢州格堂装饰有限公司

  • 扫一扫关注官方微信

    获取一手特惠信息

快速回复 返回顶部 返回列表