• 手机版

    扫码体验手机版

  • 微信公众号

    扫码关注公众号

登录注册
游客您好
第三方账号登陆

[衢州] 国金旭辉城21-2-3#96㎡北欧 ——原木北欧

[复制链接]
发表于 2020-12-29 16:23:58 | 显示全部楼层 |阅读模式
原木北欧

格堂装饰为您全程记录装修全过程!

小区名称
国金旭辉城
房屋面积
96㎡
户型结构
套房
装修风格
北欧
装修方式
半包
装修造价
查看请联系客服万元
设计师
王工
项目经理
胡工
装修公司
格堂装饰
完工实景
完工实景
水电全景
水电全景
VR全景
VR全景
设计说明
设计说明北欧风格与装饰艺术风格、流线型风格等追求时髦和商业价值的形式主义不同,北欧风格简洁实用,体现对传统的尊重,对自然材料的欣赏,对形式和装饰的克制,以及力求在形式和功能的统一
更多信息

效果图
IMG_6939.JPG

IMG_6940.JPG

回复

使用道具 举报

 楼主| 发表于 2020-12-29 16:29:13 | 显示全部楼层

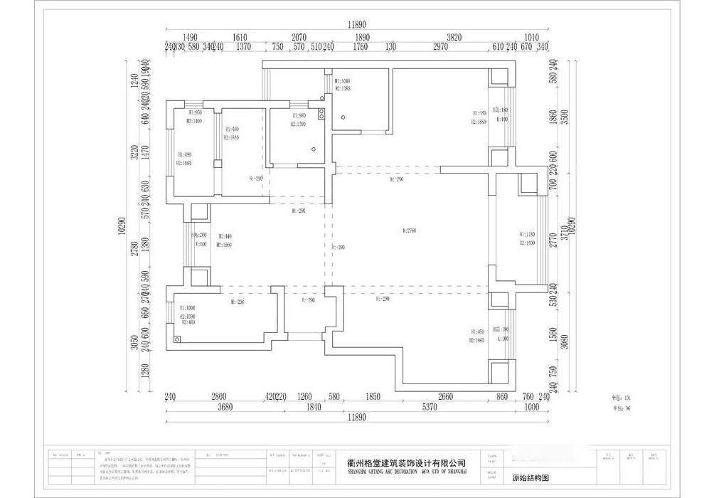
原始结构图
IMG_6950.JPG
回复 支持 反对

使用道具 举报

 楼主| 发表于 2020-12-29 16:29:35 | 显示全部楼层

平面布置图
IMG_6951.JPG
回复 支持 反对

使用道具 举报

 楼主| 发表于 2020-12-29 16:38:07 | 显示全部楼层
本帖最后由 格堂飞飞 于 2020-12-29 16:39 编辑

开工前准备工作,先要做好哦!
IMG_6481.JPG

IMG_6482.JPG

IMG_6484.JPG

IMG_6492.JPG
回复 支持 反对

使用道具 举报

 楼主| 发表于 2020-12-29 16:41:03 | 显示全部楼层

师傅正在大门保护到位,防止磕碰哦!
IMG_6485.JPG

IMG_6509.JPG
回复 支持 反对

使用道具 举报

 楼主| 发表于 2020-12-29 16:41:48 | 显示全部楼层

门槛也要保护起来,防止磕碰!
IMG_6507.JPG

IMG_6508.JPG
回复 支持 反对

使用道具 举报

 楼主| 发表于 2020-12-29 16:43:04 | 显示全部楼层

水管用格堂专用保护盖保护,防止砂石堵塞管道。

IMG_6486.JPG

IMG_6487.JPG

IMG_6488.JPG

IMG_6490.JPG
回复 支持 反对

使用道具 举报

 楼主| 发表于 2020-12-29 16:43:58 | 显示全部楼层

临时马桶安装到位,方便师傅使用。
IMG_6491.JPG
回复 支持 反对

使用道具 举报

 楼主| 发表于 2020-12-29 16:47:42 | 显示全部楼层
开工前配电箱面板先要拆除,防止磕碰破损。
IMG_6493.JPG

IMG_6498.JPG
回复 支持 反对

使用道具 举报

 楼主| 发表于 2020-12-29 16:50:50 | 显示全部楼层

一切准备就绪,就等开工吉时啦!
IMG_6494.JPG
回复 支持 反对

使用道具 举报

您需要登录后才可以回帖 登录 | 立即注册

本版积分规则

全国统一客服电话
0570-8028505

24x7小时免费咨询

  • 官方在线客服

    QQ客服:小西

    点击交谈

    QQ客服:良子

    点击交谈

    QQ客服:闵月

    点击交谈
  • 衢州市柯城区财富中心3号楼2楼

  • 衢州格堂装饰有限公司

  • 扫一扫关注官方微信

    获取一手特惠信息

快速回复 返回顶部 返回列表