• 手机版

    扫码体验手机版

  • 微信公众号

    扫码关注公众号

登录注册
游客您好
第三方账号登陆

常山浅水湾92栋新中式——淡妆浓抹总相宜

[复制链接]
发表于 2020-12-4 10:12:00 | 显示全部楼层 |阅读模式
常山浅水湾92栋新中式——淡妆浓抹总相宜

格堂装饰实景完工案例欣赏!

小区名称
常山浅水湾
房屋面积
340㎡
户型结构
别墅
装修风格
新中式
装修方式
半包
装修造价
查看请联系客服万元
设计师
许工
项目经理
徐工
装修公司
格堂装饰
装修过程
装修日记
设计说明
自古以来,中国人崇尚“犹抱琵琶半遮面”的朦胧美感。一幅水墨画,静谧的空间有了画龙点睛的作用。灯盏瓷尊、木具圆镜,一寸一物,皆于方寸之间,尽显乾坤。一步一景,协和宁静的色调多了几分豁达的情绪。
更多信息
本帖最后由 格堂方俊 于 2022-1-1 16:21 编辑

7E1A1846.JPG


回复

使用道具 举报

 楼主| 发表于 2020-12-4 10:13:19 | 显示全部楼层
本帖最后由 格堂方俊 于 2020-12-6 10:00 编辑


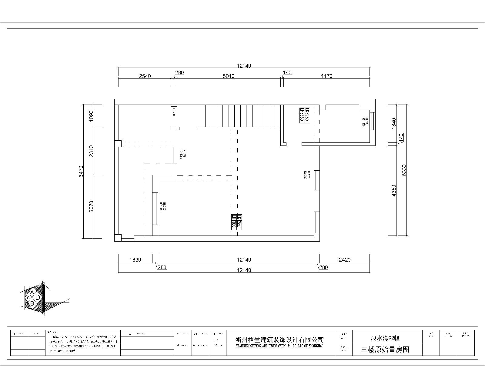
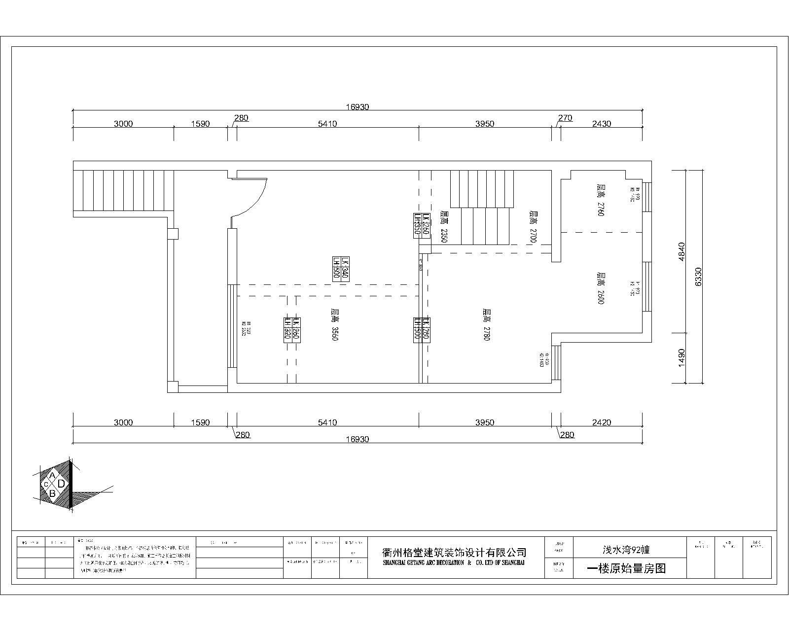
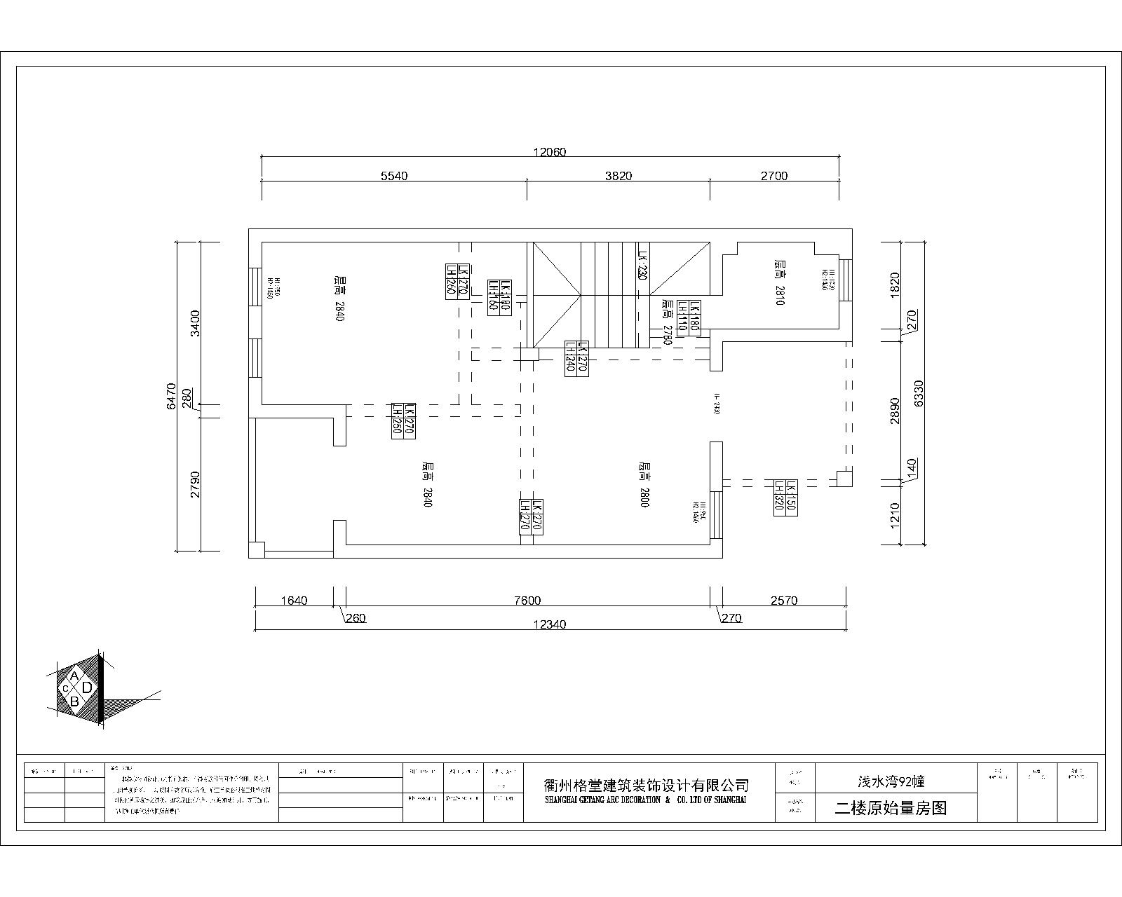
原始构图▼▼▼

110640zefls1rmlrrxm9ts.jpg

110811b64i2r6tlt4znjs6.jpg

110901l1cjcr6jez9ln5ky.jpg

111001r0xz118u82xx88w2.jpg


回复 支持 反对

使用道具 举报

 楼主| 发表于 2020-12-4 10:13:39 | 显示全部楼层
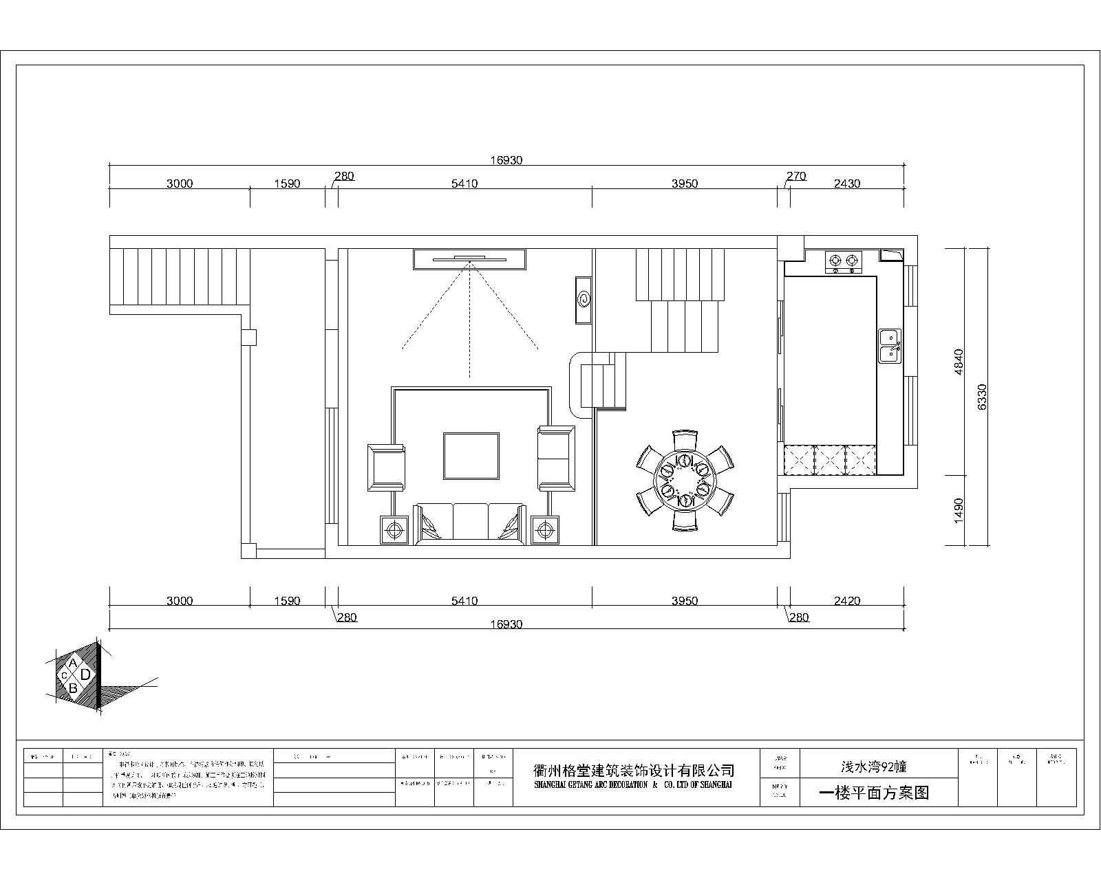
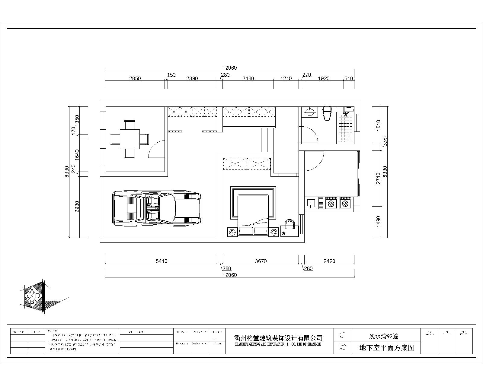
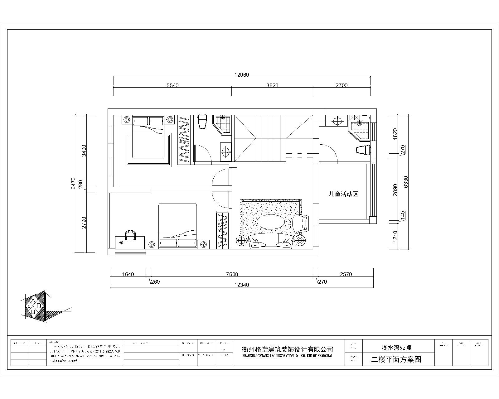
平面布置图▼▼▼

110640huzjf7lr3rjafdul.jpg

110811wkozjpkpnl8rfxoq.jpg

110901dlzpkrl28te2yqq3.jpg

111001bw5ol947be5sj9cl.jpg



回复 支持 反对

使用道具 举报

 楼主| 发表于 2020-12-4 10:15:27 | 显示全部楼层
本帖最后由 格堂方俊 于 2021-8-6 09:07 编辑

客厅▼▼▼
7E1A1846.JPG

7E1A1847.JPG

7E1A1845.JPG

7E1A1848.JPG

7E1A1858.JPG

7E1A1857.JPG

7E1A1859.JPG




回复 支持 反对

使用道具 举报

 楼主| 发表于 2020-12-4 10:16:04 | 显示全部楼层
本帖最后由 格堂方俊 于 2021-8-6 09:09 编辑

餐厅▼▼▼
7E1A1864.JPG
7E1A1865.JPG


回复 支持 反对

使用道具 举报

 楼主| 发表于 2020-12-4 10:16:31 | 显示全部楼层
本帖最后由 格堂方俊 于 2021-8-6 09:10 编辑

厨房▼▼▼

7E1A1871.JPG

7E1A1870.JPG

7E1A1873.JPG

7E1A1877.JPG



回复 支持 反对

使用道具 举报

 楼主| 发表于 2020-12-4 10:17:17 | 显示全部楼层
本帖最后由 格堂方俊 于 2021-8-6 09:10 编辑

二楼客厅▼▼▼

7E1A1893.JPG

7E1A1894.JPG


回复 支持 反对

使用道具 举报

 楼主| 发表于 2020-12-4 10:17:40 | 显示全部楼层
本帖最后由 格堂方俊 于 2021-8-6 09:15 编辑

主卧▼▼▼

7E1A1910.JPG

7E1A1908.JPG

7E1A1905.JPG

7E1A1911.JPG

7E1A1912.JPG


回复 支持 反对

使用道具 举报

 楼主| 发表于 2020-12-4 10:19:28 | 显示全部楼层
本帖最后由 格堂方俊 于 2021-8-6 09:16 编辑

主卫▼▼▼

7E1A1918.JPG

7E1A1917.JPG

7E1A1916.JPG


回复 支持 反对

使用道具 举报

 楼主| 发表于 2020-12-4 10:19:52 | 显示全部楼层
衣柜▼▼▼



回复 支持 反对

使用道具 举报

您需要登录后才可以回帖 登录 | 立即注册

本版积分规则

全国统一客服电话
0570-8028505

24x7小时免费咨询

  • 官方在线客服

    QQ客服:小西

    点击交谈

    QQ客服:良子

    点击交谈

    QQ客服:闵月

    点击交谈
  • 衢州市柯城区财富中心3号楼2楼

  • 衢州格堂装饰有限公司

  • 扫一扫关注官方微信

    获取一手特惠信息

快速回复 返回顶部 返回列表