• 手机版

    扫码体验手机版

  • 微信公众号

    扫码关注公众号

登录注册
游客您好
第三方账号登陆

[常山] 常山浅水湾92栋新中式——淡妆浓抹总相宜

[复制链接]
发表于 2020-5-20 15:22:25 | 显示全部楼层 |阅读模式
常山浅水湾92栋新中式——淡妆浓抹总相宜

格堂装饰为您全程记录装修全过程!

小区名称
浅水湾
房屋面积
340㎡
户型结构
大宅
装修风格
新中式
装修方式
半包
装修造价
查看请联系客服万元
设计师
许工
项目经理
李工
装修公司
格堂装饰
完工实景
完工实景
水电全景
水电全景
VR全景
VR全景
设计说明
自古以来,中国人崇尚“犹抱琵琶半遮面”的朦胧美感。一幅水墨画,静谧的空间有了画龙点睛的作用。灯盏瓷尊、木具圆镜,一寸一物,皆于方寸之间,尽显乾坤。一步一景,协和宁静的色调多了几分豁达的情绪。
更多信息
本帖最后由 格堂小丽 于 2020-5-26 11:06 编辑

效果图
62f7cc4c91ee2b1c1b4887724b55235.jpg

L3D124S21ENDIPOHVUIUI5L7ELUF3P3XS888_4000x3000.jpg

L3D124S21ENDIPOM5RYUI5L7ELUF3P3XS888_4000x3000(1).jpg



回复

使用道具 举报

 楼主| 发表于 2020-5-20 15:23:34 | 显示全部楼层
本帖最后由 格堂小丽 于 2020-5-26 11:07 编辑

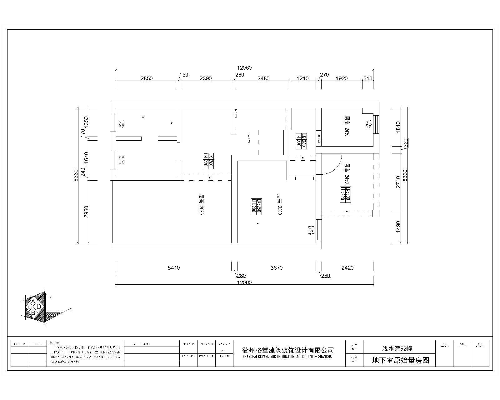
地下底层原始结构图
浅水湾92幢地下层原始图.jpg
地下底层平面布置图

浅水湾92幢地下层平面图.jpg


回复 支持 反对

使用道具 举报

 楼主| 发表于 2020-5-20 15:24:19 | 显示全部楼层
本帖最后由 格堂小丽 于 2020-5-26 11:08 编辑

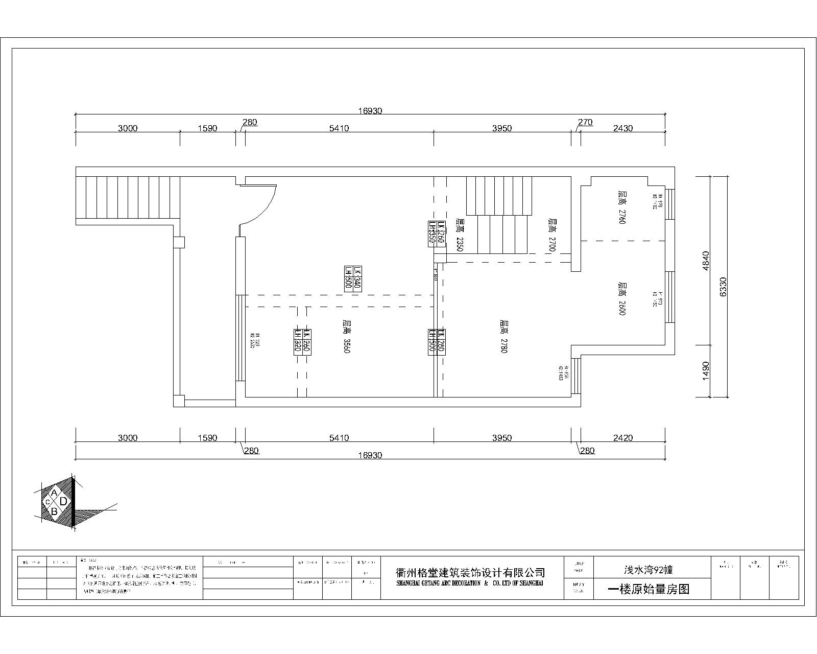
一层原始结构图
浅水湾92幢一层原始图.jpg
一层平面布置图

浅水湾92幢一层平面图.jpg


回复 支持 反对

使用道具 举报

 楼主| 发表于 2020-5-20 15:24:57 | 显示全部楼层
本帖最后由 格堂小丽 于 2020-5-26 11:09 编辑

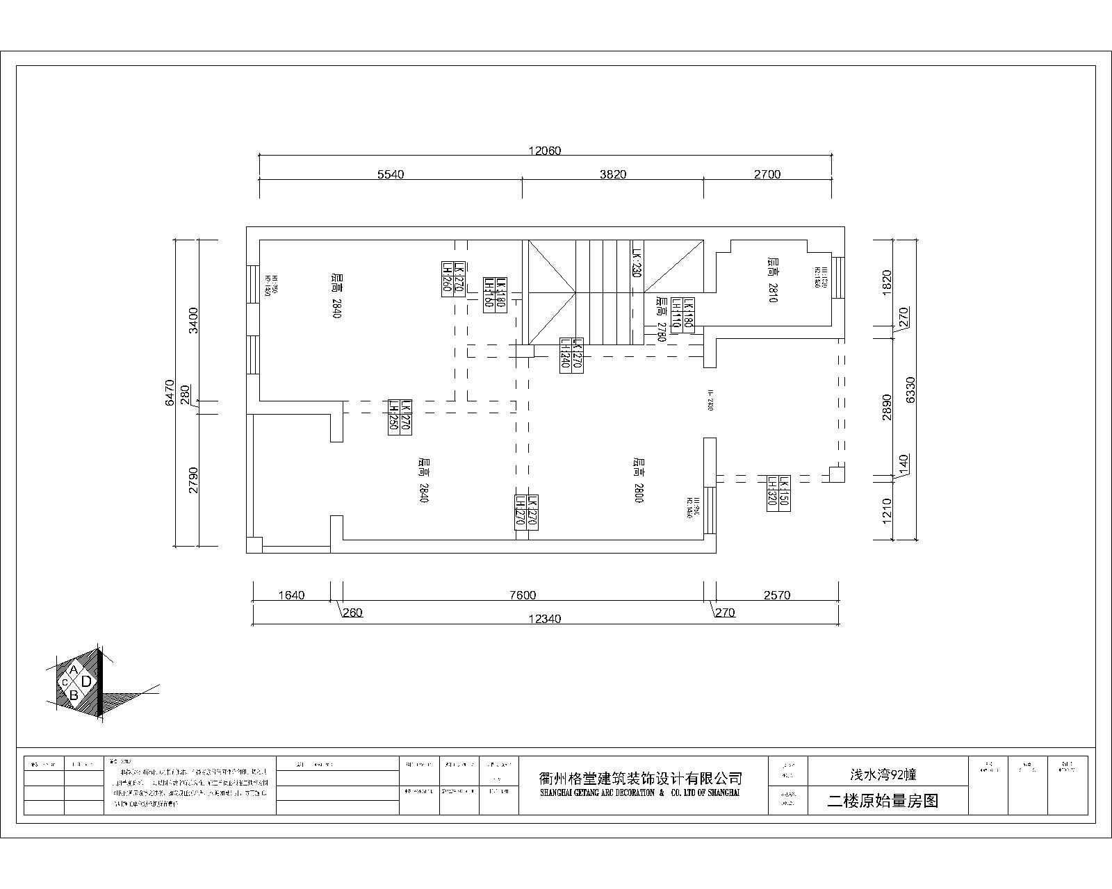
二层原始结构图

浅水湾92幢二层原始图.jpg
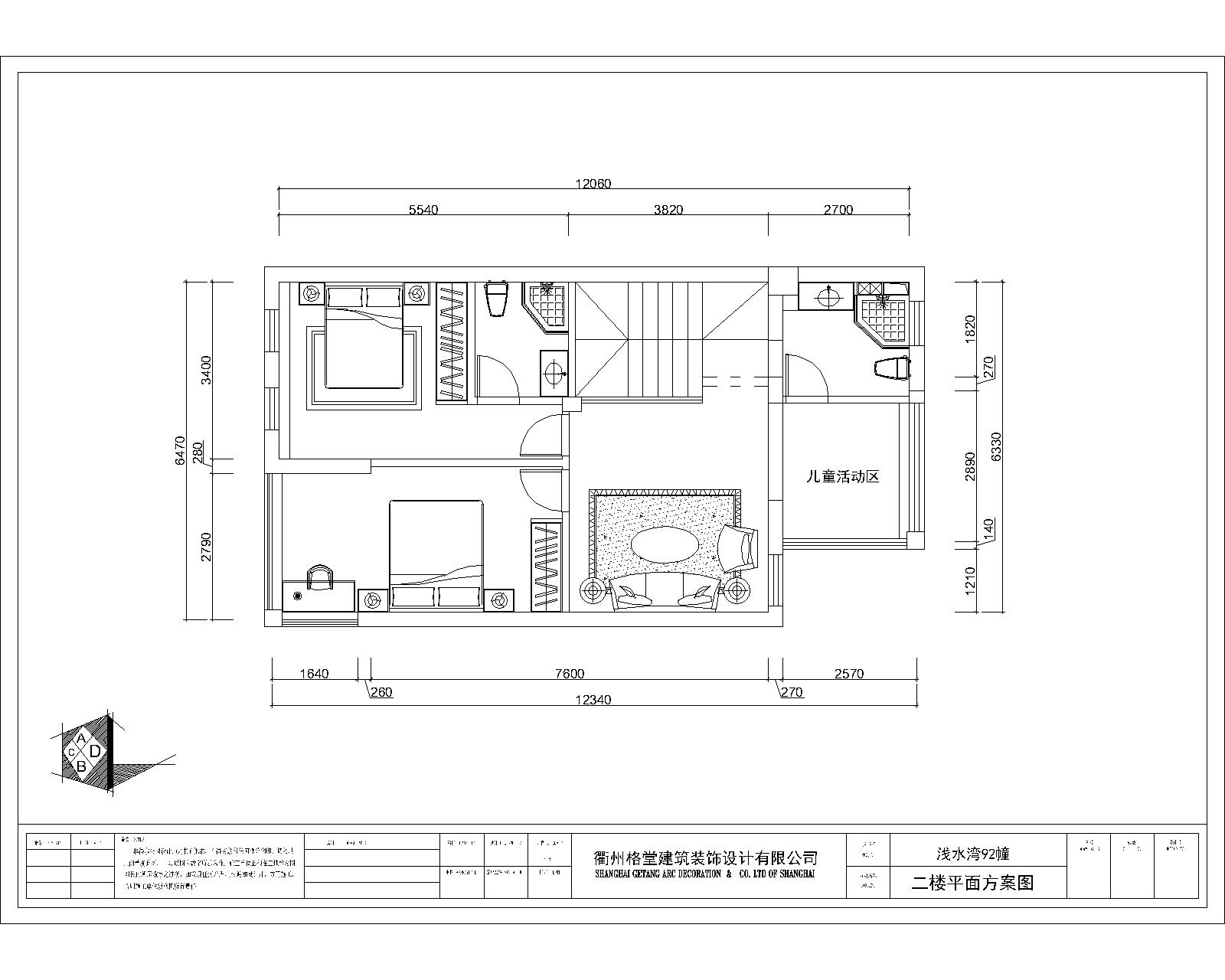
二层平面布置图

浅水湾92幢二层平面图.jpg

回复 支持 反对

使用道具 举报

 楼主| 发表于 2020-5-20 15:26:34 | 显示全部楼层
本帖最后由 格堂小丽 于 2020-5-26 11:10 编辑

三层原始结构图

浅水湾92幢三层原始图.jpg
三层平面布置图

浅水湾92幢三层平面图.jpg


回复 支持 反对

使用道具 举报

 楼主| 发表于 2020-5-20 15:26:43 | 显示全部楼层

回复

使用道具 举报

 楼主| 发表于 2020-5-20 15:26:52 | 显示全部楼层

回复

使用道具 举报

 楼主| 发表于 2020-5-20 15:27:06 | 显示全部楼层

回复

使用道具 举报

 楼主| 发表于 2020-5-20 15:27:22 | 显示全部楼层

回复

使用道具 举报

 楼主| 发表于 2020-5-20 15:27:35 | 显示全部楼层
回复

使用道具 举报

您需要登录后才可以回帖 登录 | 立即注册

本版积分规则

全国统一客服电话
0570-8028505

24x7小时免费咨询

  • 官方在线客服

    QQ客服:小西

    点击交谈

    QQ客服:良子

    点击交谈

    QQ客服:闵月

    点击交谈
  • 衢州市柯城区财富中心3号楼2楼

  • 衢州格堂装饰有限公司

  • 扫一扫关注官方微信

    获取一手特惠信息

快速回复 返回顶部 返回列表