• 手机版

    扫码体验手机版

  • 微信公众号

    扫码关注公众号

登录注册
游客您好
第三方账号登陆

常山阳光名都35#86㎡北欧——暖木

[复制链接]
发表于 2020-12-4 09:45:09 | 显示全部楼层 |阅读模式
常山阳光名都35#86㎡北欧——暖木

格堂装饰实景完工案例欣赏!

小区名称
常山阳光名都
房屋面积
86㎡
户型结构
套房
装修风格
北欧
装修方式
全包
装修造价
查看请联系客服万元
设计师
毛工
项目经理
李工
装修公司
格堂装饰
装修过程
装修日记
设计说明
北欧并不是冷的,是可以让颜色来温暖的,选择了北欧的画风也未必不能温暖。浅灰色点缀着客厅的空间,绿植盆栽给空间多了些许生机。主人房的空间使用了高级灰为主色,打造了一个清晰温暖的北欧风,墙面简单的一抹乳胶漆,配上相呼应的装饰画,优雅舒适。
更多信息
7E1A1768.jpg


回复

使用道具 举报

 楼主| 发表于 2020-12-4 09:45:31 | 显示全部楼层
本帖最后由 格堂方俊 于 2020-12-6 10:03 编辑


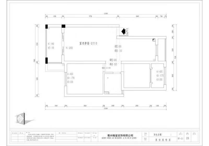
原始构图▼▼▼

130449s8q0ffevggqsqqql.jpg


回复 支持 反对

使用道具 举报

 楼主| 发表于 2020-12-4 09:45:54 | 显示全部楼层
平面布置图▼▼▼

130506l3y96hc6c99czywh.jpg


回复 支持 反对

使用道具 举报

 楼主| 发表于 2020-12-4 09:46:21 | 显示全部楼层
客厅▼▼▼

7E1A1766.jpg

7E1A1767.jpg

7E1A1768.jpg

7E1A1769.jpg

7E1A1772.jpg

7E1A1770.jpg


回复 支持 反对

使用道具 举报

 楼主| 发表于 2020-12-4 09:46:49 | 显示全部楼层
餐厅▼▼▼

7E1A1774.jpg

7E1A1775.jpg


回复 支持 反对

使用道具 举报

 楼主| 发表于 2020-12-4 09:47:01 | 显示全部楼层
厨房▼▼▼

7E1A1777.jpg


回复 支持 反对

使用道具 举报

 楼主| 发表于 2020-12-4 09:47:19 | 显示全部楼层
主卧▼▼▼

7E1A1779.jpg


回复 支持 反对

使用道具 举报

 楼主| 发表于 2020-12-4 09:47:34 | 显示全部楼层
阳台▼▼▼

7E1A1780.jpg


回复 支持 反对

使用道具 举报

 楼主| 发表于 2020-12-4 09:47:48 | 显示全部楼层
卫生间▼▼▼

7E1A1778.jpg


回复 支持 反对

使用道具 举报

您需要登录后才可以回帖 登录 | 立即注册

本版积分规则

全国统一客服电话
0570-8028505

24x7小时免费咨询

  • 官方在线客服

    QQ客服:小西

    点击交谈

    QQ客服:良子

    点击交谈

    QQ客服:闵月

    点击交谈
  • 衢州市柯城区财富中心3号楼2楼

  • 衢州格堂装饰有限公司

  • 扫一扫关注官方微信

    获取一手特惠信息

快速回复 返回顶部 返回列表